日光市土沢の新築戸建
掲載情報更新日:2026年04月11日 次回更新予定日:2026年04月25日
- 2,390万円
-
- 借入ご希望金額
万円 - 借入期間
年 - 借入金利
% - 月々のお支払い金額
円
- 借入ご希望金額
※ 月々のお支払例は目安の試算となりますので、実際の金額とは異なる場合がございます。詳しくは店舗までお問合わせください。
- 日光市土沢
-
JR日光線『下野大沢』 徒歩22分 (約1760m)
日光市土沢一戸建て | 物件情報
物件の設備
- 電気
- 上水道
- 公営水道
- 下水道
- 公共下水
- プロパンガス
- 個別プロパン
- カウンターキッチン
- システムキッチン
- ユニットバス
- 浴室に窓
- トイレ2箇所
- 洗髪洗面化粧台
- 人感照明センサー
- モニタ付インターホン
- 防犯カメラ
- LDK15畳以上
- 和室
- 複層ガラス
- 全居室複層ガラス
- フローリング
- クローゼット
- クローゼット2箇所
- 床下収納
- 全居室収納
- バルコニー
物件の特徴
- 小学校徒歩10分以内
- 2階建
物件詳細情報
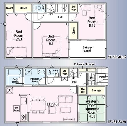
| 価格 | 2,390万円 | 間取り | 4LDK |
|---|---|---|---|
| 物件種別 | 新築一戸建て | ||
| 所在地 | 栃木県日光市土沢 1号棟 | ||
| アクセス |
|
||
| 建物面積 | 105.3㎡ | 駐車場 | あり 普通:2台 |
| 築年月 | 2025年(令和7年)12月築 | 建築確認 | 第HPA-25-10461-1号 |
| 建物構造 | 木造 2階建 | 工法 | |
| 主要採光 | バルコニー | 6.48㎡ | |
| 保証・評価 | |||
| 土地面積 | 220.34㎡(66.65坪) | 接道 | 南東側(公道)幅 約4.6m |
| 私道 | セットバック | ||
| 地目 | 山林 | 地勢 | |
| 権利 | 所有権 |
||
| 都市計画 | 非線引区域 |
用途地域 | 指定無 |
| 建ぺい/容積率 | 60% / 200% | 土地国土法 | |
| 許可番号 | 建築基準法 | ||
| 法令制限 | 景観法・宅地造成及び特定盛土等規制法 | ||
| 小学区 | 南原小学校 徒歩10分 (約750m) | 中学区 | 大沢中学校 徒歩49分 (約3900m) |
| 現況 | 建築中 | 引渡 | 期日指定:2025年12月 |
| その他費用 | |||
| 備考 | |||
| 物件番号 | 4532786 | 取引態様 | 媒介 |
取扱店舗情報
| 電話番号 | 028-678-2888 |
|---|---|
| 所在地 | 〒320-0826 栃木県宇都宮市西原町466-1 |
| 営業時間 | 10:00~18:30 |
| 定休日 | 火曜日・水曜日 |
| 宅建免許番号 | 栃木県知事(2)第5075号 |
| アクセス | 店舗への地図はこちら |

来店ご予約
栃木県日光市で価格が似ている物件はこちら
- 栃木県
マイページ物件数 - 5,253件
最近見た物件
-
-

-
- 収益
- 1億9,500万円
-
中央区新富2丁目
-
東京メトロ有楽町線新富町
-
-
-

-
- 新築一戸建て
- 6,280万円
-
国立市富士見台1丁目
-
JR南武線谷保
-
-
-

-
- 新築一戸建て
- 4,799万円
-
高槻市明野町
-
阪急電鉄京都線高槻市
-
栃木県新築一戸建て新着物件
- お近くの店舗を探す
-
















