新築戸建 高松市福岡町2498 6号棟
NEW 12.20掲載情報更新日:2025年12月20日 次回更新予定日:2026年01月03日
- 2,498万円
-
- 借入ご希望金額
万円 - 借入期間
年 - 借入金利
% - 月々のお支払い金額
円
- 借入ご希望金額
※ 月々のお支払例は目安の試算となりますので、実際の金額とは異なる場合がございます。詳しくは店舗までお問合わせください。
- 高松市福岡町4丁目
-
高松琴平電鉄志度線『沖松島』 徒歩6分 (約480m)
新築戸建 高松市福岡町2498 6号棟一戸建て | 物件情報
物件の設備
- オール電化
- 公営水道
- 公共下水
- 食器洗浄乾燥機
- IHクッキングヒータ
- バス1坪以上
- トイレ2箇所
- 温水洗浄便座
- EV車充電設備
- モニタ付インターホン
- 24時間換気システム
- 床下収納
- 全居室収納
物件の特徴
- 前道6m以上
- 2階建
- 即入居可
物件詳細情報
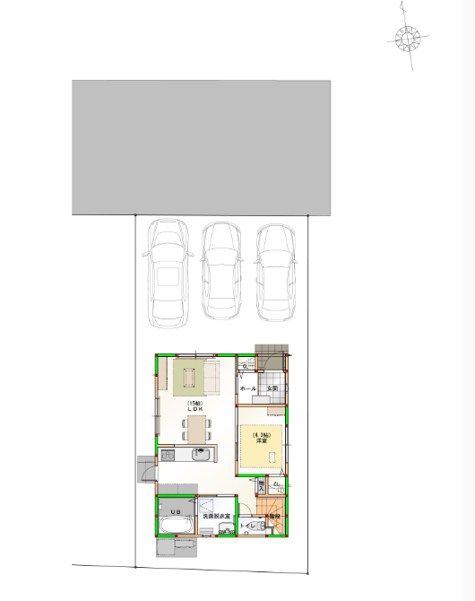
| 価格 | 2,498万円 | 間取り | 4LDK |
|---|---|---|---|
| 物件種別 | 新築一戸建て | ||
| 所在地 | 香川県高松市福岡町4丁目 | ||
| アクセス |
|
||
| 建物面積 | 公95.9㎡ | 駐車場 | あり 普通:3台 |
| 築年月 | 2025年(令和7年)10月築 | 建築確認 | 第確R07-0534号 |
| 建物構造 | 木造 2階建 | 工法 | |
| 主要採光 | バルコニー | ||
| 保証・評価 | |||
| 土地面積 | 公125.91㎡(38.08坪) | 接道 | 北側(公道)幅 約6.0m 間口 約7.83m |
| 私道 | セットバック | 無 | |
| 地目 | 宅地 | 地勢 | |
| 権利 | 所有権 |
||
| 都市計画 | 非線引区域 |
用途地域 | 準工業 |
| 建ぺい/容積率 | 60% / 200% | 土地国土法 | |
| 許可番号 | 建築基準法 | ||
| 法令制限 | |||
| 小学区 | 高松第一小学校 徒歩10分 (約750m) | 中学区 | 高松第一中学校 徒歩11分 (約850m) |
| 現況 | 空 | 引渡 | 即 |
| その他費用 | |||
| 備考 | |||
| 物件番号 | 4533211 | 取引態様 | 媒介 |
取扱店舗情報
ハウスドゥ 高松仏生山 株式会社白峯不動産 店舗詳細ページへ
| 電話番号 | 087-816-4084 |
|---|---|
| 所在地 | 〒761-8078 香川県高松市仏生山町甲394-1 |
| 営業時間 | 9:00~18:00 |
| 定休日 | 水曜日 |
| 宅建免許番号 | 香川県知事(1)第4705号 |
| アクセス | 店舗への地図はこちら |

来店ご予約
香川県高松市で価格が似ている物件はこちら
- 香川県
マイページ物件数 - 369件
最近見た物件
-
-

-
- 新築一戸建て
- 3,180万円
-
東大阪市花園東町2丁目
-
近鉄難波・奈良線東花園
-
-
-

-
- 新築一戸建て
- 3,980万円
-
厚木市温水
-
小田急小田原線本厚木
-
香川県新築一戸建て新着物件
- お近くの店舗を探す
-
























