給田1丁目 新築戸建 2号棟
NEW 12.21掲載情報更新日:2025年12月21日 次回更新予定日:2026年01月04日
- 1億499万円
-
- 借入ご希望金額
万円 - 借入期間
年 - 借入金利
% - 月々のお支払い金額
円
- 借入ご希望金額
※ 月々のお支払例は目安の試算となりますので、実際の金額とは異なる場合がございます。詳しくは店舗までお問合わせください。
- 世田谷区給田1丁目
-
京王線『仙川』 徒歩9分 (約720m)
京王線『千歳烏山』 徒歩17分 (約1360m)
給田1丁目 新築戸建 2号棟一戸建て | 物件情報
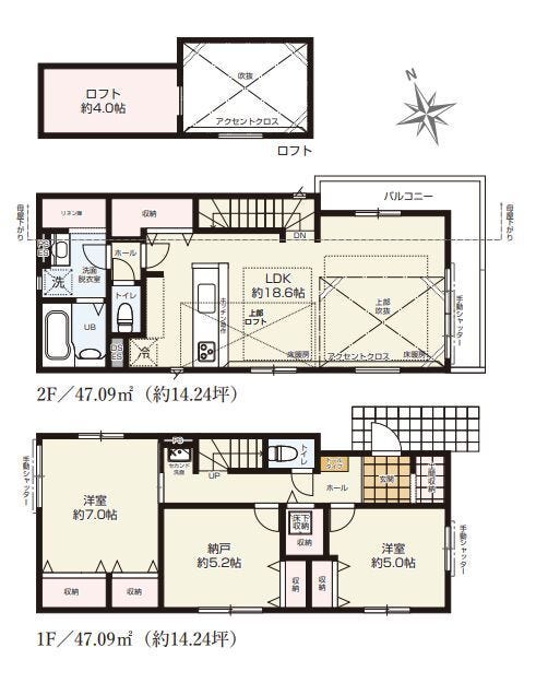
■整然とした街並み・閑静な住宅街 給田2丁目 ♪ ■2LDKS+ロフト+カースペース2台分
《Access》
・京王線「仙川駅」歩9分
・同線「千歳烏山駅」歩17分
《Point》
・給田2丁目閑静立地に佇む全2棟
・小学校&中学校が徒歩10分圏内に整う充実の子育て環境♪
・並列駐車2台可能(車種による)
・機能性を重視した間取り設計
・ゆとり広さのある約18.6帖のLDK空間
・南向き 日当たり・通風良好
・LDK3面採光&全居室2面採光
・各所収納豊富(ロフト+納戸+土間収納)
・ワイドバルコニー
◇Plan
全区画敷地面積118㎡超え × 延べ床93㎡~
◇Sspecification
・食洗器
・浄水器
・浴室乾燥機
・三面鏡付洗面化粧台
・温水洗浄便座
・TVモニターフォン
・床暖房
・全室ペアガラス
・ダウンライト、一部LED照明
・エコジョーズ・・・etc
■お気軽にお問合せください♪
物件の設備
- 電気
- 公営水道
- 公共下水
- 都市ガス
- 給湯
- 浄水器
- 食器洗浄乾燥機
- コンロ三口
- グリル
- カウンターキッチン
- システムキッチン
- オープンキッチン
- バス
- オートバス
- バス1坪以上
- 追焚機能
- 浴室暖房
- 浴室乾燥機
- トイレ
- トイレ2箇所
- 温水洗浄便座
- 高機能トイレ
- 室内洗濯機置場
- 洗面所独立
- 床暖房
- ダウンライト
- リビング階段
- 省エネ給湯器
- モニタ付インターホン
- 火災警報器/報知機
- ロフト
- LDK18畳以上
- 2面採光
- 3面採光
- 天井高2.5m以上
- 吹抜
- 複層ガラス
- 全居室複層ガラス
- フローリング
- 全室フローリング
- シャッター雨戸
- 24時間換気システム
- クローゼット
- クローゼット3箇所
- 納戸
- 床下収納
- 全居室収納
- シューズボックス
- ワイドバルコニー
- L字型バルコニー
- 庭
物件の特徴
- 南向
- 地盤調査済
- 耐震構造
- 駅まで平坦
- 小学校徒歩10分以内
- 緑豊かな住宅地
- 閑静な住宅街
- 周辺交通量少なめ
- 市街地が近い
- 都市近郊
- 眺望良好
- 通風良好
- 陽当り良好
- 2階建
- 平坦地
- 整形地
- バリアフリー
- 省エネルギー対策
- フラット35Sに対応
物件詳細情報
| 価格 | 1億499万円 | 間取り | 2LDK+S |
|---|---|---|---|
| 物件種別 | 新築一戸建て | ||
| 所在地 | 東京都世田谷区給田1丁目 2号棟 | ||
| アクセス |
|
||
| 建物面積 | 実94.18㎡ | 駐車場 | あり 普通:2台 |
| 築年月 | 2026年(令和8年)02月予定 | 建築確認 | 第25UDI1W建05348号 |
| 建物構造 | 木造 2階建 | 工法 | |
| 主要採光 | 南向 | バルコニー | |
| 保証・評価 | |||
| 土地面積 | 実118.13㎡(35.73坪) | 接道 | 東側(私道)幅 約4.0m 間口 約6.50m(位置指定) |
| 私道 | 別:13.52㎡ | セットバック | |
| 地目 | 宅地 | 地勢 | |
| 権利 | 所有権 |
||
| 都市計画 | 市街化区域 |
用途地域 | 1種低層 |
| 建ぺい/容積率 | 40% / 80% | 土地国土法 | |
| 許可番号 | 建築基準法 | ||
| 法令制限 | |||
| 小学区 | 烏山小学校 徒歩3分 (約200m) | 中学区 | 上祖師谷中学校 徒歩6分 (約480m) |
| 現況 | 建築中 | 引渡 | 期日指定:2026年03月中旬 |
| その他費用 | |||
| 周辺環境 | 世田谷区立烏山小学校 徒歩3分 (約200m) 世田谷区立上祖師谷中学校 徒歩6分 (約480m) ハニーズ仙川店 徒歩7分 (約560m) 佼成学園幼稚園 徒歩8分 (約600m) サンドラッグ仙川店 徒歩8分 (約630m) セブンイレブン調布仙川1丁目店 徒歩9分 (約650m) ユニクロ仙川店 徒歩9分 (約660m) 世田谷給田郵便局 徒歩9分 (約680m) クイーンズ伊勢丹仙川店 徒歩9分 (約690m) 社団法人至誠会第二病院 徒歩11分 (約840m) |
||
| 備考 | |||
| 物件番号 | 4535145 | 取引態様 | 媒介 |
取扱店舗情報
ハウスドゥ 千歳船橋 R2-CONNECT株式会社 店舗詳細ページへ
| 電話番号 | 03-5799-7621 |
|---|---|
| 所在地 | 〒156-0054 東京都世田谷区桜丘5丁目47-19 |
| 営業時間 | 9:00~19:00 |
| 定休日 | 火曜日、水曜日 |
| 宅建免許番号 | 東京都知事(1)第107079号 |
| アクセス | 店舗への地図はこちら |

来店ご予約
東京都世田谷区で価格が似ている物件はこちら
- 東京都
マイページ物件数 - 4,849件
最近見た物件
-
-

-
- 中古一戸建て
- 1,300万円
-
高松市川島東町
-
高松琴平電鉄長尾線高田
-
-
-

-
- 中古一戸建て
- 2,980万円
-
三郷市彦野1丁目
-
JR武蔵野線新三郷
-
-
-

-
- 中古一戸建て
- 2,400万円
-
鹿児島市西伊敷2丁目
-
伊敷団地入口
-
東京都新築一戸建て新着物件
- お近くの店舗を探す
-
おすすめ物件
-
-

-
- 新築一戸建て
- 3,980万円
-
足立区大谷田4丁目
-
東京メトロ千代田線北綾瀬
-
-
-

-
- 新築一戸建て
- 6,590万円
-
狛江市東野川2丁目
-
小田急小田原線喜多見
-
-
-

-
- 新築一戸建て
- 5,990万円
-
調布市深大寺北町1丁目
-
京王相模原線調布
-
-
-

-
- 新築一戸建て
- 9,980万円
-
世田谷区砧1丁目
-
小田急小田原線祖師ヶ谷大蔵
-
-
-

-
- 新築一戸建て
- 6,790万円
-
狛江市東野川2丁目
-
小田急小田原線喜多見
-
-
-

-
- 新築一戸建て
- 2,280万円
-
八王子市川口町
-
JR中央本線八王子
-
-
-

-
- 新築一戸建て
- 6,499万円
-
調布市深大寺東町4丁目
-
京王線つつじヶ丘
-
-
-

-
- 新築一戸建て
- 8,999万円
-
練馬区東大泉7丁目
-
西武池袋・豊島線大泉学園
-
-
-

-
- 新築一戸建て
- 4,580万円
-
調布市上石原3丁目
-
京王線西調布
-
-
-

-
- 新築一戸建て
- 5,999万円
-
国分寺市北町5丁目
-
西武国分寺線鷹の台
-



























◆家事同線や機能性を重視、高性能住宅をぜひ一度、ご覧ください◆
◆施工会社のモデルハウスとあわせて即現地ご案内いたします♪
◆即日ご案内致します♪気軽にお問合せください♪