水引2丁目戸建
掲載情報更新日:2026年04月22日 次回更新予定日:2026年05月06日
- 5,200万円
-
- 借入ご希望金額
万円 - 借入期間
年 - 借入金利
% - 月々のお支払い金額
円
- 借入ご希望金額
※ 月々のお支払例は目安の試算となりますので、実際の金額とは異なる場合がございます。詳しくは店舗までお問合わせください。
- 厚木市水引2丁目
-
小田急小田原線『本厚木』 徒歩20分 (約1600m)
水引2丁目戸建一戸建て | 物件情報
★価格変更しました!ご内見ご予約お待ちしております!★
駅徒歩約20分です。お問合せお待ちしております!
物件の設備
- 電気
- 公営水道
- 公共下水
- 都市ガス
- コンロ三口
- グリル
- ガスコンロ付
- カウンターキッチン
- システムキッチン
- バス
- ユニットバス
- 追焚機能
- トイレ
- トイレ2箇所
- 温水洗浄便座
- 室内洗濯機置場
- 洗面所独立
- モニタ付インターホン
- 火災警報器/報知機
- LDK15畳以上
- クローゼット
- クローゼット2箇所
- クローゼット3箇所
- ウォークインクローゼット
- シューズボックス
- バルコニー
- ルーフバルコニー
- 南面バルコニー
- 屋上テラス
- ハイルーフ駐車可能
物件の特徴
- 南向
- 耐震構造
- 駅まで平坦
- セットバック済
- 南側道路面す
- 整備された歩道
- スーパーが近い
- 閑静な住宅街
- 市街地が近い
- 2階建
- 整形地
- 省エネルギー対策
- フラット35Sに対応
物件詳細情報
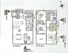
| 価格 | 5,200万円 | 間取り | 3LK+S |
|---|---|---|---|
| 物件種別 | 新築一戸建て | ||
| 所在地 | 神奈川県厚木市水引2丁目 1 | ||
| アクセス |
|
||
| 建物面積 | 公105.69㎡ | 駐車場 | あり 普通:1台 |
| 築年月 | 2026年(令和8年)01月築 | 建築確認 | 第R07SHC117118号 |
| 建物構造 | 木造 2階建 | 工法 | |
| 主要採光 | 南向 | バルコニー | 4.05㎡ |
| 保証・評価 | |||
| 土地面積 | 公100.12㎡(30.28坪) | 接道 | 南側(公道)幅 約5.0m 間口 約7.24m 西側(公道)幅 約4.0m 間口 約8.80m |
| 私道 | セットバック | 済 | |
| 地目 | 宅地 | 地勢 | |
| 権利 | 所有権 |
||
| 都市計画 | 市街化区域 |
用途地域 | 1種住居 |
| 建ぺい/容積率 | 60% / 200% | 土地国土法 | |
| 許可番号 | 建築基準法 | ||
| 法令制限 | |||
| 小学区 | 厚木小学校 徒歩10分 (約800m) | 中学区 | 厚木中学校 徒歩10分 (約800m) |
| 現況 | 空 | 引渡 | 相談 |
| その他費用 | |||
| 備考 | |||
| 物件番号 | 4536201 | 取引態様 | 媒介 |
取扱店舗情報
| 電話番号 | 0462-44-4441 |
|---|---|
| 所在地 | 〒243-0016 神奈川県厚木市田村町8-8柳田ビル1階 |
| 営業時間 | 9:00~18:00 |
| 定休日 | 水曜日、年末年始 |
| 宅建免許番号 | 神奈川県知事(1)第33037号 |
| アクセス | 店舗への地図はこちら |

来店ご予約
神奈川県厚木市で価格が似ている物件はこちら
- 神奈川県
マイページ物件数 - 3,183件
神奈川県新築一戸建て新着物件
- お近くの店舗を探す
-
おすすめ物件
-
-

-
- 新築一戸建て
- 4,799万円
-
相模原市南区若松3丁目
-
小田急小田原線相模大野
-
-
-

-
- 新築一戸建て
- 1億580万円
-
横浜市中区豆口台
-
JR京浜東北・根岸線山手
-
-
-

-
- 新築一戸建て
- 3,480万円
-
平塚市達上ケ丘
-
JR東海道本線平塚
-
-
-

-
- 新築一戸建て
- 2,580万円
-
平塚市公所
-
JR東海道本線平塚
-
-
-

-
- 新築一戸建て
- 4,480万円
-
横浜市中区本牧原
-
JR根岸線石川町
-













