羽村市緑ヶ丘2丁目 全1棟 新築一戸建住宅
NEW 12.22掲載情報更新日:2025年12月23日 次回更新予定日:2026年01月06日
- 5,380万円
-
- 借入ご希望金額
万円 - 借入期間
年 - 借入金利
% - 月々のお支払い金額
円
- 借入ご希望金額
※ 月々のお支払例は目安の試算となりますので、実際の金額とは異なる場合がございます。詳しくは店舗までお問合わせください。
- 羽村市緑ヶ丘2丁目
-
JR青梅線『羽村』 徒歩14分 (約1120m)
羽村市緑ヶ丘2丁目 全1棟 新築一戸建住宅一戸建て | 物件情報
【新築仲介手数料無料のハウスドゥ立川北】羽村市緑ヶ丘2丁目全 1棟 1号棟
こちらの物件は【ハウスドゥ立川北限定のゼロキャンペーン対象物件】です。ご購入の際の仲介手数料が【無料】の0円です。中古住宅ご購入のお客様には【Wキャンペーン対象物件】でギフト券をプレゼント!大変お得なキャンペーンなのでぜひご利用ください。さらにローンシュミレーションからライフプランの設計も【無料】で作成いたします。賢く買うならハウスドゥ 立川北で検索!
物件の設備
- 電気
- 公営水道
- 公共下水
- プロパンガス
- 浄水器
- 食器洗浄乾燥機
- 食品庫
- コンロ三口
- カウンターキッチン
- システムキッチン
- ユニットバス
- バス1坪以上
- 追焚機能
- 浴室暖房
- 浴室乾燥機
- 浴室に窓
- トイレ2箇所
- 温水洗浄便座
- 室内洗濯機置場
- 洗髪洗面化粧台
- 洗面所独立
- カードキー
- モニタ付インターホン
- 火災警報器/報知機
- LDK15畳以上
- 2面採光
- 全居室複層ガラス
- 床下収納
- 全居室収納
- シューズボックス
物件の特徴
- 前道6m以上
- 緑豊かな住宅地
- テニスコートが近い
- スーパーが近い
- 閑静な住宅街
- 市街地が近い
- 都市近郊
- 通風良好
- 陽当り良好
- 2階建
- バリアフリー
- 建築確認完了検査済証
- 新築
- 増改築設計図書
物件詳細情報
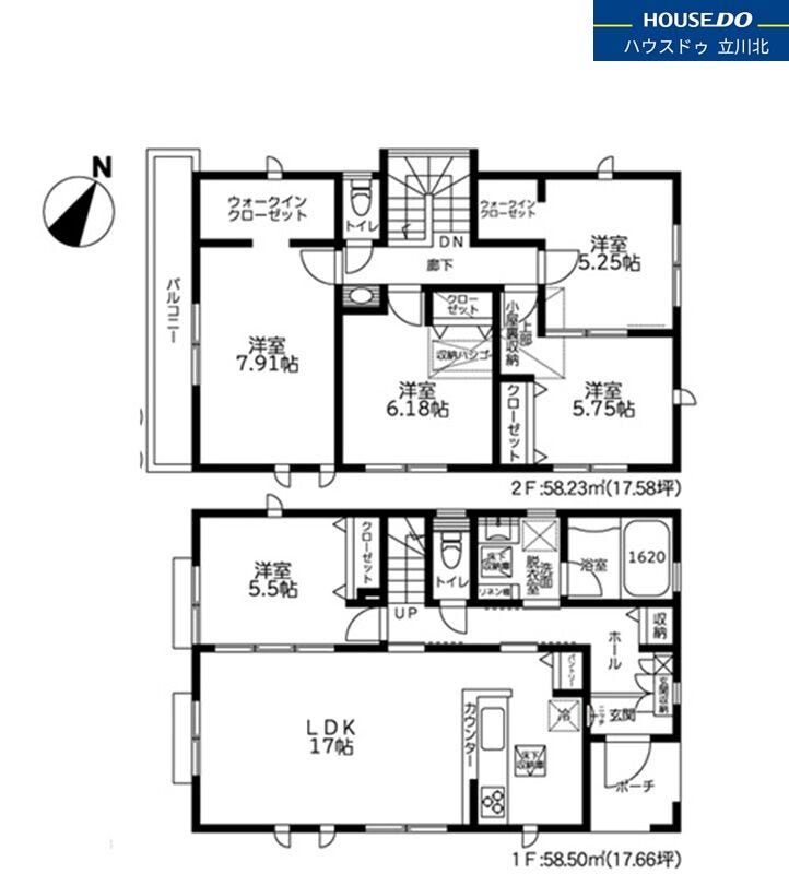
| 価格 | 5,380万円 | 間取り | 5LDK |
|---|---|---|---|
| 物件種別 | 新築一戸建て | ||
| 所在地 | 東京都羽村市緑ヶ丘2丁目 | ||
| アクセス |
|
||
| 建物面積 | 116.7㎡ | 駐車場 | あり 普通:2台 |
| 築年月 | 2026年(令和8年)06月予定 | 建築確認 | 第25UDI1K建01692号 |
| 建物構造 | 木造 2階建 | 工法 | |
| 主要採光 | 南西向 | バルコニー | |
| 保証・評価 | |||
| 土地面積 | 165㎡(49.91坪) | 接道 | 北西側(私道)幅 約3.9m 間口 約6.00m 南東側(公道)幅 約6.0m 間口 約15.10m |
| 私道 | セットバック | ||
| 地目 | 宅地 | 地勢 | |
| 権利 | 所有権 |
||
| 都市計画 | 市街化区域 |
用途地域 | 1種中高 |
| 建ぺい/容積率 | 60% / 200% | 土地国土法 | |
| 許可番号 | 建築基準法 | ||
| 法令制限 | |||
| 小学区 | 富士見小学校 徒歩7分 (約500m) | 中学区 | 羽村第二中学校 徒歩20分 (約1600m) |
| 現況 | 未着工 | 引渡 | 期日指定:2026年06月 |
| その他費用 | |||
| 備考 | 富士見第一保育園・・・徒歩約2分/五ノ神幼稚園・・・徒歩約5分/ローソン 羽村緑ヶ丘二丁目店・・・徒歩約7分/S&Dスポーツパーク富士見・・・徒歩1分 | ||
| 物件番号 | 4536826 | 取引態様 | 媒介 |
取扱店舗情報
ハウスドゥ 立川北 株式会社シティリノベーション 店舗詳細ページへ
| 電話番号 | 042-537-9361 |
|---|---|
| 所在地 | 〒190-0004 東京都立川市柏町3-19-14 フレンテ1F |
| 営業時間 | 9:00~18:00 |
| 定休日 | GW、夏季、冬季 |
| 宅建免許番号 | 東京都知事(2)第100954号 |
| アクセス | 店舗への地図はこちら |

来店ご予約
- 東京都
マイページ物件数 - 4,851件
東京都新築一戸建て新着物件
- お近くの店舗を探す
-
おすすめ物件
-
-

-
- 新築一戸建て
- 1億399万円
-
世田谷区北烏山3丁目
-
京王線千歳烏山
-
-
-

-
- 新築一戸建て
- 6,590万円
-
狛江市東野川2丁目
-
小田急小田原線喜多見
-
-
-

-
- 新築一戸建て
- 6,390万円
-
三鷹市中原4丁目
-
京王線つつじヶ丘
-
-
-

-
- 新築一戸建て
- 6,790万円
-
狛江市東野川2丁目
-
小田急小田原線喜多見
-
-
-

-
- 新築一戸建て
- 3,980万円
-
足立区大谷田4丁目
-
東京メトロ千代田線北綾瀬
-
-
-

-
- 新築一戸建て
- 4,990万円
-
調布市深大寺南町5丁目
-
京王線つつじヶ丘
-
-
-

-
- 新築一戸建て
- 2,280万円
-
八王子市川口町
-
JR中央本線八王子
-
-
-

-
- 新築一戸建て
- 1億399万円
-
世田谷区北烏山3丁目
-
京王線千歳烏山
-
-
-

-
- 新築一戸建て
- 6,499万円
-
調布市深大寺東町4丁目
-
京王線つつじヶ丘
-
-
-

-
- 新築一戸建て
- 5,990万円
-
調布市深大寺北町1丁目
-
京王相模原線調布
-











担当エージェント:板谷 和友樹
ハウスドゥ立川北のホームページをご覧頂きありがとうございます。
お客様の多くがお家を買うのに不安があるかと思われます。ハウスドゥではお客様の不安や問題解決に一つ一つ誠心誠意お答えいたします。また、お家探しに役立つ多くの物件に関する情報を掲載しております。
ハウスドゥ立川北ではお客様お一人お一人にあったご提案を心がけており、ローンシュミレーションや人工知能を使ったライフプランの作成(要予約)を行いお客様の不安を解決いたします
■頭金は必要なのか?
■ローンは払っていけるのか?
■どのタイミングで住み替えや引越しが出来るのか?etc
お気軽に相談できるハウスドゥ立川北へお問い合わせ下さい
◆ご予約方法◆
直接お電話ください。【0120-537-936】
メールでのご予約も承ります。お気軽にご来店ください。
物件によっては事前に鍵の手配が必要な場合がありますので、お早目にご連絡をいただけるとご案内がスムーズです。
◆ご案内方法◆
①最寄駅や周辺地での待ち合わせ②ハウスドゥ立川北へのご来店などご相談ください。