高岡市角三島の新築戸建
NEW 12.26掲載情報更新日:2026年01月02日 次回更新予定日:2026年01月16日
- 3,153万円
-
- 借入ご希望金額
万円 - 借入期間
年 - 借入金利
% - 月々のお支払い金額
円
- 借入ご希望金額
※ 月々のお支払例は目安の試算となりますので、実際の金額とは異なる場合がございます。詳しくは店舗までお問合わせください。
- 高岡市角三島
-
JR氷見線『能町』 徒歩14分 (約1100m)
万葉線『新能町』 徒歩16分 (約1270m)
万葉線『荻布』 徒歩21分 (約1630m)
高岡市角三島一戸建て | 物件情報
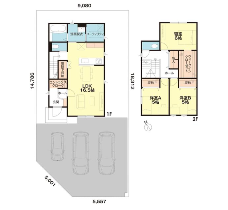
家事動線と収納力が暮らしを支える、ちょうどいい新築住宅。
LDKは約16.5帖。家具配置がしやすく、家族が自然と集まる空間です。
洗面脱衣室とユーティリティを分けた設計で、洗濯・室内干し・収納までスムーズな家事動線。
玄関にはエントランスクロークを設け、ベビーカーやアウトドア用品もすっきり収納可能。
2階寝室にはウォークインクローゼットを完備し、衣類や季節物もまとめて管理できます。
駐車スペースは複数台対応。来客時にも安心です。
新築ならではの最新設備・高い断熱性で、快適かつ経済的な暮らしを実現。
物件の設備
- 電気
- 上水道
- 下水道
- 側溝
- 食器洗浄乾燥機
- IHクッキングヒータ
- コンロ三口
- システムキッチン
- オープンキッチン
- オートバス
- バス1坪以上
- 追焚機能
- 浴室暖房
- 浴室乾燥機
- トイレ2箇所
- 温水洗浄便座
- 洗髪洗面化粧台
- 室内物干機
- エアコン2基
- 照明器具
- 省エネ給湯器
- EV車充電設備
- カードキー
- ダブルロックキー
- モニタ付インターホン
- 火災警報器/報知機
- 複層ガラス
- 全室フローリング
- クローゼット
- 全居室収納
- 庭
- サンルーム
物件の特徴
- 南向
- 前道6m以上
- 南側道路面す
- 閑静な住宅街
- 2階建
- 角地
物件詳細情報
| 価格 | 3,153万円 | 間取り | 3LDK |
|---|---|---|---|
| 物件種別 | 新築一戸建て | ||
| 所在地 | 富山県高岡市角三島 B号棟 | ||
| アクセス |
|
||
| 建物面積 | 94.19㎡ | 駐車場 | あり |
| 築年月 | 2026年(令和8年)06月予定 | 建築確認 | 第R07確認建築富建セ1813号 |
| 建物構造 | 木造 2階建 | 工法 | |
| 主要採光 | 南向 | バルコニー | |
| 保証・評価 | |||
| 分譲情報 | |||
| 土地面積 | 160.29㎡(48.48坪) | 接道 | 南側(公道)幅 約6.0m 間口 約10.50m 西側(公道)幅 約16.0m 間口 約14.70m |
| 私道 | セットバック | ||
| 地目 | 宅地 | 地勢 | 平坦 |
| 権利 | 所有権 |
||
| 都市計画 | 市街化区域 |
用途地域 | 1種中高 |
| 建ぺい/容積率 | 70% / 200% | 土地国土法 | |
| 許可番号 | 建築基準法 | ||
| 法令制限 | 景観法 | ||
| 小学区 | 能町小学校 徒歩11分 (約870m) | 中学区 | 志貴野中学校 徒歩45分 (約3550m) |
| 現況 | 建築中 | 引渡 | 期日指定:2026年06月 |
| その他費用 | |||
| 備考 | ◆全居室収納付き。住まい全体で叶える充実の収納力 ◆玄関から寝室まで、収納計画の行き届いた間取り ◆コート掛け付き玄関収納&大型WIC完備 |
||
| 物件番号 | 4541130 | 取引態様 | 媒介 |
取扱店舗情報
ハウスドゥ 高岡野村 株式会社ことぶき不動産 店舗詳細ページへ
| 電話番号 | 0766-23-2030 |
|---|---|
| 所在地 | 〒933-0014 富山県高岡市野村1536番地17 アーバンビル1階B号室 |
| 営業時間 | 10:00~18:00 |
| 定休日 | 水曜日・祝日 |
| 宅建免許番号 | 富山県知事(1)第3303号 |
| アクセス | 店舗への地図はこちら |

来店ご予約
富山県高岡市で価格が似ている物件はこちら
- 富山県
マイページ物件数 - 764件
最近見た物件
-
-

-
- 中古一戸建て
- 1,380万円
-
岐阜市則武東4丁目
-
名鉄名古屋本線名鉄岐阜
-
富山県新築一戸建て新着物件
- お近くの店舗を探す
-
おすすめ物件
-
-

-
- 新築一戸建て
- 3,170万円
-
富山市新庄町
-
富山地鉄本線東新庄
-
-
-

-
- 新築一戸建て
- 2,590万円
-
富山市藤木
-
富山地鉄本線越中荏原
-
-
-

-
- 新築一戸建て
- 2,480万円
-
高岡市角三島
-
JR氷見線能町
-
-
-

-
- 新築一戸建て
- 2,380万円
-
富山市金泉寺
-
あいの風とやま鉄道新富山口
-
-
-

-
- 新築一戸建て
- 3,368万円
-
高岡市角三島
-
JR氷見線能町
-
-
-

-
- 新築一戸建て
- 3,250万円
-
高岡市赤祖父
-
JR城端線新高岡
-
-
-

-
- 新築一戸建て
- 2,990万円
-
高岡市駅南3丁目
-
JR城端線高岡
-
-
-

-
- 新築一戸建て
- 3,980万円
-
富山市婦中町田島
-
JR高山本線婦中鵜坂
-
-
-

-
- 新築一戸建て
- 2,480万円
-
富山市常盤台
-
富山地鉄本線東新庄
-
-
-

-
- 新築一戸建て
- 2,180万円
-
富山市中島1丁目
-
富山地鉄富山港線越中中島
-




















生活動線と収納計画が非常によく考えられた新築住宅です。
特に水まわりとユーティリティの配置は、共働き世帯や子育て世帯の方にとって使い勝手の良さを実感していただけるポイントだと思います。
無理のないサイズ感で、初めてのマイホームとしてもおすすめできる一邸です。