狛江市中和泉5丁目 新築戸建
掲載情報更新日:2026年04月06日 次回更新予定日:2026年04月20日
- 5,980万円
-
- 借入ご希望金額
万円 - 借入期間
年 - 借入金利
% - 月々のお支払い金額
円
- 借入ご希望金額
※ 月々のお支払例は目安の試算となりますので、実際の金額とは異なる場合がございます。詳しくは店舗までお問合わせください。
- 狛江市中和泉5丁目
-
小田急小田原線『狛江』 徒歩16分 (約1280m)
京王線『国領』 徒歩19分 (約1520m)
小田急小田原線『狛江』 バス乗車4分 狛江市立緑野小学校 停 徒歩4分 (約320m)
狛江市中和泉5丁目 新築戸建一戸建て | 物件情報
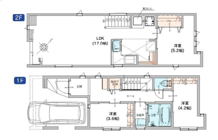
■LDK17帖超! ■食洗機・乾太くん等充実の住宅設備♪ ■2路線2駅利用可能
《Access》
・小田急線「狛江」徒歩16分
・京王線「国領」徒歩19分
《Point》
・閑静な住宅街の緑豊かな住環境
・南西接道 陽当り良好♪
・2面採光の3LDK
・LDK17帖のゆとり空間
・全居室収納あり
・床下収納完備
・食洗機&浄水栓付きシステムキッチン
・衣類乾燥機(乾太くん)備付
・宅配BOX&テレビモニター付きインターホンetc・・・充実の設備
◇スムーズな帰宅同線&家事時短が叶う間取り・設備!
充実設備のL型カウンターキッチン&洗濯スペースがまとまった家事ラク同線
リビングの一角にワーク&スタディスペースあり!
宅配BOX付きポストで荷物受け取りも便利
☆ご内見や資料請求もお気軽にお問合わせ下さい
物件の設備
- 電気
- 上水道
- 下水道
- 都市ガス
- 給湯
- 浄水器
- 食器乾燥機
- 食器洗浄乾燥機
- コンロ三口
- グリル
- カウンターキッチン
- システムキッチン
- オープンキッチン
- バス
- オートバス
- 追焚機能
- 浴室暖房
- 浴室乾燥機
- トイレ
- 温水洗浄便座
- 室内洗濯機置場
- 洗面所独立
- 衣類乾燥機
- 照明器具
- リビング階段
- 省エネ給湯器
- モニタ付インターホン
- 火災警報器/報知機
- LDK15畳以上
- 2面採光
- 3面採光
- 複層ガラス
- 全居室複層ガラス
- フローリング
- 全室フローリング
- シャッター雨戸
- 24時間換気システム
- クローゼット
- クローゼット3箇所
- 床下収納
- 全居室収納
- シューズボックス
- 宅配BOX
物件の特徴
- 地盤調査済
- 耐震構造
- 2沿線利用可
- 総合病院徒歩10分以内
- 緑豊かな住宅地
- スーパーが近い
- 閑静な住宅街
- 周辺交通量少なめ
- 市街地が近い
- 都市近郊
- 眺望良好
- 通風良好
- 陽当り良好
- 2階建
- 平坦地
- フラット35Sに対応
物件詳細情報
| 価格 | 5,980万円 | 間取り | 3LDK |
|---|---|---|---|
| 物件種別 | 新築一戸建て | ||
| 所在地 | 東京都狛江市中和泉5丁目 | ||
| アクセス |
|
||
| 建物面積 | 実86.67㎡ | 駐車場 | あり 普通:1台 |
| 築年月 | 2026年(令和8年)05月予定 | 建築確認 | 第2025SBC-確02359H号 |
| 建物構造 | 木造 2階建 | 工法 | |
| 主要採光 | 南西向 | バルコニー | |
| 保証・評価 | |||
| 土地面積 | 実68.3㎡(20.66坪) | 接道 | 南西側(私道)幅 約4.0m 間口 約5.08m |
| 私道 | セットバック | ||
| 地目 | 宅地 | 地勢 | 平坦 |
| 権利 | 所有権 |
||
| 都市計画 | 市街化区域 |
用途地域 | 1種低層 |
| 建ぺい/容積率 | 80% / 200% | 土地国土法 | |
| 許可番号 | 建築基準法 | ||
| 法令制限 | |||
| 小学区 | 和泉小学校 徒歩12分 (約910m) | 中学区 | 狛江第三中学校 徒歩21分 (約1640m) |
| 現況 | 建築中 | 引渡 | 期日指定:2026年05月下旬以降 |
| その他費用 | |||
| 周辺環境 | OKストア狛江店 徒歩6分 (約460m) 慈恵医大第三病院 徒歩7分 (約510m) 狛江こだま幼稚園 徒歩7分 (約520m) ユニディ狛江店 徒歩9分 (約660m) 前原公園 徒歩10分 (約770m) 狛江市立和泉小学校 徒歩12分 (約910m) セブンイレブン国領店 徒歩12分 (約940m) サンドラッグ調布染地店 徒歩12分 (約960m) 狛江市立狛江第三中学校 徒歩21分 (約1640m) 狛江郵便局 徒歩13分 (約1040m) |
||
| 備考 | |||
| 物件番号 | 4543294 | 取引態様 | 媒介 |
取扱店舗情報
ハウスドゥ 千歳船橋 R2-CONNECT株式会社 店舗詳細ページへ
| 電話番号 | 03-5799-7621 |
|---|---|
| 所在地 | 〒156-0054 東京都世田谷区桜丘5丁目47-19 |
| 営業時間 | 9:00~19:00 |
| 定休日 | 火曜日、水曜日 |
| 宅建免許番号 | 東京都知事(1)第107079号 |
| アクセス | 店舗への地図はこちら |

来店ご予約
- 東京都
マイページ物件数 - 5,820件
最近見た物件
-
-

-
- 新築一戸建て
- 3,130万円
-
大分市大字寒田
-
JR豊肥本線敷戸
-
-
-

-
- 新築一戸建て
- 3,380万円
-
小牧市久保一色南1丁目
-
名鉄小牧線田県神社前
-
-
-

-
- 土地
- 500万円
-
羽島市竹鼻町神楽
-
名鉄竹鼻・羽島線竹鼻
-
東京都新築一戸建て新着物件
- お近くの店舗を探す
-
おすすめ物件
-
-

-
- 新築一戸建て
- 6,499万円
-
調布市深大寺東町4丁目
-
京王線つつじヶ丘
-
-
-

-
- 新築一戸建て
- 5,399万円
-
日野市多摩平3丁目
-
JR中央本線豊田
-
-
-

-
- 新築一戸建て
- 5,299万円
-
八王子市子安町3丁目
-
JR中央本線八王子
-
-
-

-
- 新築一戸建て
- 5,099万円
-
八王子市高尾町
-
JR中央本線高尾
-
-
-

-
- 新築一戸建て
- 8,799万円
-
練馬区東大泉7丁目
-
西武池袋・豊島線大泉学園
-
-
-

-
- 新築一戸建て
- 5,699万円
-
八王子市追分町
-
JR中央本線西八王子
-
-
-

-
- 新築一戸建て
- 1億3,950万円
-
世田谷区砧7丁目
-
小田急小田原線祖師ヶ谷大蔵
-
-
-

-
- 新築一戸建て
- 5,599万円
-
日野市多摩平3丁目
-
JR中央本線豊田
-
-
-

-
- 新築一戸建て
- 3,580万円
-
八王子市犬目町
-
JR中央本線八王子
-
-
-

-
- 新築一戸建て
- 4,999万円
-
八王子市子安町1丁目
-
JR中央本線八王子
-





















狛江市の物件はハウスドゥ千歳船橋へお任せください。
物件、資金計画、周辺環境もご案内させて頂きます♪
資料請求、ご見学お気軽にお問合せください。