明石市二見町西二見の新築戸建
掲載情報更新日:2026年02月21日 次回更新予定日:2026年03月07日
- 2,880万円
-
- 借入ご希望金額
万円 - 借入期間
年 - 借入金利
% - 月々のお支払い金額
円
- 借入ご希望金額
※ 月々のお支払例は目安の試算となりますので、実際の金額とは異なる場合がございます。詳しくは店舗までお問合わせください。
- 明石市二見町西二見
-
山陽電鉄本線『西二見』 徒歩14分 (約1120m)
JR山陽本線『土山』 徒歩20分 (約1600m)
山陽電鉄本線『東二見』 徒歩20分 (約1600m)
明石市二見町西二見一戸建て | 物件情報
不動産会社のイメージを変えたい。全国700店舗展開中!不動産はハウスドゥ明石藤江におまかせください!
【ハウスドゥ明石藤江】おすすめ
周辺には商業施設が充実
生活しやすいエリア
性能評価取得物件!
カースペース2台完備!ユーティリティ3帖♪
防犯カメラ・TVモニター付インターホン
現地へ行って陽当りや周辺環境・街並みを確かめよう!
お気軽にお問合せください!
二見西小学校 約 532m / 徒歩7分
二見中学校 約 569m / 徒歩8分
【ハウスドゥ明石藤江】ご来店サービス♪
♪お客様を駅まで送迎いたします!JR「西明石」「大久保」駅 山陽電鉄線もご相談ください♪
♪ご来店のお客様へウェルカムドリンクのご提供♪ゆっくりと店内でご相談ください♪
どんな小さな事でもご相談ください!エージェントが全力でお手伝い・サポートさせていただきます!
【ハウスドゥ明石藤江】はお客様のより近くにある安心・便利・信頼されるお店づくりを展開中!
【ハウスドゥ明石藤江】はすべての物件情報を公開中!
お問合せはこちらまで →0120-077-712
物件の設備
- 電気
- 上水道
- 公営水道
- 下水道
- 都市ガス
- 給湯
- コンロ三口
- カウンターキッチン
- システムキッチン
- バス
- ユニットバス
- オートバス
- バス1坪以上
- 追焚機能
- 浴室乾燥機
- 浴室に窓
- トイレ
- トイレ2箇所
- 温水洗浄便座
- 高機能トイレ
- 室内洗濯機置場
- 洗髪洗面化粧台
- 洗面所独立
- 省エネ給湯器
- モニタ付インターホン
- 防犯カメラ
- LDK15畳以上
- 2面採光
- 複層ガラス
- クローゼット
- 床下収納
- 全居室収納
- シューズボックス
- ルーフバルコニー
- 庭
物件の特徴
- 閑静な住宅街
- 周辺交通量少なめ
- 通風良好
- 陽当り良好
- 2階建
- フラット35Sに対応
物件詳細情報
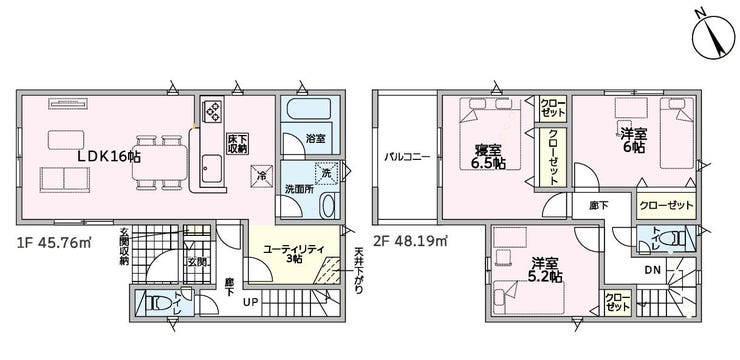
| 価格 | 2,880万円 | 間取り | 3LDK |
|---|---|---|---|
| 物件種別 | 新築一戸建て | ||
| 所在地 | 兵庫県明石市二見町西二見 1号棟 | ||
| アクセス |
|
||
| 建物面積 | 87.47㎡ | 駐車場 | あり 普通:2台 |
| 築年月 | 2026年(令和8年)03月予定 | 建築確認 | R07SHC123956号 |
| 建物構造 | 木造 2階建 | 工法 | |
| 主要採光 | 南向 | バルコニー | 6.48㎡ |
| 保証・評価 | |||
| 土地面積 | 94.4㎡(28.55坪) | 接道 | 北西側(公道)幅 約4.9m |
| 私道 | セットバック | ||
| 地目 | 宅地 | 地勢 | 平坦 |
| 権利 | 所有権 |
||
| 都市計画 | 市街化区域 |
用途地域 | 1種住居 |
| 建ぺい/容積率 | 60% / 196% | 土地国土法 | |
| 許可番号 | 建築基準法 | ||
| 法令制限 | |||
| 小学区 | 二見西小学校 徒歩7分 (約532m) | 中学区 | 二見中学校 徒歩8分 (約569m) |
| 現況 | 建築中 | 引渡 | 期日指定:2026年03月 |
| その他費用 | |||
| 周辺環境 | まいどおおきに食堂明石二見食堂 徒歩4分 (約270m) かつや 明石二見店 徒歩4分 (約280m) ファミリーマート 明石二西見店 徒歩4分 (約320m) 資さんうどん 明石二見店 徒歩4分 (約320m) コーナン 明石二見店 徒歩7分 (約520m) 二見西小学校 徒歩7分 (約530m) 西二見幼稚園 徒歩7分 (約530m) 二見中学校 徒歩8分 (約590m) スーパーマルハチ二見店 徒歩9分 (約660m) 明石二見北郵便局 徒歩9分 (約680m) |
||
| 備考 | 周辺には商業施設が充実 生活しやすいエリア 性能評価取得物件! カースペース2台完備!ユーティリティ3帖♪ 防犯カメラ・TVモニター付インターホン |
||
| 物件番号 | 4544918 | 取引態様 | 媒介 |
取扱店舗情報
| 電話番号 | 078-962-7712 |
|---|---|
| 所在地 | 〒673-0044 兵庫県明石市藤江927-5 |
| 営業時間 | 10:00~18:00 |
| 定休日 | 水曜日 |
| 宅建免許番号 | 兵庫県知事(1)第401744号 |
| アクセス | 店舗への地図はこちら |

来店ご予約
兵庫県明石市で価格が似ている物件はこちら
- 兵庫県
マイページ物件数 - 3,356件
最近見た物件
-
-

-
- 中古一戸建て
- 1,229万円
-
石巻市新栄1丁目
-
JR石巻線陸前稲井
-
-
-

-
- 新築一戸建て
- 2,835万円
-
郡山市安積町荒井字安倍
-
JR東北本線郡山
-
兵庫県新築一戸建て新着物件
-
-

-
- 新築一戸建て
- 4,880万円
-
神戸市須磨区横尾3丁目
-
神戸市営地下鉄西神山手線妙法寺駅
-
-
-

-
- 新築一戸建て
- 3,780万円
-
川西市水明台2丁目
-
能勢電鉄平野駅
-
-
-

-
- 新築一戸建て
- 3,980万円
-
川西市久代4丁目
-
JR福知山線北伊丹駅
-
-
-

-
- 新築一戸建て
- 4,580万円
-
川西市松が丘町
-
阪急電鉄宝塚線川西能勢口駅
-
-
-

-
- 新築一戸建て
- 4,180万円
-
川西市水明台1丁目
-
能勢電鉄平野駅
-
-
-

-
- 新築一戸建て
- 3,980万円
-
川西市清和台東2丁目
-
阪急電鉄宝塚線川西能勢口駅
-
-
-

-
- 新築一戸建て
- 3,590万円
-
川西市水明台2丁目
-
能勢電鉄平野駅
-
- お近くの店舗を探す
-
おすすめ物件
-
-

-
- 新築一戸建て
- 2,698万円
-
姫路市上大野4丁目
-
JR播但線野里
-
-
-

-
- 新築一戸建て
- 4,190万円
-
神戸市中央区坂口通3丁目
-
阪急電鉄神戸線春日野道
-
-
-

-
- 新築一戸建て
- 4,080万円
-
川西市緑台3丁目
-
能勢電鉄多田
-
-
-

-
- 新築一戸建て
- 3,180万円
-
姫路市御立西6丁目
-
JR山陽本線姫路
-
-
-

-
- 新築一戸建て
- 2,798万円
-
姫路市上大野4丁目
-
JR播但線野里
-
-
-

-
- 新築一戸建て
- 3,380万円
-
加古川市尾上町長田
-
山陽電鉄本線尾上の松
-
-
-

-
- 新築一戸建て
- 2,080万円
-
高砂市百合丘
-
JR山陽本線宝殿
-
-
-

-
- 新築一戸建て
- 2,998万円
-
加古川市加古川町美乃利
-
JR山陽本線加古川
-
-
-

-
- 新築一戸建て
- 2,980万円
-
姫路市飾磨区中島
-
山陽電鉄本線飾磨
-

































担当エージェント:春木 宏友
納得のお住まい購入をお手伝い。より多くの住まい情報をお客様に迅速にお届けし、お住まいをご自由にお選びいただける環境を作り出すよう最善を尽くします。お客様の10年後、20年後の将来を考えたお住まいのご提案を目指します。お住まいのご購入が終わった後も、末永いお付き合いをお約束し誠意を持って対応させていただくことを誓います。全国のネットワークを通じ、情報収集し、お客様に最良のお住まいをご提案いたします。