新築戸建 上荒屋2丁目B棟
掲載情報更新日:2026年04月15日 次回更新予定日:2026年04月29日
- 3,590万円
-
- 借入ご希望金額
万円 - 借入期間
年 - 借入金利
% - 月々のお支払い金額
円
- 借入ご希望金額
※ 月々のお支払例は目安の試算となりますので、実際の金額とは異なる場合がございます。詳しくは店舗までお問合わせください。
- 金沢市上荒屋2丁目
-
IRいしかわ鉄道『野々市』 徒歩17分 (約1360m)
新築戸建 上荒屋2丁目B棟一戸建て | 物件情報
物件の設備
- 電気
- オール電化
- 上水道
- 下水道
- 側溝
- 浄水器
- 食器洗浄乾燥機
- IHクッキングヒータ
- システムキッチン
- バス1坪以上
- 追焚機能
- 浴室乾燥機
- トイレ2箇所
- 温水洗浄便座
- 洗髪洗面化粧台
- エアコン
- 照明器具
- ディンプルキー
- モニタ付インターホン
- 火災警報器/報知機
- 複層ガラス
- 24時間換気システム
- ウォークインクローゼット
物件の特徴
- 2階建
- BELS/省エネ基準適合
物件詳細情報
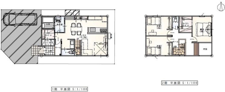
| 価格 | 3,590万円 | 間取り | 3LDK+S |
|---|---|---|---|
| 物件種別 | 新築一戸建て | ||
| 所在地 | 石川県金沢市上荒屋2丁目 | ||
| アクセス |
|
||
| 建物面積 | 101.22㎡ | 駐車場 | あり 普通:3台 |
| 築年月 | 2026年(令和8年)07月予定 | 建築確認 | 第IKJC25-0892号 |
| 建物構造 | 木造 2階建 | 工法 | |
| 主要採光 | バルコニー | ||
| 保証・評価 | |||
| 土地面積 | 公115.11㎡(34.82坪) | 接道 | 西側(公道)幅 約4.8m 間口 約8.10m |
| 私道 | セットバック | ||
| 地目 | 宅地 | 地勢 | 平坦 |
| 権利 | 所有権 |
||
| 都市計画 | 市街化区域 |
用途地域 | 1種中高 |
| 建ぺい/容積率 | 60% / 200% | 土地国土法 | |
| 許可番号 | 建築基準法 | ||
| 法令制限 | |||
| 小学区 | 三和小学校 徒歩14分 (約1100m) | 中学区 | 西南部中学校 徒歩19分 (約1500m) |
| 現況 | 引渡 | 期日指定:2026年08月以降 | |
| その他費用 | |||
| 備考 | |||
| 物件番号 | 4545177 | 取引態様 | 媒介 |
取扱店舗情報
ハウスドゥ 金沢駅西 ウォールドック株式会社 店舗詳細ページへ
| 電話番号 | 076-255-6833 |
|---|---|
| 所在地 | 〒920-0051 石川県金沢市二口町ロ10-2 |
| 営業時間 | 9:00~18:00 |
| 定休日 | 水曜日、祝日、日曜日不定休 |
| 宅建免許番号 | 石川県知事(1)第4489号 |
| アクセス | 店舗への地図はこちら |

来店ご予約
石川県金沢市で価格が似ている物件はこちら
- 石川県
マイページ物件数 - 461件
最近見た物件
-
-

-
- 土地
- 2,080万円
-
名古屋市中川区大当郎3丁目
-
近鉄名古屋線伏屋
-
-
-

-
- 中古一戸建て
- 3,500万円
-
鹿児島市石谷町
-
JR鹿児島本線上伊集院
-
-
-

-
- 土地
- 1,680万円
-
京田辺市大住野上
-
JR片町線大住
-
石川県新築一戸建て新着物件
- お近くの店舗を探す
-











