宇美町宇美東3丁目 新築戸建
掲載情報更新日:2026年02月23日 次回更新予定日:2026年03月09日
- 3,698万円
-
- 借入ご希望金額
万円 - 借入期間
年 - 借入金利
% - 月々のお支払い金額
円
- 借入ご希望金額
※ 月々のお支払例は目安の試算となりますので、実際の金額とは異なる場合がございます。詳しくは店舗までお問合わせください。
- 糟屋郡宇美町宇美東3丁目
-
JR香椎線『宇美』 徒歩22分 (約1760m)
宇美町宇美東3丁目 新築戸建一戸建て | 物件情報
物件の設備
- 電気
- 公営水道
- 下水道
- 側溝
- プロパンガス
- 個別プロパン
- 給湯
- 食品庫
- コンロ三口
- グリル
- カウンターキッチン
- システムキッチン
- ユニットバス
- オートバス
- 追焚機能
- 浴室暖房
- 浴室乾燥機
- 浴室に窓
- トイレ
- 温水洗浄便座
- 室内洗濯機置場
- 洗髪洗面化粧台
- 室内物干機
- ダウンライト
- 省エネ給湯器
- ディンプルキー
- ダブルロックキー
- モニタ付インターホン
- 火災警報器/報知機
- LDK18畳以上
- 和室
- 複層ガラス
- シャッター雨戸
- 24時間換気システム
- クローゼット
- ウォークインクローゼット
- 床下収納
- 全居室収納
- シューズボックス
- シューズインクローク
物件の特徴
- 小学校徒歩10分以内
- 建築確認完了検査済証
- BELS/省エネ基準適合
- フラット35Sに対応
物件詳細情報
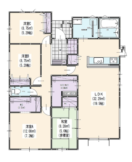
| 価格 | 3,698万円 | 間取り | 4LDK |
|---|---|---|---|
| 物件種別 | 新築一戸建て | ||
| 所在地 | 福岡県糟屋郡宇美町宇美東3丁目 1号棟 | ||
| アクセス |
|
||
| 建物面積 | 103.71㎡ | 駐車場 | あり |
| 築年月 | 2026年(令和8年)04月予定 | 建築確認 | 第KJH25-02527-1号 |
| 建物構造 | 木造 1階建 | 工法 | |
| 主要採光 | バルコニー | ||
| 保証・評価 | |||
| 土地面積 | 213.33㎡(64.53坪) | 接道 | 北西側(公道)幅 約4.0m |
| 私道 | セットバック | ||
| 地目 | 宅地 | 地勢 | |
| 権利 | 所有権 |
||
| 都市計画 | 非線引区域 |
用途地域 | 1種中高 |
| 建ぺい/容積率 | 60% / 160% | 土地国土法 | |
| 許可番号 | 建築基準法 | ||
| 法令制限 | 宅地造成工事規制区域・法22条区域・下水道処理区域 | ||
| 小学区 | 宇美東小学校 徒歩4分 (約300m) | 中学区 | 宇美東中学校 徒歩9分 (約700m) |
| 現況 | 未着工 | 引渡 | 期日指定:2026年05月以降 |
| その他費用 | |||
| 周辺環境 | 宇美東小学校 徒歩4分 (約300m) 宇美東公園 徒歩3分 (約170m) 柳原ぷらす保育園 徒歩3分 (約180m) セブンイレブン宇美東小学校前店 徒歩5分 (約390m) 宇美早見郵便局 徒歩8分 (約590m) ミスターマックス Select 宇美店 徒歩9分 (約660m) 宇美東中学校 徒歩9分 (約700m) ディスカウントドラッグコスモス宇美店 徒歩9分 (約690m) 宇美町役場 徒歩26分 (約2030m) |
||
| 備考 | |||
| 物件番号 | 4552009 | 取引態様 | 媒介 |
取扱店舗情報
ハウスドゥ 福岡流通センター 有限会社セゾン 店舗詳細ページへ
| 電話番号 | 092-260-7722 |
|---|---|
| 所在地 | 〒813-0034 福岡県福岡市東区多の津4丁目9-1 103 |
| 営業時間 | 9:00~19:00 |
| 定休日 | 年末年始、GW、お盆休み |
| 宅建免許番号 | 福岡県知事(1)第20006号 |
| アクセス | 店舗への地図はこちら |

来店ご予約
福岡県糟屋郡宇美町で価格が似ている物件はこちら
- 福岡県
マイページ物件数 - 8,846件
最近見た物件
-
-

-
- 中古一戸建て
- 1,280万円
-
東大阪市岩田町5丁目
-
近鉄難波・奈良線若江岩田
-
福岡県新築一戸建て新着物件
-
-

-
- 新築一戸建て
- 4,698万円
-
糟屋郡志免町志免1丁目
-
福岡市空港線福岡空港駅
-
-
-

-
- 新築一戸建て
- 4,498万円
-
福岡市東区三苫2丁目
-
西鉄貝塚線三苫駅
-
-
-

-
- 新築一戸建て
- 3,688万円
-
糟屋郡篠栗町田中3丁目
-
JR篠栗線篠栗駅
-
-
-

-
- 新築一戸建て
- 3,788万円
-
糟屋郡篠栗町田中3丁目
-
JR篠栗線篠栗駅
-
-
-

-
- 新築一戸建て
- 3,688万円
-
糟屋郡篠栗町田中3丁目
-
JR篠栗線篠栗駅
-
-
-

-
- 新築一戸建て
- 3,788万円
-
糟屋郡篠栗町田中3丁目
-
JR篠栗線篠栗駅
-
-
-

-
- 新築一戸建て
- 4,148万円
-
糟屋郡篠栗町田中4丁目
-
JR篠栗線篠栗駅
-
- お近くの店舗を探す
-
おすすめ物件
-
-

-
- 新築一戸建て
- 3,788万円
-
福岡市早良区賀茂2丁目
-
福岡市七隈線賀茂
-
-
-

-
- 新築一戸建て
- 4,799万円
-
福岡市南区警弥郷2丁目
-
JR博多南線博多南
-
-
-

-
- 新築一戸建て
- 4,380万円
-
糟屋郡志免町王子2丁目
-
JR香椎線須恵
-
-
-

-
- 新築一戸建て
- 3,498万円
-
宗像市徳重
-
JR鹿児島本線教育大前
-
-
-

-
- 新築一戸建て
- 4,099万円
-
福岡市南区皿山1丁目
-
西鉄天神大牟田線高宮
-
-
-

-
- 新築一戸建て
- 3,198万円
-
北九州市小倉南区北方3丁目
-
北九州高速鉄道北方
-
-
-

-
- 新築一戸建て
- 3,098万円
-
北九州市小倉北区赤坂4丁目
-
西鉄バス手向山停
-
-
-

-
- 新築一戸建て
- 3,598万円
-
福岡市早良区干隈5丁目
-
福岡市七隈線野芥
-
-
-

-
- 新築一戸建て
- 2,898万円
-
古賀市花見南2丁目
-
JR鹿児島本線古賀
-
-
-

-
- 新築一戸建て
- 4,798万円
-
糟屋郡粕屋町大字柚須
-
JR篠栗線柚須
-










