足立区南花畑1丁目の新築戸建
掲載情報更新日:2026年04月26日 次回更新予定日:2026年05月10日
- 6,440万円
-
- 借入ご希望金額
万円 - 借入期間
年 - 借入金利
% - 月々のお支払い金額
円
- 借入ご希望金額
※ 月々のお支払例は目安の試算となりますので、実際の金額とは異なる場合がございます。詳しくは店舗までお問合わせください。
- 足立区南花畑1丁目
-
東武伊勢崎・大師線『西新井』 徒歩6分 (約480m)
東武伊勢崎・大師線『大師前』 徒歩13分 (約1000m)
足立区南花畑1丁目一戸建て | 物件情報
「住環境と利便性が整う足立区の戸建住宅」
足立区は都心へのアクセスと住環境のバランスに優れたエリアです。
戸建住宅が多く立ち並ぶ住宅街が広がり、落ち着いた街並みが魅力。
周辺にはスーパーやコンビニ、医療機関など生活利便施設が身近に揃っており、日々の暮らしも快適です。
公園や教育施設も点在し、子育て世帯から幅広い世代に支持されています。
長く安心して暮らせる住環境を重視される方におすすめの立地です。
物件の設備
- 電気
- 下水道
- 公共下水
- 都市ガス
- コンロ三口
- カウンターキッチン
- システムキッチン
- トイレ2箇所
- 室内洗濯機置場
- 床暖房
- LDK18畳以上
- クローゼット3箇所
- バルコニー
- 2面バルコニー
物件の特徴
- 南側道路面す
- スーパーが近い
- 閑静な住宅街
- 市街地が近い
- 都市近郊
- 3階建以上
物件詳細情報
| 価格 | 6,440万円 | 間取り | 4LDK |
|---|---|---|---|
| 物件種別 | 新築一戸建て | ||
| 所在地 | 東京都足立区南花畑1丁目 9号棟 | ||
| アクセス |
|
||
| 建物面積 | 公100.49㎡ | 駐車場 | あり 普通:1台 |
| 築年月 | 2026年(令和8年)02月築 | 建築確認 | 第25UDI1K建01364号 |
| 建物構造 | 木造 3階建 | 工法 | |
| 主要採光 | バルコニー | 南東向4.95㎡ | |
| 保証・評価 | |||
| 分譲情報 | 【販売戸数】:4戸 【価格】:6,740万円 ~7,540万円 【土地面積】:83.87㎡ ~87.07㎡ |
||
| 土地面積 | 公84.32㎡(25.50坪) | 接道 | 南側(私道)幅 約5.0m |
| 私道 | セットバック | ||
| 地目 | 宅地 | 地勢 | |
| 権利 | 所有権 |
||
| 都市計画 | 市街化区域 |
用途地域 | 準工業 |
| 建ぺい/容積率 | 60% / 200% | 土地国土法 | |
| 許可番号 | 建築基準法 | ||
| 法令制限 | |||
| 小学区 | 花畑小学校 徒歩5分 (約400m) | 中学区 | 花保中学校 徒歩14分 (約1100m) |
| 現況 | 建築中 | 引渡 | 期日指定:2026年02月 |
| その他費用 | |||
| 周辺環境 | 児童館・悠々館 徒歩4分 (約300m) ぎょうざ工房 千稀 徒歩5分 (約380m) ヤマザキショップ 徒歩6分 (約470m) YOPUTERRACE 徒歩7分 (約500m) 鉄板焼き ゆきん粉 徒歩7分 (約510m) 喫茶店 徒歩6分 (約480m) 南花畑歯科医院 徒歩7分 (約540m) 美容院 徒歩7分 (約540m) PC教室 徒歩7分 (約550m) マクドナルド 南花畑1丁目店 徒歩7分 (約550m) |
||
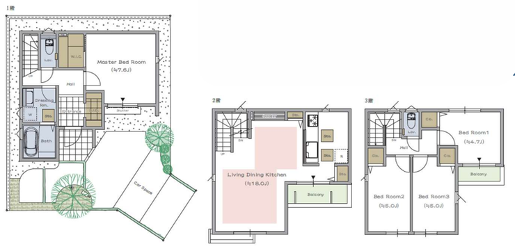
| 備考 | 3階建てのゆとりある間取りプラン。2階に約18帖のLDKを配置し、家族が集まりやすい開放的な空間を実現しています。対面式キッチン・食洗機付きで家事効率も良好。 1階には主寝室と水回りを集約し、生活動線に配慮。洗面室・浴室・トイレは窓付きで換気もしやすい設計です。各居室に収納を確保し、3階にはバルコニーも設置。 カースペース付き。周辺は落ち着いた住環境で、毎日の暮らしを快適にサポートする住まいです。詳細はお気軽にお問い合わせください。 |
||
| 物件番号 | 4553717 | 取引態様 | 媒介 |
取扱店舗情報
ハウスドゥ 足立平野環七通り 株式会社CiansStep 店舗詳細ページへ
| 電話番号 | 03-5809-6190 |
|---|---|
| 所在地 | 〒121-0076 東京都足立区平野1丁目15-27 |
| 営業時間 | 9:00~18:00 |
| 定休日 | 火曜日、水曜日 |
| 宅建免許番号 | 東京都知事(1)第113026号 |
| アクセス | 店舗への地図はこちら |

来店ご予約
東京都足立区で価格が似ている物件はこちら
- 東京都
マイページ物件数 - 5,881件
最近見た物件
-
-

-
- 新築一戸建て
- 3,170万円
-
霧島市国分清水2丁目
-
JR日豊本線国分
-
-
-

-
- 中古マンション
- 1,490万円
-
高松市伏石町
-
高松琴平電鉄琴平線伏石
-
-
-

-
- 新築一戸建て
- 2,790万円
-
筑後市大字前津
-
JR鹿児島本線羽犬塚
-
東京都新築一戸建て新着物件
-
-

-
- 新築一戸建て
- 5,680万円
-
小平市学園東町
-
西武多摩湖線一橋学園駅
-
-
-

-
- 新築一戸建て
- 7,299万円
-
足立区平野3丁目
-
つくばエクスプレス六町駅
-
-
-

-
- 新築一戸建て
- 6,599万円
-
足立区平野3丁目
-
つくばエクスプレス六町駅
-
-
-

-
- 新築一戸建て
- 6,280万円
-
北区西が丘2丁目
-
JR京浜東北・根岸線東十条駅
-
-
-

-
- 新築一戸建て
- 6,480万円
-
調布市若葉町2丁目
-
京王線仙川駅
-
-
-

-
- 新築一戸建て
- 4,390万円
-
八王子市南陽台3丁目
-
京王線長沼駅
-
-
-

-
- 新築一戸建て
- 6,799万円
-
八王子市子安町2丁目
-
京王高尾線京王片倉駅
-
- お近くの店舗を探す
-
おすすめ物件
-
-

-
- 新築一戸建て
- 6,199万円
-
調布市深大寺東町4丁目
-
京王線つつじヶ丘
-
-
-

-
- 新築一戸建て
- 4,899万円
-
足立区花畑7丁目
-
東武伊勢崎・大師線谷塚
-
-
-

-
- 新築一戸建て
- 6,199万円
-
調布市深大寺東町4丁目
-
京王線つつじヶ丘
-
-
-

-
- 新築一戸建て
- 1億980万円
-
練馬区東大泉3丁目
-
西武池袋・豊島線大泉学園
-
-
-

-
- 新築一戸建て
- 5,899万円
-
八王子市兵衛2丁目
-
JR横浜線八王子みなみ野
-
-
-

-
- 新築一戸建て
- 6,960万円
-
足立区南花畑1丁目
-
つくばエクスプレス六町
-
-
-

-
- 新築一戸建て
- 3,480万円
-
八王子市犬目町
-
JR中央本線八王子
-
-
-

-
- 新築一戸建て
- 5,699万円
-
八王子市打越町
-
JR横浜線片倉
-
-
-

-
- 新築一戸建て
- 5,399万円
-
日野市多摩平3丁目
-
JR中央本線豊田
-
-
-

-
- 新築一戸建て
- 5,199万円
-
八王子市鹿島
-
多摩モノレール松が谷
-























担当エージェント:穴井一樹
住みやすさで人気の足立区エリアに位置する戸建住宅です。
周辺環境や住まい選びのポイント、購入に関する流れなどについても丁寧にご案内いたします。
資金計画や住宅ローンのご相談も承りますので、戸建購入をご検討の方はお気軽にお問い合わせください。