高槻市西冠1丁目の新築戸建
NEW 01.15掲載情報更新日:2026年01月15日 次回更新予定日:2026年01月29日
- 3,280万円
-
- 借入ご希望金額
万円 - 借入期間
年 - 借入金利
% - 月々のお支払い金額
円
- 借入ご希望金額
※ 月々のお支払例は目安の試算となりますので、実際の金額とは異なる場合がございます。詳しくは店舗までお問合わせください。
- 高槻市西冠1丁目
-
阪急電鉄京都線『高槻市』 徒歩26分 (約2080m)
高槻市西冠1丁目一戸建て | 物件情報
物件の設備
- 電気
- 上水道
- 下水道
- 都市ガス
- 給湯
- カウンターキッチン
- システムキッチン
- バス
- 浴室に窓
- トイレ2箇所
- 室内洗濯機置場
- 洗髪洗面化粧台
- 洗面所独立
- LDK15畳以上
- 全居室6畳以上
- フローリング
- クローゼット
- ウォークインクローゼット
- 全居室収納
- バルコニー
- 南面バルコニー
物件の特徴
- 南側道路面す
- 通風良好
- 陽当り良好
- 3階建以上
- 平坦地
- 整形地
物件詳細情報
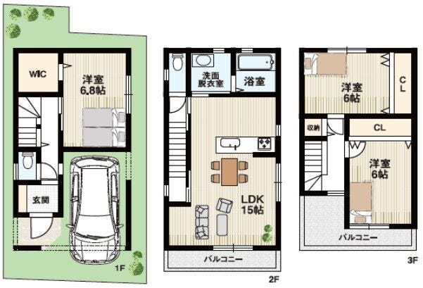
| 価格 | 3,280万円 | 間取り | 3LDK |
|---|---|---|---|
| 物件種別 | 新築一戸建て | ||
| 所在地 | 大阪府高槻市西冠1丁目26-8 | ||
| アクセス |
|
||
| 建物面積 | 104.67㎡ | 駐車場 | あり 普通:1台 |
| 築年月 | 2026年(令和8年)01月予定 | 建築確認 | 第HK25-0120号 |
| 建物構造 | 木造 3階建 | 工法 | |
| 主要採光 | 南向 | バルコニー | |
| 保証・評価 | |||
| 土地面積 | 公56.74㎡(17.16坪) | 接道 | 南側(私道)幅 約4.7m 間口 約5.49m |
| 私道 | セットバック | ||
| 地目 | 宅地 | 地勢 | |
| 権利 | 所有権 |
||
| 都市計画 | 市街化区域 |
用途地域 | 2種中高 |
| 建ぺい/容積率 | 60% / 188% | 土地国土法 | |
| 許可番号 | 建築基準法 | ||
| 法令制限 | |||
| 小学区 | 西大冠小学校 徒歩6分 (約480m) | 中学区 | 城南中学校 徒歩10分 (約800m) |
| 現況 | 建築中 | 引渡 | 期日指定:2026年02月以降 |
| その他費用 | |||
| 備考 | |||
| 物件番号 | 4553807 | 取引態様 | 媒介 |
取扱店舗情報
ハウスドゥ 高槻富田 株式会社コンフォート住宅販売 店舗詳細ページへ
| 電話番号 | 072-668-2246 |
|---|---|
| 所在地 | 〒569-0814 大阪府高槻市富田町3丁目15-15 |
| 営業時間 | 10:00~19:00 |
| 定休日 | 水曜日、年末年始 |
| 宅建免許番号 | 大阪府知事(2)第61490号 |
| アクセス | 店舗への地図はこちら |

来店ご予約
大阪府高槻市で価格が似ている物件はこちら
- 大阪府
マイページ物件数 - 16,429件
最近見た物件
-
-

-
- 新築一戸建て
- 4,480万円
-
茨木市島2丁目
-
阪急電鉄京都線南茨木
-
大阪府新築一戸建て新着物件
-
-

-
- 新築一戸建て
- 4,180万円
-
東大阪市岩田町1丁目
-
近鉄難波・奈良線若江岩田駅
-
-
-

-
- 新築一戸建て
- 4,780万円
-
大阪市旭区生江3丁目
-
JRおおさか東線城北公園通駅
-
-
-

-
- 新築一戸建て
- 4,480万円
-
茨木市島2丁目
-
阪急電鉄京都線南茨木駅
-
-
-

-
- 新築一戸建て
- 4,580万円
-
茨木市島2丁目
-
阪急電鉄京都線南茨木駅
-
-
-

-
- 新築一戸建て
- 4,680万円
-
茨木市島2丁目
-
阪急電鉄京都線南茨木駅
-
-
-

-
- 新築一戸建て
- 2,880万円
-
泉南郡熊取町七山2丁目
-
JR阪和線東佐野駅
-
-
-

-
- 新築一戸建て
- 2,980万円
-
泉南郡熊取町七山2丁目
-
JR阪和線東佐野駅
-
- お近くの店舗を探す
-
おすすめ物件
-
-

-
- 新築一戸建て
- 5,180万円
-
高槻市北昭和台町
-
阪急電鉄京都線総持寺
-
-
-

-
- 新築一戸建て
- 3,080万円
-
高槻市西町
-
阪急電鉄京都線富田
-
-
-

-
- 新築一戸建て
- 4,780万円
-
堺市北区百舌鳥本町2丁
-
JR阪和線百舌鳥
-
-
-

-
- 新築一戸建て
- 3,180万円
-
東大阪市花園東町2丁目
-
近鉄難波・奈良線東花園
-
-
-

-
- 新築一戸建て
- 5,080万円
-
大阪市住之江区粉浜西3丁目
-
南海電鉄本線住吉大社
-
-
-

-
- 新築一戸建て
- 3,180万円
-
東大阪市花園東町2丁目
-
近鉄難波・奈良線東花園
-
-
-

-
- 新築一戸建て
- 4,680万円
-
堺市北区新金岡町5丁
-
大阪市御堂筋線新金岡
-
-
-

-
- 新築一戸建て
- 3,680万円
-
東大阪市中小阪1丁目
-
近鉄難波・奈良線河内小阪
-
-
-

-
- 新築一戸建て
- 3,980万円
-
東大阪市中小阪1丁目
-
近鉄難波・奈良線河内小阪
-
-
-

-
- 新築一戸建て
- 3,899万円
-
高槻市川西町1丁目
-
JR東海道線高槻
-



