新築戸建 松原市上田8丁目
掲載情報更新日:2026年03月06日 次回更新予定日:2026年03月20日
- 3,480万円
-
- 借入ご希望金額
万円 - 借入期間
年 - 借入金利
% - 月々のお支払い金額
円
- 借入ご希望金額
※ 月々のお支払例は目安の試算となりますので、実際の金額とは異なる場合がございます。詳しくは店舗までお問合わせください。
- 松原市上田8丁目
-
近鉄南大阪線『河内松原』 徒歩11分 (約880m)
近鉄南大阪線『高見ノ里』 徒歩24分 (約1920m)
近鉄南大阪線『恵我ノ荘』 徒歩21分 (約1680m)
新築戸建 松原市上田8丁目一戸建て | 物件情報
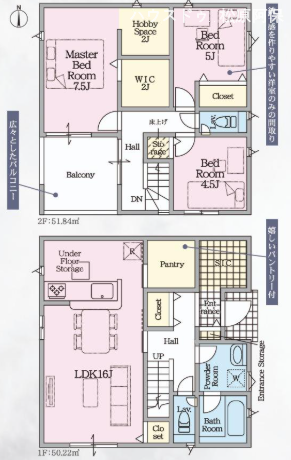
★令和8年1月完成!3LDKのお家★
★令和8年1月完成!3LDKのお家★
●オススメポイント●
・1.2階にそれぞれトイレ完備
・全居室収納あり
・駐車2台可能
・南向きバルコニー♪
・小・中学校徒歩y約10分
・シューズインクローク→パントリー→キッチンへ便利な同線
●教育機関●
・松原小学校 徒歩9分
松原中学校 徒歩10分
物件の設備
- 電気
- 公営水道
- 公共下水
- 都市ガス
- 給湯
- グリル
- システムキッチン
- バス
- ユニットバス
- 追焚機能
- 浴室に窓
- トイレ
- トイレ2箇所
- 室内洗濯機置場
- 洗面所独立
- ダウンライト
- モニタ付インターホン
- LDK15畳以上
- フローリング
- クローゼット
- ウォークインクローゼット
- 全居室収納
- バルコニー
- 南面バルコニー
- ハイルーフ駐車可能
物件の特徴
- 小学校徒歩10分以内
- スーパーが近い
- 閑静な住宅街
- 通風良好
- 2階建
- 平坦地
物件詳細情報
| 価格 | 3,480万円 | 間取り | 3LDK |
|---|---|---|---|
| 物件種別 | 新築一戸建て | ||
| 所在地 | 大阪府松原市上田8丁目 | ||
| アクセス |
|
||
| 建物面積 | 公102.06㎡ | 駐車場 | あり 普通:2台 |
| 築年月 | 2026年(令和8年)01月築 | 建築確認 | 第R07SH0117992号 |
| 建物構造 | 木造 2階建 | 工法 | |
| 主要採光 | 東向 | バルコニー | 南向94.77㎡ |
| 保証・評価 | |||
| 土地面積 | 公139.49㎡(42.19坪) | 接道 | 東側(私道)幅 約4.9m 間口 約4.98m |
| 私道 | セットバック | ||
| 地目 | 宅地 | 地勢 | |
| 権利 | 所有権 |
||
| 都市計画 | 市街化区域 |
用途地域 | 2種中高 |
| 建ぺい/容積率 | 60% / 200% | 土地国土法 | |
| 許可番号 | 建築基準法 | ||
| 法令制限 | 宅地造成工事規制区域・準防火地域 | ||
| 小学区 | 松原小学校 徒歩9分 (約650m) | 中学区 | 松原中学校 徒歩10分 (約800m) |
| 現況 | 完工済 | 引渡 | 相談 |
| その他費用 | |||
| 周辺環境 | 認定こども園 宮前つばさ幼稚園 徒歩1分 (約80m) うえだ おおぞら保育園 徒歩4分 (約290m) 松原市立松原小学校 徒歩10分 (約780m) 松原市立松原中学校 徒歩12分 (約900m) 大阪府立大塚高等学校 徒歩11分 (約830m) イズミヤ ショッピングセンター松原店 徒歩5分 (約370m) 松原市民情報ライブラリー 徒歩4分 (約300m) ココカラファイン ドラッグストアライフォート松原店 徒歩8分 (約600m) ゆめニティまつばら 徒歩11分 (約840m) 河内松原駅 徒歩10分 (約800m) |
||
| 備考 | ・認定こども園 宮前つばさ幼稚園まで徒歩1分(約80m) ・うえだ おおぞら保育園まで徒歩4分(約290m) ・松原市立松原小学校まで徒歩10分(約780m) ・松原市立松原中学校まで徒歩12分(約900m) ・大阪府立大塚高等学校まで徒歩11分(約830m) ・イズミヤ ショッピングセンター松原店まで徒歩5分(約370m) ・松原市民情報ライブラリーまで徒歩4分(約300m) ・ココカラファイン ドラッグストアライフォート松原店まで徒歩8分(約600m) ・ゆめニティまつばらまで徒歩11分(約840m) ・河内松原駅まで徒歩10分(約800m) |
||
| 物件番号 | 4554351 | 取引態様 | 媒介 |
取扱店舗情報
ハウスドゥ 松原阿保 Tacoo home株式会社 店舗詳細ページへ
| 電話番号 | 072-247-5294 |
|---|---|
| 所在地 | 〒580-0043 大阪府松原市阿保1丁目4-11コーポイン松原102 |
| 営業時間 | 平日:10:00~20:00/土日祝:9:00~20:00 |
| 定休日 | 水曜日 |
| 宅建免許番号 | 大阪府知事(1)第65754号 |
| アクセス | 店舗への地図はこちら |

来店ご予約
大阪府松原市で価格が似ている物件はこちら
- 大阪府
マイページ物件数 - 17,836件
大阪府新築一戸建て新着物件
-
-

-
- 新築一戸建て
- 6,790万円
-
箕面市桜3丁目
-
阪急電鉄箕面線牧落駅
-
-
-

-
- 新築一戸建て
- 5,490万円
-
箕面市半町4丁目
-
阪急電鉄箕面線桜井駅
-
-
-

-
- 新築一戸建て
- 4,498万円
-
箕面市外院3丁目
-
北大阪急行南北線箕面萱野駅
-
-
-

-
- 新築一戸建て
- 5,980万円
-
摂津市鳥飼野々1丁目
-
大阪モノレール南摂津駅
-
-
-

-
- 新築一戸建て
- 3,090万円
-
東大阪市下六万寺町3丁目
-
近鉄難波・奈良線瓢箪山駅
-
-
-

-
- 新築一戸建て
- 3,480万円
-
茨木市新和町
-
阪急電鉄京都線南茨木駅
-
-
-

-
- 新築一戸建て
- 4,480万円
-
茨木市島2丁目
-
阪急電鉄京都線南茨木駅
-
- お近くの店舗を探す
-
おすすめ物件
-
-

-
- 新築一戸建て
- 3,680万円
-
大阪市東住吉区住道矢田4丁目
-
近鉄南大阪線矢田
-
-
-

-
- 新築一戸建て
- 3,198万円
-
泉大津市池浦町5丁目
-
JR阪和線和泉府中
-
-
-

-
- 新築一戸建て
- 3,090万円
-
河内長野市南青葉台
-
南海電鉄高野線三日市町
-
-
-

-
- 新築一戸建て
- 4,580万円
-
茨木市島2丁目
-
阪急電鉄京都線南茨木
-
-
-

-
- 新築一戸建て
- 3,680万円
-
東大阪市水走2丁目
-
近鉄けいはんな線吉田
-
-
-

-
- 新築一戸建て
- 4,480万円
-
茨木市島2丁目
-
阪急電鉄京都線南茨木
-
-
-

-
- 新築一戸建て
- 4,480万円
-
茨木市島2丁目
-
阪急電鉄京都線南茨木
-
-
-

-
- 新築一戸建て
- 3,480万円
-
高槻市津之江町2丁目
-
JR東海道線摂津富田
-
-
-

-
- 新築一戸建て
- 3,180万円
-
東大阪市花園東町2丁目
-
近鉄難波・奈良線東花園
-
-
-

-
- 新築一戸建て
- 3,480万円
-
大阪市東住吉区住道矢田4丁目
-
近鉄南大阪線矢田
-
















担当エージェント:福田 亜翔
【複数件併せてのご案内可能です】気になるあのマンション、エリア内・沿線近くの物件などお客様のご要望に沿った物件を一度にご紹介いたします♪