クレイドルガーデン川越町高松第7 全3棟 1号棟 新築戸建て
NEW 01.16掲載情報更新日:2026年01月20日 次回更新予定日:2026年02月03日
- 2,290万円
-
- 借入ご希望金額
万円 - 借入期間
年 - 借入金利
% - 月々のお支払い金額
円
- 借入ご希望金額
※ 月々のお支払例は目安の試算となりますので、実際の金額とは異なる場合がございます。詳しくは店舗までお問合わせください。
- 三重郡川越町大字高松
-
近鉄名古屋線『川越富洲原』 徒歩23分 (約1840m)
JR関西本線『朝日』 徒歩40分 (約3200m)
近鉄名古屋線『伊勢朝日』 徒歩42分 (約3360m)
川越ふれあいバス『「高松祭場前」停』 徒歩4分 (約320m)
クレイドルガーデン川越町高松第7 全3棟 1号棟 新築戸建て一戸建て | 物件情報
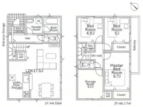
【小学校まで徒歩約13分◎】広さを居場所に変える、18帖LDKと続き和室のある4LDKの住まい
\あれこれ不動産サイトを見なくても当店で解決/
当店は桑名市・木曽岬町・川越町・朝日町の
流通物件の大半を最・新・情・報で掲載!
ほかのページで気になる物件もご相談ください。
◆川越南小学校/川越中学校
◆川越ふれあいバス「高松祭場前」停徒歩約4分
◆スーパーまで車で約4分
◆防犯カメラ付き
◆リビングイン階段
※写真をクリックすると、詳細をご覧いただけます。
=========================
《失敗しない住宅ローン選び!》
豊富な銀行金利情報を持っていますので、
お客様の安心ゆとりのある資金計画をご提案できます。
=========================
物件の設備
- 都市ガス
- 浄水器
- コンロ三口
- カウンターキッチン
- システムキッチン
- 浴室暖房
- 浴室乾燥機
- 浴室に窓
- トイレ2箇所
- 温水洗浄便座
- 室内洗濯機置場
- 洗髪洗面化粧台
- リビング階段
- 人感照明センサー
- ディンプルキー
- モニタ付インターホン
- 防犯カメラ
- 火災警報器/報知機
- LDK18畳以上
- 全室2面採光
- 複層ガラス
- 24時間換気システム
- クローゼット3箇所
- ウォークインクローゼット
- 床下収納
- ルーフバルコニー
物件の特徴
- 2沿線利用可
- 2階建
- 整形地
- 外壁サイディング
- 建設住宅性能評価付
- 設計住宅性能評価付
物件詳細情報
| 価格 | 2,290万円 | 間取り | 3LDK |
|---|---|---|---|
| 物件種別 | 新築一戸建て | ||
| 所在地 | 三重県三重郡川越町大字高松 1号棟 | ||
| アクセス |
|
||
| 建物面積 | 98.82㎡ | 駐車場 | あり 普通:2台 |
| 築年月 | 2026年(令和8年)03月予定 | 建築確認 | 第HPA-25-13375-1号 |
| 建物構造 | 木造 2階建 | 工法 | |
| 主要採光 | バルコニー | 6.48㎡ | |
| 保証・評価 | 設計住宅性能評価書・建設住宅性能評価書(新築時) |
||
| 分譲情報 | |||
| 土地面積 | 実163.34㎡(49.41坪) | 接道 | 南東側(公道)幅 約4.0m 間口 約6.26m |
| 私道 | セットバック | ||
| 地目 | 宅地 | 地勢 | 平坦 |
| 権利 | 所有権 |
||
| 都市計画 | 市街化区域 |
用途地域 | 1種住居 |
| 建ぺい/容積率 | 60% / 160% | 土地国土法 | |
| 許可番号 | 建築基準法 | ||
| 法令制限 | 宅地造成工事規制区域・法22条区域・容積率:前面道路幅員制限 | ||
| 小学区 | 川越南小学校 徒歩13分 (約1000m) | 中学区 | 川越中学校 徒歩18分 (約1400m) |
| 現況 | 建築中 | 引渡 | 期日指定:2026年03月下旬以降 |
| その他費用 | |||
| 周辺環境 | 川越南小学校 徒歩13分 (約1000m) 川越中学校 徒歩17分 (約1330m) 川越町立中部保育所 徒歩17分 (約1320m) 川越幼稚園 徒歩19分 (約1490m) マックスバリュサンリバー店 徒歩14分 (約1100m) クスリのアオキ 天カ須賀店 徒歩7分 (約490m) うえのクリニック 徒歩7分 (約500m) 高松公園 徒歩4分 (約310m) 川越郵便局 徒歩13分 (約980m) ミニストップ四日市天カ須賀店 徒歩6分 (約480m) |
||
| 備考 | |||
| 物件番号 | 4555955 | 取引態様 | 媒介 |
取扱店舗情報
ハウスドゥ 桑名中央通 ファミリアホームサービス株式会社 店舗詳細ページへ
| 電話番号 | 0594-88-5031 |
|---|---|
| 所在地 | 〒511-0065 三重県桑名市大央町21-9 明季ビル1階 |
| 営業時間 | 10:00~18:00 |
| 定休日 | 水曜日・年末年始(水曜日が祝日の場合は営業) |
| 宅建免許番号 | 国土交通大臣(2)第9218号 |
| アクセス | 店舗への地図はこちら |

来店ご予約
三重県三重郡川越町で価格が似ている物件はこちら
- 三重県
マイページ物件数 - 3,173件
最近見た物件
-
-

-
- 土地
- 1,180万円
-
豊中市庄内東町3丁目
-
阪急電鉄宝塚線庄内
-
-
-

-
- 新築一戸建て
- 2,378万円
-
高松市御厩町
-
JR予讃線端岡
-
-
-

-
- 土地
- 250万円
-
石巻市駅前北通り1丁目
-
JR仙石線石巻
-
三重県新築一戸建て新着物件
-
-

-
- 新築一戸建て
- 3,280万円
-
三重郡菰野町大字菰野
-
近鉄湯の山線中菰野駅
-
-
-

-
- 新築一戸建て
- 2,980万円
-
三重郡菰野町大字菰野
-
近鉄湯の山線中菰野駅
-
-
-

-
- 新築一戸建て
- 2,780万円
-
四日市市三重6丁目
-
近鉄湯の山線伊勢松本駅
-
-
-

-
- 新築一戸建て
- 2,380万円
-
鈴鹿市池田町
-
近鉄名古屋線楠駅
-
-
-

-
- 新築一戸建て
- 2,280万円
-
鈴鹿市池田町
-
近鉄名古屋線楠駅
-
-
-

-
- 新築一戸建て
- 2,890万円
-
鈴鹿市住吉1丁目
-
近鉄鈴鹿線平田町駅
-
-
-

-
- 新築一戸建て
- 2,790万円
-
鈴鹿市住吉1丁目
-
近鉄鈴鹿線平田町駅
-
- お近くの店舗を探す
-
おすすめ物件
-
-

-
- 新築一戸建て
- 2,830万円
-
四日市市大矢知町
-
三岐鉄道三岐線大矢知
-
-
-

-
- 新築一戸建て
- 2,690万円
-
四日市市曙1丁目
-
近鉄名古屋線新正
-
-
-

-
- 新築一戸建て
- 2,800万円
-
松阪市大津町
-
近鉄山田鳥羽志摩線東松阪
-
-
-

-
- 新築一戸建て
- 1,980万円
-
鈴鹿市自由ヶ丘1丁目
-
JR関西本線河曲
-
-
-

-
- 新築一戸建て
- 2,590万円
-
松阪市垣鼻町
-
近鉄山田鳥羽志摩線東松阪
-
-
-

-
- 新築一戸建て
- 2,890万円
-
鈴鹿市住吉1丁目
-
近鉄鈴鹿線平田町
-
-
-

-
- 新築一戸建て
- 2,900万円
-
多気郡多気町相可台
-
JR紀勢本線相可
-
-
-

-
- 新築一戸建て
- 2,130万円
-
鈴鹿市長太新町1丁目
-
近鉄名古屋線長太ノ浦
-
-
-

-
- 新築一戸建て
- 3,190万円
-
四日市市蒔田2丁目
-
近鉄名古屋線川越富洲原
-
-
-

-
- 新築一戸建て
- 3,290万円
-
四日市市八千代台1丁目
-
三岐鉄道三岐線山城
-








担当エージェント:稲垣 明音
《実際に現地を体感してみませんか?》
気になる点はお気軽にお問い合わせください!
お客様の理想のお住まいを一緒に見つけましょう!