松山市久米窪田町の新築戸建
NEW 01.20掲載情報更新日:2026年01月20日 次回更新予定日:2026年02月03日
- 3,078万円
-
- 借入ご希望金額
万円 - 借入期間
年 - 借入金利
% - 月々のお支払い金額
円
- 借入ご希望金額
※ 月々のお支払例は目安の試算となりますので、実際の金額とは異なる場合がございます。詳しくは店舗までお問合わせください。
- 松山市久米窪田町
-
伊予鉄道横河原線『鷹ノ子』 徒歩16分 (約1210m)
伊予鉄道横河原線『久米』 徒歩16分 (約1220m)
松山市久米窪田町一戸建て | 物件情報
物件の設備
- 電気
- オール電化
- 上水道
- 下水道
- 浄水器
- 食器洗浄乾燥機
- IHクッキングヒータ
- コンロ二口
- システムキッチン
- バス1坪以上
- 浴室暖房
- 浴室乾燥機
- トイレ2箇所
- 温水洗浄便座
- 室内洗濯機置場
- 洗髪洗面化粧台
- ダウンライト
- EV車充電設備
- ダブルロックキー
- モニタ付インターホン
- 火災警報器/報知機
- LDK15畳以上
- 複層ガラス
- 24時間換気システム
- クローゼット
- ウォークインクローゼット
- 床下収納
- 全居室収納
- バルコニー
物件の特徴
- 耐震構造
- 南側道路面す
- 2階建
- 平坦地
物件詳細情報
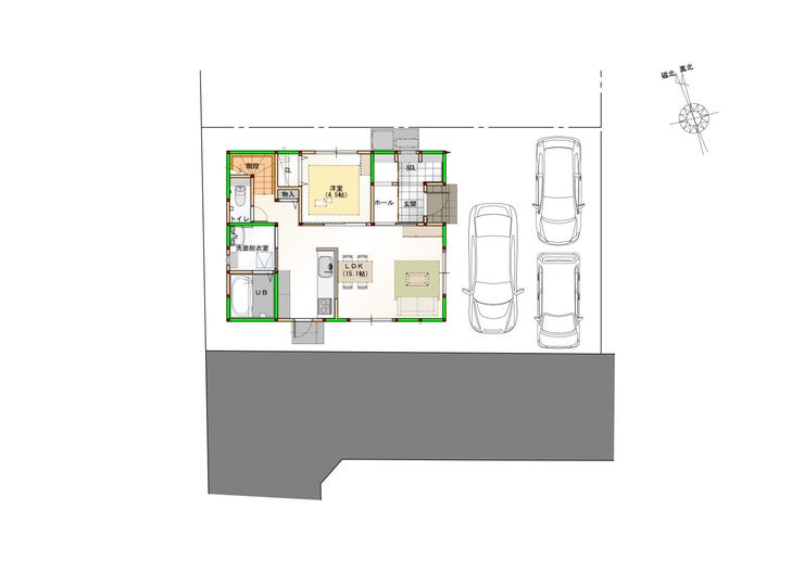
| 価格 | 3,078万円 | 間取り | 4LDK |
|---|---|---|---|
| 物件種別 | 新築一戸建て | ||
| 所在地 | 愛媛県松山市久米窪田町 | ||
| アクセス |
|
||
| 建物面積 | 103.02㎡ | 駐車場 | あり 普通:3台 |
| 築年月 | 2026年(令和8年)02月予定 | 建築確認 | 第2025建確-1487号 |
| 建物構造 | 木造 2階建 | 工法 | |
| 主要採光 | 南向 | バルコニー | |
| 保証・評価 | |||
| 土地面積 | 公128.83㎡(38.97坪) | 接道 | 南側(私道)幅 約4.0m 間口 約14.90m(位置指定) |
| 私道 | セットバック | ||
| 地目 | 宅地 | 地勢 | 平坦 |
| 権利 | 所有権 |
||
| 都市計画 | 市街化区域 |
用途地域 | 1種低層 |
| 建ぺい/容積率 | 50% / 80% | 土地国土法 | |
| 許可番号 | 建築基準法 | ||
| 法令制限 | |||
| 小学区 | 窪田小学校 徒歩16分 (約1250m) | 中学区 | 久米中学校 徒歩14分 (約1080m) |
| 現況 | 建築中 | 引渡 | 期日指定:2026年03月上旬 |
| その他費用 | |||
| 周辺環境 | コープえひめ久米店 徒歩7分 (約540m) ローソン 松山来住町店 徒歩7分 (約500m) ファミリーマート松山久米窪田店 徒歩13分 (約990m) 松山久米郵便局 徒歩10分 (約770m) たかのこの湯 徒歩13分 (約1020m) |
||
| 備考 | 安心・安全・快適に暮らせるお家♪ 〈構造・仕様〉 オール電化・耐震等級3相当・ZEH仕様・断熱性能5等級以上・一次エネルギー消費量6等級以上 〈保証制度〉 長期住宅保証・長期白蟻保証・アフターメンテナンス・シックハウス対策 |
||
| 物件番号 | 4561213 | 取引態様 | 媒介 |
取扱店舗情報
ハウスドゥ 松山駅前 株式会社ニシヒラ住宅 店舗詳細ページへ
| 電話番号 | 089-926-8281 |
|---|---|
| 所在地 | 〒790-0064 愛媛県松山市愛光町1-24 OVEST松山 |
| 営業時間 | 10:00 ~18:30 |
| 定休日 | 日曜日 |
| 宅建免許番号 | 愛媛県知事(2)第5475号 |
| アクセス | 店舗への地図はこちら |

来店ご予約
愛媛県松山市で価格が似ている物件はこちら
![]()
![]()
-
- 新築一戸建て 2025.01.08
-
-
- 3,100万円
-
松山市東長戸4丁目
-
伊予鉄バス東長戸バス停まで徒歩7分
- 3LDK
-
-
- 新築一戸建て 2025.05.18
-
-
- 3,090万円
-
松山市南斎院町
-
伊予鉄道郡中線「土居田駅」まで車8分
- 3LDK+S
-
-
- 新築一戸建て 2025.05.20
-
-
- 3,090万円
-
松山市南斎院町
-
伊予鉄バス松山斎院営業所まで徒歩4分
- 4LDK+S
-
-
- 新築一戸建て 2025.07.04
-
-
- 2,990万円
-
松山市東長戸2丁目
-
伊予鉄道高浜線「衣山駅」まで車7分
- 4LDK
-
-
- 新築一戸建て 2025.08.11
-
-
- 2,990万円
-
松山市東長戸2丁目
-
伊予鉄バス東長戸まで徒歩10分
- 4LDK
-
-
- 新築一戸建て 2025.08.23
-
-
- 2,978万円
-
松山市星岡3丁目
-
伊予鉄道横河原線「福音寺駅」まで車4分
- 4LDK
-
-
- 新築一戸建て 2025.08.26
-
-
- 2,994.50万円
-
松山市堀江町
-
花見橋 バス停まで徒歩6分
- 3LDK+S
-
-
- 新築一戸建て 2025.09.01
-
-
- 2,978万円
-
松山市星岡3丁目
-
伊予鉄道横河原線「福音寺駅」まで徒歩14分
- 4LDK
-
-
- 新築一戸建て 2025.09.02
-
-
- 2,999万円
-
松山市西石井2丁目
-
伊予鉄バス天山橋まで徒歩7分
- 3LDK
-
-
- 新築一戸建て 2025.09.02
-
-
- 2,999万円
-
松山市西石井2丁目
-
伊予鉄道横河原線「いよ立花駅」まで車5分
- 3LDK
-
-
- 新築一戸建て 2025.09.02
-
-
- 2,990万円
-
松山市水泥町
-
伊予鉄道横河原線「平井駅」まで徒歩6分
- 4LDK
-
-
- 新築一戸建て 2025.09.04
-
-
- 2,990万円
-
松山市水泥町
-
伊予鉄道横河原線「平井駅」まで徒歩6分
- 4LDK+S
-
-
- 新築一戸建て 2025.09.05
-
-
- 2,999万円
-
松山市西石井2丁目
-
伊予鉄道横河原線「いよ立花駅」まで徒歩19分
- 3LDK
-
-
- 新築一戸建て 2025.10.31
-
-
- 3,090万円
-
松山市市坪北2丁目
-
JR予讃線「市坪駅」まで徒歩6分
- 4LDK
-
-
- 新築一戸建て 2025.10.31
-
-
- 3,090万円
-
松山市市坪北2丁目
-
JR予讃線「市坪駅」まで徒歩6分
- 4LDK
-
-
- 新築一戸建て 2025.11.01
-
-
- 2,999万円
-
松山市西石井2丁目
-
伊予鉄道横河原線「いよ立花駅」まで徒歩19分
- 3LDK
-
-
- 新築一戸建て 2025.11.03
-
-
- 3,078万円
-
松山市久米窪田町
-
伊予鉄道横河原線「鷹ノ子駅」まで車4分
- 4LDK
-
-
- 新築一戸建て 2025.11.07
-
-
- 3,078万円
-
松山市久米窪田町
-
伊予鉄道横河原線「鷹ノ子駅」まで徒歩15分
- 4LDK
-
-
- 新築一戸建て 2025.11.08
-
-
- 2,980万円
-
松山市空港通3丁目
-
伊予鉄道郡中線「土居田駅」まで徒歩13分
- 4LDK
-
-
- 新築一戸建て 2025.11.16
-
-
- 3,090万円
-
松山市市坪北2丁目
-
JR予讃線「市坪駅」まで徒歩5分
- 4LDK
-
-
- 新築一戸建て 2025.11.16
-
-
- 3,090万円
-
松山市市坪北2丁目
-
JR予讃線「市坪駅」まで徒歩5分
- 4LDK
-
-
- 新築一戸建て 2025.12.05
-
-
- 3,150万円
-
松山市来住町
-
伊予鉄道横河原線「鷹ノ子駅」まで車6分
- 4LDK
-
-
- 新築一戸建て 2025.12.05
-
-
- 3,090万円
-
松山市市坪北2丁目
-
JR予讃線「市坪駅」まで徒歩5分
- 4LDK
-
-
- 新築一戸建て 2025.12.05
-
-
- 3,090万円
-
松山市市坪北2丁目
-
JR予讃線「市坪駅」まで徒歩5分
- 4LDK
-
-
- 新築一戸建て 2025.12.05
-
-
- 3,150万円
-
松山市来住町
-
伊予鉄道横河原線「久米駅」まで徒歩15分
- 4LDK+S
-
-
- 新築一戸建て 2025.12.05
-
-
- 3,150万円
-
松山市来住町
-
伊予鉄バス北窪田まで徒歩6分
- 4LDK+S
-
-
- 新築一戸建て 2025.12.11
-
-
- 2,990万円
-
松山市水泥町
-
伊予鉄道横河原線「平井駅」まで徒歩5分
- 4LDK+S
-
-
- 新築一戸建て 2025.12.12
-
-
- 2,990万円
-
松山市北斎院町
-
伊予鉄道高浜線「西衣山駅」まで車7分
- 4LDK
-
-
- 新築一戸建て 2025.12.12
-
-
- 2,990万円
-
松山市北斎院町
-
伊予鉄バス津田団地前まで徒歩4分
- 4LDK+S
-
-
- 新築一戸建て 2025.12.20
-
-
- 2,978万円
-
松山市東野5丁目
-
伊予鉄道城南線「道後公園駅」まで車6分
- 4LDK
-
-
- 新築一戸建て 2025.12.22
-
-
- 2,990万円
-
松山市保免上2丁目
-
JR予讃線「市坪駅」まで車4分
- 4LDK
-
-
- 新築一戸建て 2025.12.22
-
-
- 2,990万円
-
松山市保免上2丁目
-
JR予讃線「市坪駅」まで車4分
- 4LDK
-
-
-
新築一戸建て
2025.12.25
-
-
- 2,998万円
-
松山市清住2丁目
-
伊予鉄道高浜線「山西駅」まで車5分
- 4LDK
-
-
新築一戸建て
2025.12.25
-
-
新築一戸建て
2025.12.25
-
-
- 2,998万円
-
松山市清住2丁目
-
伊予鉄道高浜線「山西駅」まで徒歩15分
- 4LDK
-
-
新築一戸建て
2025.12.25
-
-
新築一戸建て
2025.12.25
-
-
- 2,978万円
-
松山市東野5丁目
-
伊予鉄道城南線「道後温泉駅」まで徒歩29分
- 4LDK
-
-
新築一戸建て
2025.12.25
-
-
新築一戸建て
2025.12.25
-
-
- 2,998万円
-
松山市清住2丁目
-
伊予鉄道高浜線「山西駅」まで徒歩15分
- 4LDK
-
-
新築一戸建て
2025.12.25
-
-
新築一戸建て
2025.12.25
-
-
- 3,099万円
-
松山市高岡町
-
伊予鉄バス生石小学校前まで徒歩1分
- 4LDK
-
-
新築一戸建て
2025.12.25
-
-
新築一戸建て
2025.12.26
-
-
- 2,990万円
-
松山市保免上2丁目
-
保免まで徒歩11分
- 4LDK
-
-
新築一戸建て
2025.12.26
-
-
新築一戸建て
2025.12.26
-
-
- 2,990万円
-
松山市保免上2丁目
-
保免まで徒歩11分
- 4LDK
-
-
新築一戸建て
2025.12.26
-
-
新築一戸建て
2026.01.07
-
-
- 2,990万円
-
松山市北斎院町
-
伊予鉄バス津田団地前まで徒歩4分
- 4LDK+S
-
-
新築一戸建て
2026.01.07
-
-
新築一戸建て
2026.01.11
-
-
- 3,098万円
-
松山市余戸中3丁目
-
伊予鉄道郡中線「鎌田駅」まで徒歩12分
- 4LDK
-
-
新築一戸建て
2026.01.11
-
-
新築一戸建て
2026.01.11
-
-
- 3,098万円
-
松山市余戸中3丁目
-
伊予鉄道郡中線「鎌田駅」まで徒歩12分
- 4LDK
-
-
新築一戸建て
2026.01.11
-
-
新築一戸建て
2026.01.11
-
-
- 3,098万円
-
松山市余戸中3丁目
-
伊予鉄道郡中線「鎌田駅」まで徒歩7分
- 4LDK
-
-
新築一戸建て
2026.01.11
-
-
新築一戸建て
2026.01.11
-
-
- 3,098万円
-
松山市余戸中3丁目
-
伊予鉄道郡中線「鎌田駅」まで車2分
- 4LDK
-
-
新築一戸建て
2026.01.11
-
-
新築一戸建て
2026.01.12
-
-
- 3,080万円
-
松山市立花2丁目
-
伊予鉄道横河原線「いよ立花駅」まで徒歩4分
- 4LDK+S
-
-
新築一戸建て
2026.01.12
-
-
新築一戸建て
2026.01.13
-
-
- 3,099万円
-
松山市高岡町
-
伊予鉄道郡中線「鎌田駅」まで車9分
- 4LDK
-
-
新築一戸建て
2026.01.13
-
-
新築一戸建て
2026.01.15
-
-
- 3,098万円
-
松山市余戸中3丁目
-
伊予鉄道郡中線「鎌田駅」まで徒歩12分
- 4LDK
-
-
新築一戸建て
2026.01.15
-
-
新築一戸建て
2026.01.15
-
-
- 3,080万円
-
松山市立花2丁目
-
伊予鉄道横河原線「いよ立花駅」まで徒歩4分
- 4LDK+S
-
-
新築一戸建て
2026.01.15
-
-
新築一戸建て
2026.01.16
-
-
- 3,098万円
-
松山市鴨川3丁目
-
伊予鉄道高浜線「衣山駅」まで車10分
- 4LDK
-
-
新築一戸建て
2026.01.16














