射水市二口の新築戸建
NEW 01.22掲載情報更新日:2026年01月22日 次回更新予定日:2026年02月05日
- 3,512万円
-
- 借入ご希望金額
万円 - 借入期間
年 - 借入金利
% - 月々のお支払い金額
円
- 借入ご希望金額
※ 月々のお支払例は目安の試算となりますので、実際の金額とは異なる場合がございます。詳しくは店舗までお問合わせください。
- 射水市二口
-
あいの風とやま鉄道『越中大門』 徒歩21分 (約1680m)
『大門地区センター前』 徒歩4分 (約320m)
射水市二口一戸建て | 物件情報
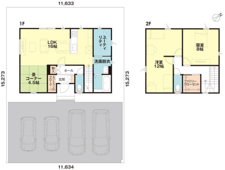
【家族の成長や変化に対応可能な3LDK】駐車4台可、前面道路融雪装置付
・前面道路幅員9m。すれ違いも怖くありません。
・LDK~畳コーナーまで20.5帖!
・風通りの良いユーティリティルームがキッチン近くにあるので、家事がラクチン。
・大容量のファミリークローゼット有り♪
・断熱等級6 ZEH水準の省エネ住宅 耐震等級3で安心。
物件の設備
- 電気
- オール電化
- 上水道
- 下水道
- 側溝
- 食器洗浄乾燥機
- IHクッキングヒータ
- コンロ三口
- カウンターキッチン
- システムキッチン
- オープンキッチン
- オートバス
- バス1坪以上
- 追焚機能
- 浴室暖房
- 浴室乾燥機
- トイレ2箇所
- 温水洗浄便座
- 洗髪洗面化粧台
- 室内物干機
- エアコン2基
- 照明器具
- ダウンライト
- 人感照明センサー
- 省エネ給湯器
- EV車充電設備
- カードキー
- モニタ付インターホン
- 火災警報器/報知機
- LDK15畳以上
- 2面採光
- 複層ガラス
- 24時間換気システム
- ウォークインクローゼット
- シューズインクローク
物件の特徴
- 高気密高断熱住宅
- ノンホルムアルデヒド
- 制震構造
- 前道6m以上
- 融雪装置
- 閑静な住宅街
- 2階建
- 整形地
- 外壁サイディング
物件詳細情報
| 価格 | 3,512万円 | 間取り | 3LDK+S |
|---|---|---|---|
| 物件種別 | 新築一戸建て | ||
| 所在地 | 富山県射水市二口1090-30 B棟 | ||
| アクセス |
|
||
| 建物面積 | 102.45㎡ | 駐車場 | あり 普通:4台 |
| 築年月 | 2025年(令和7年)06月築 | 建築確認 | |
| 建物構造 | 木造 2階建 | 工法 | |
| 主要採光 | 西向 | バルコニー | |
| 保証・評価 | |||
| 土地面積 | 公177.67㎡(53.74坪) | 接道 | 南東側(公道)幅 約9.0m 間口 約11.60m |
| 私道 | セットバック | ||
| 地目 | 宅地 | 地勢 | |
| 権利 | 所有権 |
||
| 都市計画 | 市街化区域 |
用途地域 | 1種中高 |
| 建ぺい/容積率 | 60% / 200% | 土地国土法 | |
| 許可番号 | 建築基準法 | ||
| 法令制限 | |||
| 小学区 | 大門小学校 徒歩9分 (約650m) | 中学区 | 大門中学校 徒歩16分 (約1280m) |
| 現況 | 完工済 | 引渡 | 相談 |
| その他費用 | |||
| 周辺環境 | サンコー 大門店 徒歩15分 (約1140m) クスリのアオキ 新大門店 徒歩15分 (約1170m) Yショップ 大門店 徒歩3分 (約210m) 大門わかば幼稚園 徒歩9分 (約680m) 大門小学校 徒歩7分 (約550m) 大門中学校 徒歩14分 (約1110m) |
||
| 備考 | ☆当社はお客様の住まい探しを全力でお手伝いいたします!☆ 元銀行員のスタッフがローンのご相談も承っております(^^)/ ぜひお気軽にご連絡ください!!ローンやリフォームのご相談も受け付けております! |
||
| 物件番号 | 4562685 | 取引態様 | 媒介 |
取扱店舗情報
ハウスドゥ 富山駅北 セブン不動産株式会社 店舗詳細ページへ
| 電話番号 | 076-464-6351 |
|---|---|
| 所在地 | 〒930-0853 富山県富山市永楽町27-16 |
| 営業時間 | 9:30~17:30 |
| 定休日 | 水曜日、祝日、年末年始 |
| 宅建免許番号 | 富山県知事(1)第3250号 |
| アクセス | 店舗への地図はこちら |

来店ご予約
富山県射水市で価格が似ている物件はこちら
- 富山県
マイページ物件数 - 770件
最近見た物件
-
-

-
- 土地
- 1,480万円
-
流山市大字南
-
東武野田線初石
-
-
-

-
- 土地
- 1,298万円
-
久留米市津福本町
-
西鉄天神大牟田線安武
-
-
-

-
- 中古一戸建て
- 2,400万円
-
高槻市津之江町2丁目
-
JR東海道線高槻
-
富山県新築一戸建て新着物件
- お近くの店舗を探す
-
おすすめ物件
-
-

-
- 新築一戸建て
- 2,590万円
-
富山市藤木
-
富山地鉄本線越中荏原
-
-
-

-
- 新築一戸建て
- 3,368万円
-
高岡市角三島
-
JR氷見線能町
-
-
-

-
- 新築一戸建て
- 3,250万円
-
高岡市赤祖父
-
JR城端線新高岡
-
-
-

-
- 新築一戸建て
- 2,298万円
-
富山市本郷町
-
富山地鉄不二越上滝線上堀
-
-
-

-
- 新築一戸建て
- 2,380万円
-
中新川郡立山町前沢新町
-
富山地鉄立山線五百石
-
-
-

-
- 新築一戸建て
- 2,980万円
-
富山市本郷町
-
富山地鉄不二越上滝線上堀
-
-
-

-
- 新築一戸建て
- 2,380万円
-
高岡市中川園町
-
JR氷見線越中中川
-
-
-

-
- 新築一戸建て
- 2,580万円
-
富山市中市2丁目
-
富山地鉄不二越上滝線大泉
-
-
-

-
- 新築一戸建て
- 2,880万円
-
高岡市戸出町1丁目
-
JR城端線戸出
-
-
-

-
- 新築一戸建て
- 3,170万円
-
富山市新庄町
-
富山地鉄本線東新庄
-




























