新築戸建 高松市新田町 2990
掲載情報更新日:2026年05月03日 次回更新予定日:2026年05月17日
- 2,990万円
-
- 借入ご希望金額
万円 - 借入期間
年 - 借入金利
% - 月々のお支払い金額
円
- 借入ご希望金額
※ 月々のお支払例は目安の試算となりますので、実際の金額とは異なる場合がございます。詳しくは店舗までお問合わせください。
- 高松市新田町甲
-
JR高徳線『屋島』 徒歩18分 (約1440m)
高松琴平電鉄志度線『古高松』 徒歩28分 (約2240m)
新築戸建 高松市新田町 2990一戸建て | 物件情報
物件の設備
- 電気
- オール電化
- 浄化槽
- 食器乾燥機
- 食器洗浄乾燥機
- コンロ二口
- グリル
- カウンターキッチン
- システムキッチン
- バス1坪以上
- 浴室暖房
- 浴室乾燥機
- トイレ2箇所
- 温水洗浄便座
- 室内物干機
- エアコン
- 照明器具
- 間接照明
- ダウンライト
- カードキー
- ディンプルキー
- モニタ付インターホン
- 火災警報器/報知機
- 2面採光
- 複層ガラス
- 全室フローリング
- クッションフロア
- 24時間換気システム
- クローゼット
- ウォークインクローゼット
- 床下収納
- 全居室収納
- シューズインクローク
物件の特徴
- 南向
- 24工法
- 閑静な住宅街
- 2階建
- 即入居可
物件詳細情報
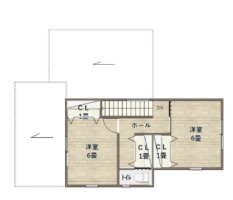
| 価格 | 2,990万円 | 間取り | 3LDK |
|---|---|---|---|
| 物件種別 | 新築一戸建て | ||
| 所在地 | 香川県高松市新田町甲 | ||
| アクセス |
|
||
| 建物面積 | 公98.12㎡ | 駐車場 | あり 普通:2台 |
| 築年月 | 2025年(令和7年)01月築 | 建築確認 | 第確R06-0880号 |
| 建物構造 | 木造 2階建 | 工法 | 2×4工法 |
| 主要採光 | 南向 | バルコニー | |
| 保証・評価 | |||
| 土地面積 | 公168.13㎡(50.85坪) | 接道 | 北側(私道)幅 約5.0m 間口 約14.20m |
| 私道 | セットバック | 無 | |
| 地目 | 宅地 | 地勢 | |
| 権利 | 所有権 |
||
| 都市計画 | 非線引区域 |
用途地域 | |
| 建ぺい/容積率 | 60% / 100% | 土地国土法 | |
| 許可番号 | 建築基準法 | ||
| 法令制限 | |||
| 小学区 | 古高松南小学校 徒歩13分 (約1000m) | 中学区 | 古高松中学校 徒歩14分 (約1100m) |
| 現況 | 完工済 | 引渡 | 即 |
| その他費用 | |||
| 備考 | |||
| 物件番号 | 4565866 | 取引態様 | 媒介 |
取扱店舗情報
ハウスドゥ 高松仏生山 株式会社白峯不動産 店舗詳細ページへ
| 電話番号 | 087-816-4084 |
|---|---|
| 所在地 | 〒761-8078 香川県高松市仏生山町甲394-1 |
| 営業時間 | 9:00~18:00 |
| 定休日 | 水曜日 |
| 宅建免許番号 | 香川県知事(1)第4705号 |
| アクセス | 店舗への地図はこちら |

来店ご予約
香川県高松市で価格が似ている物件はこちら
- 香川県
マイページ物件数 - 682件
最近見た物件
香川県新築一戸建て新着物件
- お近くの店舗を探す
-
おすすめ物件
-
-

-
- 新築一戸建て
- 3,090万円
-
高松市上林町
-
高松琴平電鉄琴平線太田
-
-
-

-
- 新築一戸建て
- 2,098万円
-
高松市林町
-
高松琴平電鉄長尾線木太東口
-
-
-

-
- 新築一戸建て
- 2,498万円
-
高松市伏石町
-
高松琴平電鉄琴平線三条
-
-
-

-
- 新築一戸建て
- 3,050万円
-
丸亀市郡家町
-
JR土讃線金蔵寺
-
-
-

-
- 新築一戸建て
- 2,098万円
-
高松市新田町
-
JR高徳線屋島
-
-
-

-
- 新築一戸建て
- 3,198万円
-
高松市三条町
-
高松琴平電鉄琴平線三条
-
-
-

-
- 新築一戸建て
- 2,298万円
-
高松市香西南町
-
JR予讃線香西
-
-
-

-
- 新築一戸建て
- 2,180万円
-
高松市高松町
-
JR高徳線屋島
-
-
-

-
- 新築一戸建て
- 2,480万円
-
高松市太田上町
-
高松琴平電鉄琴平線太田
-
-
-

-
- 新築一戸建て
- 3,478万円
-
高松市新田町
-
JR高徳線屋島
-










































