新築戸建 流山市松ケ丘6丁目
掲載情報更新日:2026年05月09日 次回更新予定日:2026年05月23日
- 4,580万円
-
- 借入ご希望金額
万円 - 借入期間
年 - 借入金利
% - 月々のお支払い金額
円
- 借入ご希望金額
※ 月々のお支払例は目安の試算となりますので、実際の金額とは異なる場合がございます。詳しくは店舗までお問合わせください。
- 流山市松ケ丘6丁目
-
JR千代田・常磐緩行線『南柏』 徒歩20分 (約1600m)
JR千代田・常磐緩行線『南柏』 バス乗車18分 流山ぐりーんバス 松ケ丘6丁目 停 徒歩4分 (約320m)
東武野田線『豊四季』 バス乗車14分 流山ぐりーんバス 松ケ丘6丁目 停 徒歩4分 (約320m)
新築戸建 流山市松ケ丘6丁目一戸建て | 物件情報
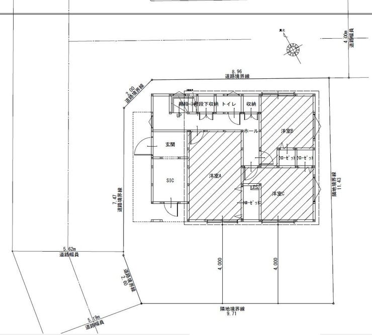
南柏駅からは少し遠いですがバス便あり♪玄関前の手洗いコーナー、廊下収納、水回りを集中させた間取りが◎
■南柏駅前には商業施設があり、日用品、家電用品等々のお買い物に便利です!
■女性一級建築士デザイナーによる設計ならではの間取り!細部に細かな気遣いを感じることができます!
■使い勝手の良さを感じさせるSIC!靴だけではなく、車用品等々しまっても余裕の広さ!
■玄関前に手洗いコーナーがあると、帰宅時にすぐ手を洗うことが出来て◎
■LDK⇔洗面脱衣所⇔浴室間の動線が◎2階リビングにありがちな1階洗面所と2階バルコニーを行き来することなく、ワンフロアで洗濯と洗濯物干しを完結することができます!
◆私どもの使命は【お客様第一のお店づくりを】です。
無理な営業は致しません。お客様のご要望に真摯に耳を傾け、本質を理解し、お客様が本当に必要とされている情報をより迅速に、より豊富に、より的確にご提供できるよう、全力を尽くしています。
ハウスドゥに行けば、住宅に関するどんな些細なことでも相談にのってもらえる、ワクワクしながらお家を探せる、そんなお店づくりを心掛けています。
物件の設備
- 電気
- 公営水道
- 公共下水
- プロパンガス
- 集中プロパン
- システムキッチン
- 浴室に窓
- トイレ2箇所
- 温水洗浄便座
- 室内洗濯機置場
- モニタ付インターホン
- LDK15畳以上
- 2面採光
- クローゼット
- 全居室収納
- ワイドバルコニー
物件の特徴
- 閑静な住宅街
- 周辺交通量少なめ
- 陽当り良好
- 2階建
- 角地
- 平坦地
物件詳細情報
| 価格 | 4,580万円 | 間取り | 4LDK |
|---|---|---|---|
| 物件種別 | 新築一戸建て | ||
| 所在地 | 千葉県流山市松ケ丘6丁目 | ||
| アクセス |
|
||
| 建物面積 | 実102.68㎡ | 駐車場 | あり 普通:2台 |
| 築年月 | 2026年(令和8年)04月築 | 建築確認 | 第25UDI1S建04119号 |
| 建物構造 | 木造 2階建 | 工法 | |
| 主要採光 | バルコニー | ||
| 保証・評価 | |||
| 土地面積 | 実117.39㎡(35.51坪) | 接道 | 西側(公道)幅 約5.6m 間口 約12.07m 北側(公道)幅 約4.0m 間口 約8.96m |
| 私道 | セットバック | ||
| 地目 | 宅地 | 地勢 | |
| 権利 | 所有権 |
||
| 都市計画 | 市街化区域 |
用途地域 | 1種低層 |
| 建ぺい/容積率 | 60% / 150% | 土地国土法 | |
| 許可番号 | 建築基準法 | ||
| 法令制限 | 法22条区域・松ケ丘6丁目建築協定・景観計画区域 | ||
| 小学区 | 東小学校 徒歩23分 (約1840m) | 中学区 | 東部中学校 徒歩27分 (約2160m) |
| 現況 | 完工済 | 引渡 | 期日指定:2026年05月 |
| その他費用 | |||
| 周辺環境 | ローソン 柏豊四季店 徒歩2分 (約160m) 柏 しんとみ保育園 徒歩4分 (約320m) マツモトキヨシ 流山野々下店 徒歩9分 (約720m) ジャパンミート卸売市場 流山店 徒歩9分 (約720m) 柏陽幼稚園 徒歩13分 (約980m) 松ケ丘ふるさと公園(散策の森) 徒歩12分 (約920m) 柏豊上郵便局 徒歩15分 (約1160m) 赤沼外科内科医院 徒歩15分 (約1160m) 新富げんきなひろば 徒歩16分 (約1260m) ジェーソン 柏豊四季店 徒歩17分 (約1340m) |
||
| 備考 | ※駅までの距離及び周辺環境の距離に関してはシステム上の計測となっておりますので、実際に歩いてみた距離や乗車時間などとは異なる可能性がございます。 | ||
| 物件番号 | 4566153 | 取引態様 | 媒介 |
取扱店舗情報
| 電話番号 | 04-7157-6500 |
|---|---|
| 所在地 | 〒270-0164 千葉県流山市流山1丁目269番地 |
| 営業時間 | 9:00~18:00 |
| 定休日 | 火曜日、水曜日 |
| 宅建免許番号 | 千葉県知事(5)第14328号 |
| アクセス | 店舗への地図はこちら |

来店ご予約
千葉県流山市で価格が似ている物件はこちら
- 千葉県
マイページ物件数 - 2,081件
最近見た物件
-
-

-
- 収益
- 600万円
-
泉佐野市上之郷
-
JR阪和線長滝
-
-
-

-
- 中古一戸建て
- 1,880万円
-
八尾市老原1丁目
-
JR関西本線八尾
-
-
-

-
- 新築一戸建て
- 4,190万円
-
熊本市南区出仲間2丁目
-
JR豊肥本線南熊本
-
千葉県新築一戸建て新着物件
-
-

-
- 新築一戸建て
- 3,688万円
-
柏市南高柳
-
東武野田線高柳駅
-
-
-

-
- 新築一戸建て
- 3,288万円
-
柏市南高柳
-
東武野田線高柳駅
-
-
-

-
- 新築一戸建て
- 3,488万円
-
柏市南高柳
-
東武野田線高柳駅
-
-
-

-
- 新築一戸建て
- 4,498万円
-
八千代市勝田台3丁目
-
東葉高速鉄道東葉勝田台駅
-
-
-

-
- 新築一戸建て
- 2,990万円
-
千葉市花見川区犢橋町
-
JR総武・中央緩行線新検見川駅
-
-
-

-
- 新築一戸建て
- 3,090万円
-
木更津市祇園2丁目
-
JR久留里線祇園駅
-
-
-

-
- 新築一戸建て
- 3,090万円
-
木更津市祇園2丁目
-
JR久留里線祇園駅
-
- お近くの店舗を探す
-
おすすめ物件
-
-

-
- 新築一戸建て
- 4,098万円
-
習志野市東習志野6丁目
-
京成本線実籾
-
-
-

-
- 新築一戸建て
- 3,590万円
-
習志野市東習志野6丁目
-
京成本線実籾
-
-
-

-
- 新築一戸建て
- 5,380万円
-
松戸市新松戸南2丁目
-
JR千代田・常磐緩行線馬橋
-
-
-

-
- 新築一戸建て
- 3,580万円
-
成田市寺台
-
JR成田線成田
-
-
-

-
- 新築一戸建て
- 4,480万円
-
船橋市二宮2丁目
-
京成電鉄松戸線薬園台
-
-
-

-
- 新築一戸建て
- 6,280万円
-
流山市大字鰭ケ崎
-
つくばエクスプレス南流山
-
-
-

-
- 新築一戸建て
- 5,198万円
-
習志野市袖ケ浦4丁目
-
JR総武・中央緩行線幕張本郷
-
-
-

-
- 新築一戸建て
- 4,098万円
-
習志野市東習志野6丁目
-
京成本線実籾
-
-
-

-
- 新築一戸建て
- 3,290万円
-
習志野市東習志野6丁目
-
京成本線実籾
-
-
-

-
- 新築一戸建て
- 5,190万円
-
松戸市上本郷
-
JR千代田・常磐緩行線北松戸
-






























担当エージェント:坂本 祐人
随時ご案内可能です♪
当物件はもちろんですが、他に気になる物件のご案内、資金計画、物件詳細、住宅ローン等何でもお気軽にお問い合わせください!!
◆不動産売買仲介・不動産買取・相続・建売住宅・注文住宅・リフォーム・ リノベーション・資金相談・住宅資材販売等「住まいのトータルサービス」をグループ会社共々「ワンストップ」で提供致します。
「住宅ローンって何?」 「金利って何?」 「私にはいくらくらいの物件が買えるの?」「流山や柏に興味はあるんだけど、どんな街?」 ・・・等々何でもご相談下さい。
まずは、お客様の『夢』をお聞かせください!!