大野城市山田1丁目の新築戸建
掲載情報更新日:2026年04月09日 次回更新予定日:2026年04月23日
- 4,280万円
-
- 借入ご希望金額
万円 - 借入期間
年 - 借入金利
% - 月々のお支払い金額
円
- 借入ご希望金額
※ 月々のお支払例は目安の試算となりますので、実際の金額とは異なる場合がございます。詳しくは店舗までお問合わせください。
- 大野城市山田1丁目
-
西鉄天神大牟田線『桜並木』 徒歩8分 (約640m)
JR鹿児島本線『南福岡』 徒歩20分 (約1600m)
西鉄天神大牟田線『雑餉隈』 徒歩14分 (約1100m)
まどか『山田一丁目』 徒歩1分 (約43m)
大野城市山田1丁目一戸建て | 物件情報
博多区と最も隣接しているエリアになります♪桜並木駅徒歩8分♪省令準耐火構造+ZEH仕様+WIC♪
大野城市山田の中でも博多区に隣接している山田1丁目のため、駅距離・周辺施設含めて立地良好です♪
〈新築ならではの設備が充実〉
・ZEH(ネット・ゼロ・エネルギー・ハウス)仕様のため長く住めば住むほど経済的です。
・結露が起きにくいALL樹脂サッシで高い断熱性能が標準装備!
・全室LED照明付きで追加の費用がかかりません♪
・食洗機・浴室暖房乾燥機付き
\充実の周辺環境♪/
コスモス山田店 徒歩1分♪
サトー食鮮館山田店 徒歩3分♪
御笠の森小学校 徒歩9分♪
山田1号公園 徒歩1分♪
物件の設備
- プロパンガス
- 集中プロパン
- 食器洗浄乾燥機
- コンロ三口
- システムキッチン
- 浴室暖房
- 浴室乾燥機
- 浴室に窓
- トイレ2箇所
- 室内洗濯機置場
- 洗面所独立
- 照明器具
- モニタ付インターホン
- 複層ガラス
- 全室フローリング
- 24時間換気システム
- クローゼット
- クローゼット2箇所
- ウォークインクローゼット
- シューズボックス
物件の特徴
- 小学校徒歩10分以内
- 前道6m以上
- スーパーが近い
- 閑静な住宅街
- 周辺交通量少なめ
- 陽当り良好
- 2階建
- 整形地
物件詳細情報
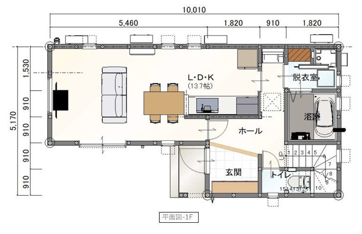
| 価格 | 4,280万円 | 間取り | 3LDK |
|---|---|---|---|
| 物件種別 | 新築一戸建て | ||
| 所在地 | 福岡県大野城市山田1丁目 1号棟 | ||
| アクセス |
|
||
| 建物面積 | 83.62㎡ | 駐車場 | あり 普通:1台 |
| 築年月 | 2026年(令和8年)05月予定 | 建築確認 | 第R07確認建築福住セ本01147号 |
| 建物構造 | 木造 2階建 | 工法 | |
| 主要採光 | 南西向 | バルコニー | |
| 保証・評価 | |||
| 分譲情報 | |||
| 土地面積 | 77.16㎡(23.34坪) | 接道 | 南西側(公道)幅 約6.0m |
| 私道 | セットバック | ||
| 地目 | 宅地 | 地勢 | |
| 権利 | 所有権 |
||
| 都市計画 | 市街化区域 |
用途地域 | 1種住居 |
| 建ぺい/容積率 | 60% / 200% | 土地国土法 | |
| 許可番号 | 建築基準法 | ||
| 法令制限 | 高度地区・法22条区域 | ||
| 小学区 | 御笠の森小学校 徒歩9分 (約700m) | 中学区 | 御陵中学校 徒歩22分 (約1700m) |
| 現況 | 建築中 | 引渡 | 期日指定:2026年05月末 |
| その他費用 | |||
| 周辺環境 | デイリーヤマザキ 博多南店 徒歩11分 (約870m) コインランドリー ラクラス 徒歩12分 (約930m) セブン-イレブン 大野城仲畑4丁目店 徒歩12分 (約930m) セブン-イレブン 大野城筒井2丁目店 徒歩12分 (約920m) 仲畑中央公園 徒歩14分 (約1100m) 春日原駅 徒歩17分 (約1290m) 西日本シティ銀行 春日原支店 徒歩18分 (約1380m) 堤ケ浦(バス) 徒歩20分 (約1540m) 福岡銀行 春日原支店 徒歩18分 (約1440m) 春日原郵便局 徒歩18分 (約1410m) |
||
| 備考 | 桜並木駅徒歩8分♪省令準耐火構造+ZEH仕様+ウォークインクローゼット♪スーパー徒歩3分で利便性高め 大野城市山田の中でも博多区に隣接している山田1丁目のため、駅距離・周辺施設含めて立地良好です♪ 〈新築ならではの設備が充実〉 ・ZEH(ネット・ゼロ・エネルギー・ハウス)仕様のため長く住めば住むほど経済的です。 ・結露が起きにくいALL樹脂サッシで高い断熱性能が標準装備! ・全室LED照明付きで追加の費用がかかりません♪ ・食洗機・浴室暖房乾燥機付き \充実の周辺環境♪/ コスモス山田店 徒歩1分♪サトー食鮮館山田店 徒歩3分♪御笠の森小学校 徒歩9分♪ 山田1号公園 徒歩1分♪ |
||
| 物件番号 | 4567279 | 取引態様 | 専任媒介 |
取扱店舗情報
ハウスドゥ 春日白水公園前 株式会社みらい 店舗詳細ページへ
| 電話番号 | 092-581-8888 |
|---|---|
| 所在地 | 〒816-0847 福岡県春日市大土居1丁目123番地 |
| 営業時間 | 10:00~18:30 |
| 定休日 | 火曜日 水曜日 |
| 宅建免許番号 | 福岡県知事(2)第18997号 |
| アクセス | 店舗への地図はこちら |

来店ご予約
福岡県大野城市で価格が似ている物件はこちら
- 福岡県
マイページ物件数 - 8,383件
最近見た物件
福岡県新築一戸建て新着物件
-
-

-
- 新築一戸建て
- 5,280万円
-
古賀市美明1丁目
-
JR鹿児島本線ししぶ駅
-
-
-

-
- 新築一戸建て
- 2,898万円
-
飯塚市上三緒
-
JR後藤寺線上三緒駅
-
-
-

-
- 新築一戸建て
- 3,198万円
-
福岡市早良区内野2丁目
-
福岡市七隈線野芥駅
-
-
-

-
- 新築一戸建て
- 5,380万円
-
古賀市美明1丁目
-
JR鹿児島本線ししぶ駅
-
-
-

-
- 新築一戸建て
- 4,498万円
-
糟屋郡須惠町大字植木
-
JR香椎線酒殿駅
-
-
-

-
- 新築一戸建て
- 3,298万円
-
北九州市八幡西区小嶺台4丁目
-
筑豊電気鉄道通谷駅
-
-
-

-
- 新築一戸建て
- 2,998万円
-
北九州市小倉南区沼本町2丁目
-
JR日豊本線下曽根駅
-
- お近くの店舗を探す
-
おすすめ物件
-
-

-
- 新築一戸建て
- 3,198万円
-
太宰府市青山2丁目
-
西鉄太宰府線西鉄五条
-
-
-

-
- 新築一戸建て
- 3,198万円
-
北九州市門司区中二十町
-
JR鹿児島本線小森江
-
-
-

-
- 新築一戸建て
- 4,198万円
-
福岡市南区弥永2丁目
-
JR博多南線博多南
-
-
-

-
- 新築一戸建て
- 3,898万円
-
北九州市門司区大里戸ノ上2丁目
-
JR鹿児島本線門司
-
-
-

-
- 新築一戸建て
- 4,399万円
-
古賀市千鳥6丁目
-
JR鹿児島本線千鳥
-
-
-

-
- 新築一戸建て
- 4,998万円
-
糟屋郡粕屋町酒殿2丁目
-
JR香椎線酒殿
-
-
-

-
- 新築一戸建て
- 3,098万円
-
北九州市小倉南区津田3丁目
-
JR日豊本線下曽根
-
-
-

-
- 新築一戸建て
- 3,398万円
-
北九州市小倉南区上貫1丁目
-
JR日豊本線下曽根
-
-
-

-
- 新築一戸建て
- 3,998万円
-
古賀市天神7丁目
-
JR鹿児島本線古賀
-
-
-

-
- 新築一戸建て
- 2,498万円
-
鞍手郡鞍手町大字中山
-
JR筑豊本線鞍手
-













担当エージェント:盛田 享佑
〈小学校徒歩9分の好アクセス♪〉 まずはご相談から始めてみませんか? \複数部門で全国1位受賞店舗/お客様のご要望に沿ってマイホーム探しをお手伝いいたします♪