高石市千代田4丁目の新築戸建
掲載情報更新日:2026年05月21日 次回更新予定日:2026年06月04日
- 3,980万円
-
- 借入ご希望金額
万円 - 借入期間
年 - 借入金利
% - 月々のお支払い金額
円
- 借入ご希望金額
※ 月々のお支払例は目安の試算となりますので、実際の金額とは異なる場合がございます。詳しくは店舗までお問合わせください。
- 高石市千代田4丁目
-
南海電鉄本線『高石』 徒歩13分 (約1040m)
高石市千代田4丁目一戸建て | 物件情報
■マリンホーム施工
物件の設備
- 電気
- 公営水道
- 公共下水
- 都市ガス
- 食器洗浄乾燥機
- システムキッチン
物件の特徴
- 南側道路面す
- 2階建
物件詳細情報
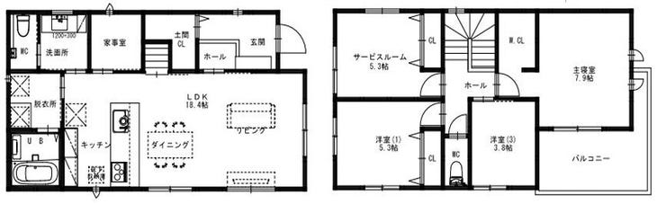
| 価格 | 3,980万円 | 間取り | 3LDK+S |
|---|---|---|---|
| 物件種別 | 新築一戸建て | ||
| 所在地 | 大阪府高石市千代田4丁目 2号地 | ||
| アクセス |
|
||
| 建物面積 | 101.84㎡ | 駐車場 | あり |
| 築年月 | 2026年(令和8年)03月築 | 建築確認 | 第BVJーENG25-10-1174号 |
| 建物構造 | 木造 2階建 | 工法 | |
| 主要採光 | バルコニー | ||
| 保証・評価 | |||
| 土地面積 | 100.03㎡(30.25坪) | 接道 | 南側(公道)幅 約4.3m 東側(公道)幅 約5.8m |
| 私道 | セットバック | ||
| 地目 | 宅地 | 地勢 | |
| 権利 | 所有権 |
||
| 都市計画 | 市街化区域 |
用途地域 | 1種中高 |
| 建ぺい/容積率 | 60% / 200% | 土地国土法 | |
| 許可番号 | 建築基準法 | ||
| 法令制限 | 準防火地域 | ||
| 小学区 | 中学区 | ||
| 現況 | 完工済 | 引渡 | 相談 |
| その他費用 | |||
| 備考 | ■マリンホーム施工 ■長期優良住宅 ZEH水準の省エネ住宅(耐震等級:3 1次エネルギー消費量等級:6 断熱等級:5) ■駐車2台可(車種によります) ■乾太くん標準装備 2Fバルコニー水栓あり 樹脂サッシ採用(LOW-Eガラス+アルゴンガス+樹脂フレーム) |
||
| 物件番号 | 4569398 | 取引態様 | 媒介 |
取扱店舗情報
| 電話番号 | 0725-58-6606 |
|---|---|
| 所在地 | 〒595-0026 大阪府泉大津市東雲町10-12 |
| 営業時間 | 9:00~19:00 |
| 定休日 | 火曜日・水曜日(月末の火曜日は営業) |
| 宅建免許番号 | 大阪府知事(1)第62898号 |
| アクセス | 店舗への地図はこちら |

来店ご予約
大阪府高石市で価格が似ている物件はこちら
- 大阪府
マイページ物件数 - 19,131件
最近見た物件
-
-

-
- 新築一戸建て
- 2,130万円
-
姶良市加治木町反土
-
JR日豊本線加治木
-
-
-

-
- 新築一戸建て
- 2,695万円
-
尾道市栗原町
-
JR山陽本線尾道
-
-
-

-
- 中古一戸建て
- 2,490万円
-
石狩市花川南四条2丁目
-
JR函館本線手稲
-
大阪府新築一戸建て新着物件
-
-

-
- 新築一戸建て
- 2,790万円
-
八尾市志紀町南4丁目
-
JR関西本線志紀駅
-
-
-

-
- 新築一戸建て
- 6,699万円
-
豊中市千里園1丁目
-
阪急電鉄宝塚線豊中駅
-
-
-

-
- 新築一戸建て
- 3,280万円
-
摂津市鳥飼和道2丁目
-
大阪モノレール南摂津駅
-
-
-

-
- 新築一戸建て
- 3,380万円
-
摂津市鳥飼和道2丁目
-
大阪モノレール南摂津駅
-
-
-

-
- 新築一戸建て
- 3,280万円
-
摂津市鳥飼和道2丁目
-
大阪モノレール南摂津駅
-
-
-

-
- 新築一戸建て
- 3,480万円
-
摂津市鳥飼和道2丁目
-
大阪モノレール南摂津駅
-
-
-

-
- 新築一戸建て
- 3,780万円
-
堺市西区北条町2丁
-
JR阪和線上野芝駅
-
- お近くの店舗を探す
-
おすすめ物件
-
-

-
- 新築一戸建て
- 3,680万円
-
大阪市東住吉区住道矢田4丁目
-
近鉄南大阪線矢田
-
-
-

-
- 新築一戸建て
- 4,680万円
-
堺市北区百舌鳥本町2丁
-
JR阪和線百舌鳥
-
-
-

-
- 新築一戸建て
- 3,090万円
-
河内長野市南青葉台
-
南海電鉄高野線三日市町
-
-
-

-
- 新築一戸建て
- 3,998万円
-
高槻市安岡寺町2丁目
-
JR東海道線高槻
-
-
-

-
- 新築一戸建て
- 3,480万円
-
大阪市東住吉区住道矢田4丁目
-
近鉄南大阪線矢田
-
-
-

-
- 新築一戸建て
- 3,780万円
-
大阪市住之江区北島3丁目
-
南海電鉄本線住ノ江
-
-
-

-
- 新築一戸建て
- 3,780万円
-
摂津市一津屋2丁目
-
大阪モノレール南摂津
-
-
-

-
- 新築一戸建て
- 2,990万円
-
高石市高師浜2丁目
-
南海電鉄高師ノ浜線高師浜
-
-
-

-
- 新築一戸建て
- 3,680万円
-
高槻市安岡寺町2丁目
-
JR東海道線高槻
-
-
-

-
- 新築一戸建て
- 3,280万円
-
堺市西区鳳西町2丁
-
JR阪和線鳳
-




