さいたま市緑区原山1丁目の新築戸建
掲載情報更新日:2026年02月28日 次回更新予定日:2026年03月14日
- 4,880万円
-
- 借入ご希望金額
万円 - 借入期間
年 - 借入金利
% - 月々のお支払い金額
円
- 借入ご希望金額
※ 月々のお支払例は目安の試算となりますので、実際の金額とは異なる場合がございます。詳しくは店舗までお問合わせください。
- さいたま市緑区原山1丁目
-
JR京浜東北・根岸線『浦和』 徒歩25分 (約2000m)
さいたま市緑区原山1丁目一戸建て | 物件情報
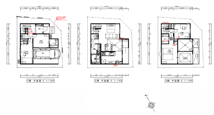
◇延床面積約33坪!◇カースペース1台◇3LDK+2WIC+S◇住宅ローン相談乗ります!
まずは私たちにご連絡ください!どんな些細なことでも力になります!
◇住宅ローン相談◇
「他社で断られた」
「審査が通らない」
「返済をできるだけ抑えたい」
そんなお悩みもぜひお聞かせください。
お客様一人ひとりに寄り添い、これからの暮らしを見据えた“最適なご提案”をいたします。
◇現地見学会開催中◇
平日や仕事終わりの夜でも「今日見てみたい!」そんなときでもOK♪
お電話1本でスタッフがすぐに駆けつけます!
048-762-8871こちらから
◇ご案内方法◇
ご来店いただかなくても、現地待ち合わせ・自宅、最寄りまでの送迎サービスで柔軟に対応!周辺環境や他にも見たい物件もあわせてご案内できます!
◇ご来店方法◇
ナビで「ハウスドゥさいたま北宿通り」で検索♪
ローソンストア100に駐車場に4台駐車可能!
手ぶらでOK!キッズスペース完備でお子様ずれでも問題なし!
◇売却査定相談◇
「急な転勤」「相続による売却」「金銭的な理由」など住まいの売却をそれぞれです。
仲介はもちろんのこと、弊社独自のネットワークで買取案件もご相談できます!
物件の設備
- 電気
- 公営水道
- 公共下水
- 都市ガス
- ユニットバス
- オートバス
- バスサイズ1620
- 追焚機能
- 浴室乾燥機
- トイレ
- トイレ2箇所
- 温水洗浄便座
- 室内洗濯機置場
- 洗髪洗面化粧台
- モニタ付インターホン
- LDK15畳以上
- 全居室複層ガラス
- 全室フローリング
- 24時間換気システム
- クローゼット2箇所
- ウォークインクローゼット2箇所
- シューズボックス
- バルコニー
物件の特徴
- 耐震構造
- 3階建以上
物件詳細情報
| 価格 | 4,880万円 | 間取り | 3LDK+S |
|---|---|---|---|
| 物件種別 | 新築一戸建て | ||
| 所在地 | 埼玉県さいたま市緑区原山1丁目25-12 1 | ||
| アクセス |
|
||
| 建物面積 | 実98.23㎡ | 駐車場 | あり 普通:1台 |
| 築年月 | 2026年(令和8年)04月予定 | 建築確認 | 第BNV確済25-927号 |
| 建物構造 | 木造 3階建 | 工法 | |
| 主要採光 | 南東向 | バルコニー | |
| 保証・評価 | |||
| 土地面積 | 実69.56㎡(21.04坪) | 接道 | 北側(私道)幅 約4.3m 東側(私道)幅 約4.0m |
| 私道 | セットバック | ||
| 地目 | 宅地 | 地勢 | |
| 権利 | 所有権 |
||
| 都市計画 | 市街化区域 |
用途地域 | 2種中高 |
| 建ぺい/容積率 | 60% / 200% | 土地国土法 | |
| 許可番号 | 建築基準法 | ||
| 法令制限 | 高度地区・景観法・法22条区域 | ||
| 小学区 | 原山小学校 徒歩6分 (約470m) | 中学区 | 原山中学校 徒歩12分 (約900m) |
| 現況 | 建築中 | 引渡 | 期日指定:2026年04月 |
| その他費用 | |||
| 備考 | |||
| 物件番号 | 4571387 | 取引態様 | 媒介 |
取扱店舗情報
ハウスドゥ さいたま北宿通り 株式会社アークウェイホーム 店舗詳細ページへ
| 電話番号 | 048-762-8871 |
|---|---|
| 所在地 | 〒336-0907 埼玉県さいたま市緑区道祖土1丁目26-5 |
| 営業時間 | 9:00~18:00 |
| 定休日 | 水曜日 |
| 宅建免許番号 | 埼玉県知事(1)第25521号 |
| アクセス | 店舗への地図はこちら |

来店ご予約
埼玉県さいたま市緑区で価格が似ている物件はこちら
- 埼玉県
マイページ物件数 - 3,336件
最近見た物件
-
-

-
- 新築一戸建て
- 2,698万円
-
合志市竹迫
-
JR豊肥本線光の森
-
-
-

-
- 新築一戸建て
- 3,998万円
-
高槻市東五百住町2丁目
-
阪急電鉄京都線富田
-
-
-

-
- 中古一戸建て
- 2,790万円
-
高岡市赤祖父
-
大野バス停
-
埼玉県新築一戸建て新着物件
- お近くの店舗を探す
-
おすすめ物件
-
-

-
- 新築一戸建て
- 2,990万円
-
越谷市大成町7丁目
-
JR武蔵野線越谷レイクタウン
-
-
-

-
- 新築一戸建て
- 3,799万円
-
吉川市新栄1丁目
-
JR武蔵野線吉川
-
-
-

-
- 新築一戸建て
- 4,290万円
-
さいたま市緑区道祖土4丁目
-
JR京浜東北・根岸線浦和
-
-
-

-
- 新築一戸建て
- 4,890万円
-
戸田市笹目3丁目
-
JR埼京線戸田
-
-
-

-
- 新築一戸建て
- 4,090万円
-
吉川市道庭1丁目
-
JR武蔵野線吉川美南
-
-
-

-
- 新築一戸建て
- 4,580万円
-
戸田市喜沢1丁目
-
JR京浜東北・根岸線西川口
-
-
-

-
- 新築一戸建て
- 5,880万円
-
戸田市下戸田1丁目
-
JR埼京線戸田公園
-
-
-

-
- 新築一戸建て
- 4,380万円
-
戸田市笹目2丁目
-
JR埼京線戸田
-
-
-

-
- 新築一戸建て
- 3,680万円
-
越谷市東越谷6丁目
-
東武伊勢崎・大師線越谷
-
-
-

-
- 新築一戸建て
- 4,380万円
-
上尾市大字瓦葺
-
湘南新宿ライン宇須東大宮
-














担当エージェント:笠井 航汰
~☆☆モデル棟ご案内可能な物件☆☆~さいたまの土地、戸建て、マンションのご相談はハウスドゥさいたま北宿通りにお気軽にお問い合わせ下さい!!