熊本市南区元三町1丁目の新築戸建
NEW 01.31掲載情報更新日:2026年01月31日 次回更新予定日:2026年02月14日
- 3,498万円
-
- 借入ご希望金額
万円 - 借入期間
年 - 借入金利
% - 月々のお支払い金額
円
- 借入ご希望金額
※ 月々のお支払例は目安の試算となりますので、実際の金額とは異なる場合がございます。詳しくは店舗までお問合わせください。
- 熊本市南区元三町1丁目
-
JR鹿児島本線『川尻』 徒歩17分 (約1290m)
JR三角線『宇土』 車14分(約7.5km)
九州産交バス『熊本農業高校前』 徒歩8分 (約600m)
熊本市南区元三町1丁目一戸建て | 物件情報
《一気見ツアー今すぐOK》☆仲介手数料無料物件(110万円相当がお得!)お気軽にお問合せください♪
【内覧ツアー×最安値保証】ネットの物件、すべて当社で紹介可能!交渉力で「理想の価格」を叶えます
当社は通常かかる仲介手数料(物件価格の3%+6万円)が無料(例:3000万円の場合、90万円相当)
売主様への価格交渉も得意なので、どこよりもお安くご購入いただけるよう徹底サポートします!
他社様でお見積もりを取った後でも大丈夫!もっと安く買えるのでは?そんな悩みは当社が解決します
【内覧ツアー】
熊本県内全域の気になる物件をすべて当社でご内覧いただける『内覧ツアー』を実施中☆
新築・中古・中古マンションも!見学されたい物件を1日で内覧可能♪
窓口を一つに絞れるから、手間も時間もかかりません。
【最安値保証】
\最 安 値 徹 底 宣 言/
他社様よりも必ずお得にご購入いただけることをお約束します
当社ではオプション費用(エアコン、網戸、太陽光等)もお客様に代わり相見積もりします
トータルの費用が100万円以上変わることも!
全国700店舗以上展開!
ハウスドゥだからこその豊富な物件数・情報量でお客様のお家選びをトータルサポートいたします!
物件の設備
- 電気
- オール電化
- 上水道
- 公営水道
- 下水道
- 公共下水
- 給湯
- 浄水器
- 食器洗浄乾燥機
- IHクッキングヒータ
- システムキッチン
- オートバス
- 追焚機能
- 浴室暖房
- 浴室乾燥機
- トイレ2箇所
- タンクレストイレ
- 室内洗濯機置場
- 洗髪洗面化粧台
- 洗面所独立
- エアコン
- 照明器具
- 間接照明
- ダウンライト
- シーリングファン
- モニタ付インターホン
- LDK18畳以上
- 吹抜
- 複層ガラス
- 網戸
- ウォークインクローゼット
- 全居室収納
- シューズインクローク
物件の特徴
- 2階建
- 即入居可
- フラット35Sに対応
物件詳細情報
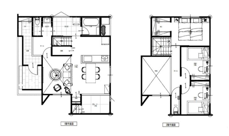
| 価格 | 3,498万円 | 間取り | 3LDK+S |
|---|---|---|---|
| 物件種別 | 新築一戸建て | ||
| 所在地 | 熊本県熊本市南区元三町1丁目3-28付近 | ||
| アクセス |
|
||
| 建物面積 | 101.84㎡ | 駐車場 | あり 普通:3台 |
| 築年月 | 2025年(令和7年)12月築 | 建築確認 | |
| 建物構造 | 木造 2階建 | 工法 | |
| 主要採光 | バルコニー | ||
| 保証・評価 | |||
| 土地面積 | 200.07㎡(60.52坪) | 接道 | |
| 私道 | セットバック | ||
| 地目 | 宅地 | 地勢 | |
| 権利 | 所有権 |
||
| 都市計画 | 調整区域 開発許可等による分譲地内 |
用途地域 | 指定無 |
| 建ぺい/容積率 | 60% / 150% | 土地国土法 | |
| 許可番号 | 建築基準法 | ||
| 法令制限 | |||
| 小学区 | 川尻小学校 徒歩15分 (約1170m) | 中学区 | 城南中学校 徒歩7分 (約560m) |
| 現況 | 完工済 | 引渡 | 即 |
| その他費用 | |||
| 周辺環境 | 川尻小学校 徒歩15分 (約1170m) 城南中学校 徒歩7分 (約560m) わかくさ幼稚園 徒歩10分 (約780m) セブンイレブン熊本川尻1丁目 徒歩14分 (約1090m) ザ・ビッグエクスプレス 川尻店 徒歩12分 (約920m) 大宮整形外科医院 徒歩10分 (約750m) 川尻郵便局 徒歩12分 (約910m) ロッキースーパーストア 川尻店 徒歩13分 (約1020m) ぐるぐる倉庫熊本本店 徒歩9分 (約670m) 川尻交番 徒歩13分 (約1000m) |
||
| 備考 | ・川尻小学校まで徒歩15分(約1170m) ・城南中学校まで徒歩7分(約560m) ・わかくさ幼稚園まで徒歩10分(約780m) ・セブンイレブン熊本川尻1丁目まで徒歩14分(約1090m) ・ザ・ビッグエクスプレス川尻店まで徒歩12分(約920m) ・大宮整形外科医院まで徒歩10分(約750m) ・川尻郵便局まで徒歩12分(約910m) ・ロッキースーパーストア 川尻店まで徒歩13分(約1020m) ・ぐるぐる倉庫熊本本店まで徒歩9分(約670m) ・川尻交番まで徒歩13分(約1000m) |
||
| 物件番号 | 4579202 | 取引態様 | 媒介 |
取扱店舗情報
ハウスドゥ 熊本桜町 株式会社Remado 店舗詳細ページへ
| 電話番号 | 096-274-4665 |
|---|---|
| 所在地 | 〒860-0805 熊本県熊本市中央区桜町1-25 |
| 営業時間 | 10:00~18:00 |
| 定休日 | 年末年始, 夏季休暇(お盆) |
| 宅建免許番号 | 熊本県知事(1)第5556号 |
| アクセス | 店舗への地図はこちら |

来店ご予約
熊本県熊本市南区で価格が似ている物件はこちら
- 熊本県
マイページ物件数 - 2,704件
最近見た物件
熊本県新築一戸建て新着物件
-
-

-
- 新築一戸建て
- 2,698万円
-
熊本市東区御領3丁目
-
JR豊肥本線東海学園前駅
-
-
-

-
- 新築一戸建て
- 3,198万円
-
熊本市中央区帯山4丁目
-
JR豊肥本線東海学園前駅
-
-
-

-
- 新築一戸建て
- 1,598万円
-
菊池市西寺
-
熊本電気鉄道御代志駅
-
-
-

-
- 新築一戸建て
- 1,648万円
-
菊池市西寺
-
熊本電気鉄道御代志駅
-
-
-

-
- 新築一戸建て
- 4,198万円
-
熊本市北区武蔵ケ丘1丁目
-
JR豊肥本線武蔵塚駅
-
-
-

-
- 新築一戸建て
- 3,498万円
-
上益城郡嘉島町大字上仲間
-
JR鹿児島本線川尻駅
-
-
-

-
- 新築一戸建て
- 2,398万円
-
熊本市西区高橋町1丁目
-
JR豊肥本線熊本駅
-
- お近くの店舗を探す
-
おすすめ物件
-
-

-
- 新築一戸建て
- 4,090万円
-
熊本市中央区壺川1丁目
-
熊本電気鉄道藤崎宮前
-
-
-

-
- 新築一戸建て
- 2,790万円
-
熊本市東区月出7丁目
-
JR豊肥本線水前寺
-
-
-

-
- 新築一戸建て
- 3,890万円
-
熊本市中央区壺川1丁目
-
熊本電気鉄道藤崎宮前
-
-
-

-
- 新築一戸建て
- 3,090万円
-
熊本市東区月出7丁目
-
JR豊肥本線水前寺
-
-
-

-
- 新築一戸建て
- 3,198万円
-
合志市御代志
-
熊本電気鉄道御代志
-
-
-

-
- 新築一戸建て
- 2,580万円
-
熊本市南区御幸笛田1丁目
-
JR豊肥本線南熊本
-
-
-

-
- 新築一戸建て
- 3,298万円
-
熊本市北区清水新地1丁目
-
熊本電気鉄道堀川
-
-
-

-
- 新築一戸建て
- 2,590万円
-
熊本市南区御幸笛田1丁目
-
JR豊肥本線南熊本
-
-
-

-
- 新築一戸建て
- 3,280万円
-
熊本市東区榎町
-
熊本市健軍線健軍町
-
-
-

-
- 新築一戸建て
- 3,288万円
-
熊本市西区田崎3丁目
-
熊本市健軍線田崎橋
-

























担当エージェント:髙濱 将弥
【月々の支払い例】
3500万円借り入れの場合
月々70,464円(頭金・ボーナス払いなし)
金利0.780%の場合(SBI新生銀行、金利優遇有)
変動金利 返済期間50年
※あくまで一例。条件有。
【 周辺環境 】
・川尻小学校まで徒歩15分(約1170m)
・城南中学校まで徒歩7分(約560m)
・わかくさ幼稚園まで徒歩10分(約780m)
・セブンイレブン熊本川尻1丁目まで徒歩14分(約1090m)
・ザ・ビッグエクスプレス川尻店まで徒歩12分(約920m)
・大宮整形外科医院まで徒歩10分(約750m)
・川尻郵便局まで徒歩12分(約910m)
・ロッキースーパーストア 川尻店まで徒歩13分(約1020m)
・ぐるぐる倉庫熊本本店まで徒歩9分(約670m)
・川尻交番まで徒歩13分(約1000m)
お気軽にご相談ください!
お問い合わせは『ハウスドゥ熊本桜町』まで♪