熊本市東区三郎2丁目の新築戸建
NEW 01.31掲載情報更新日:2026年01月31日 次回更新予定日:2026年02月14日
- 3,298万円
-
- 借入ご希望金額
万円 - 借入期間
年 - 借入金利
% - 月々のお支払い金額
円
- 借入ご希望金額
※ 月々のお支払例は目安の試算となりますので、実際の金額とは異なる場合がございます。詳しくは店舗までお問合わせください。
- 熊本市東区三郎2丁目
-
JR豊肥本線『東海学園前』 徒歩36分 (約2830m)
熊本市健軍線『健軍校前』 徒歩33分 (約2580m)
『三郎』 徒歩4分 (約290m)
熊本市東区三郎2丁目一戸建て | 物件情報
《一気見ツアー今すぐOK》☆仲介手数料無料物件(104万円相当がお得!)お気軽にお問合せください♪
※マウスを乗せると画像が切り替わります。
【内覧ツアー×最安値保証】ネットの物件、すべて当社で紹介可能!交渉力で「理想の価格」を叶えます
当社は通常かかる仲介手数料(物件価格の3%+6万円)が無料(例:3000万円の場合、90万円相当)
売主様への価格交渉も得意なので、どこよりもお安くご購入いただけるよう徹底サポートします!
他社様でお見積もりを取った後でも大丈夫!もっと安く買えるのでは?そんな悩みは当社が解決します
【内覧ツアー】
熊本県内全域の気になる物件をすべて当社でご内覧いただける『内覧ツアー』を実施中☆
新築・中古・中古マンションも!見学されたい物件を1日で内覧可能♪
窓口を一つに絞れるから、手間も時間もかかりません。
【最安値保証】
\最 安 値 徹 底 宣 言/
他社様よりも必ずお得にご購入いただけることをお約束します
当社ではオプション費用(エアコン、網戸、太陽光等)もお客様に代わり相見積もりします
トータルの費用が100万円以上変わることも!
全国700店舗以上展開!
ハウスドゥだからこその豊富な物件数・情報量でお客様のお家選びをトータルサポートいたします!
物件の設備
- 電気
- オール電化
- 上水道
- 公営水道
- 下水道
- 公共下水
- 給湯
- 浄水器
- 食器洗浄乾燥機
- IHクッキングヒータ
- コンロ三口
- グリル
- システムキッチン
- バス
- ユニットバス
- オートバス
- バス1坪以上
- 追焚機能
- 浴室暖房
- 浴室乾燥機
- トイレ
- トイレ2箇所
- 温水洗浄便座
- 室内洗濯機置場
- 洗髪洗面化粧台
- 洗面所独立
- エアコン
- ダウンライト
- リビング階段
- ディンプルキー
- ダブルロックキー
- モニタ付インターホン
- 火災警報器/報知機
- 複層ガラス
- フローリング
- 24時間換気システム
- クローゼット
- ウォークインクローゼット
- 納戸
- シューズボックス
物件の特徴
- 2沿線利用可
- スーパーが近い
- 閑静な住宅街
- 周辺交通量少なめ
- 通風良好
- 陽当り良好
- 2階建
- BELS/省エネ基準適合
- 省エネルギー対策
- 即入居可
- フラット35Sに対応
物件詳細情報
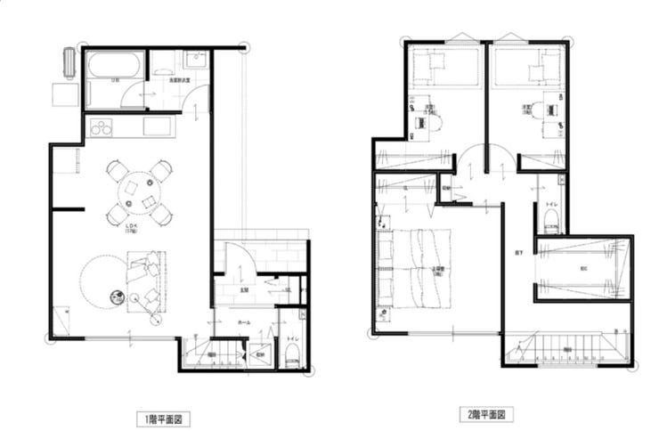
| 価格 | 3,298万円 | 間取り | 3LDK+S |
|---|---|---|---|
| 物件種別 | 新築一戸建て | ||
| 所在地 | 熊本県熊本市東区三郎2丁目10-8付近 | ||
| アクセス |
|
||
| 建物面積 | 93.57㎡ | 駐車場 | あり 普通:2台 |
| 築年月 | 2026年(令和8年)01月築 | 建築確認 | |
| 建物構造 | 木造 2階建 | 工法 | |
| 主要採光 | バルコニー | ||
| 保証・評価 | |||
| 土地面積 | 110.53㎡(33.43坪) | 接道 | |
| 私道 | セットバック | ||
| 地目 | 宅地 | 地勢 | |
| 権利 | 所有権 |
||
| 都市計画 | 市街化区域 |
用途地域 | 1種中高 |
| 建ぺい/容積率 | 60% / 150% | 土地国土法 | |
| 許可番号 | 建築基準法 | ||
| 法令制限 | |||
| 小学区 | 尾ノ上小学校 徒歩16分 (約1240m) | 中学区 | 錦ヶ丘中学校 徒歩17分 (約1290m) |
| 現況 | 完工済 | 引渡 | 即 |
| その他費用 | |||
| 周辺環境 | 尾ノ上小学校 徒歩16分 (約1240m) 錦ケ丘中学校 徒歩17分 (約1290m) 帯山保育園 徒歩8分 (約580m) ファミリーマート 熊本尾ノ上4丁目店 徒歩6分 (約420m) スーパー・キッド 新外店 徒歩5分 (約400m) 熊本鉄砲塚郵便局 徒歩5分 (約360m) 本庄内科病院 徒歩7分 (約490m) 月出二丁目公園 徒歩6分 (約440m) ゆめマート帯山 徒歩9分 (約710m) スターバックスコーヒー 熊本帯山店 徒歩9分 (約680m) |
||
| 備考 | ・尾ノ上小学校まで徒歩16分(約1240m) ・錦ケ丘中学校まで徒歩17分(約1290m) ・帯山保育園まで徒歩8分(約580m) ・ファミリーマート 熊本尾ノ上4丁目店まで徒歩6分(約420m) ・スーパー・キッド 新外店まで徒歩5分(約400m) ・熊本鉄砲塚郵便局まで徒歩5分(約360m) ・本庄内科病院まで徒歩7分(約490m) ・月出二丁目公園まで徒歩6分(約440m) ・ゆめマート帯山まで徒歩9分(約710m) ・スターバックスコーヒー 熊本帯山店まで徒歩9分(約680m) |
||
| 物件番号 | 4579220 | 取引態様 | 媒介 |
取扱店舗情報
ハウスドゥ 熊本桜町 株式会社Remado 店舗詳細ページへ
| 電話番号 | 096-274-4665 |
|---|---|
| 所在地 | 〒860-0805 熊本県熊本市中央区桜町1-25 |
| 営業時間 | 10:00~18:00 |
| 定休日 | 年末年始, 夏季休暇(お盆) |
| 宅建免許番号 | 熊本県知事(1)第5556号 |
| アクセス | 店舗への地図はこちら |

来店ご予約
熊本県熊本市東区で価格が似ている物件はこちら
![]()
![]()
-
- 新築一戸建て 2024.10.19
-
-
- 3,290万円
-
熊本市東区戸島西7丁目
-
JR豊肥本線「東海学園前駅」まで車22分
- 4LDK
-
-
- 新築一戸建て 2025.03.02
-
-
- 3,199万円
-
熊本市東区戸島1丁目
-
JR豊肥本線「武蔵塚駅」まで車17分
- 4LDK
-
-
- 新築一戸建て 2025.04.07
-
-
- 3,199万円
-
熊本市東区戸島1丁目
-
熊本都市バス葉山団地入口まで徒歩3分
- 4LDK
-
-
- 新築一戸建て 2025.05.04
-
-
- 3,299万円
-
熊本市東区尾ノ上3丁目
-
熊本市健軍線「健軍校前駅」まで徒歩25分
- 4LDK
-
-
- 新築一戸建て 2025.05.04
-
-
- 3,299万円
-
熊本市東区尾ノ上3丁目
-
熊本市健軍線「健軍校前駅」まで徒歩25分
- 4LDK
-
-
- 新築一戸建て 2025.05.18
-
-
- 3,290万円
-
熊本市東区戸島西7丁目
-
JR豊肥本線「水前寺駅」バス乗車33分 バス停「竜穴」まで徒歩7分
- 4LDK
-
-
- 新築一戸建て 2025.06.02
-
-
- 3,299万円
-
熊本市東区尾ノ上3丁目
-
熊本市健軍線「健軍校前駅」まで徒歩25分
- 4LDK
-
-
- 新築一戸建て 2025.06.02
-
-
- 3,299万円
-
熊本市東区尾ノ上3丁目
-
熊本市健軍線「健軍校前駅」まで徒歩25分
- 4LDK
-
-
- 新築一戸建て 2025.06.23
-
-
- 3,299万円
-
熊本市東区尾ノ上3丁目
-
熊本市健軍線「神水交差点駅」まで徒歩25分
- 4LDK
-
-
- 新築一戸建て 2025.06.23
-
-
- 3,299万円
-
熊本市東区尾ノ上3丁目
-
熊本市健軍線「神水交差点駅」まで徒歩25分
- 4LDK
-
-
- 新築一戸建て 2025.06.24
-
-
- 3,280万円
-
熊本市東区秋津1丁目
-
熊本市健軍線「健軍町駅」まで徒歩16分
- 4LDK
-
-
- 新築一戸建て 2025.06.24
-
-
- 3,298万円
-
熊本市東区八反田2丁目
-
JR豊肥本線「東海学園前駅」まで徒歩30分
- 4LDK
-
-
- 新築一戸建て 2025.06.26
-
-
- 3,198万円
-
熊本市東区八反田2丁目
-
JR豊肥本線「東海学園前駅」まで徒歩30分
- 4LDK
-
-
- 新築一戸建て 2025.07.14
-
-
- 3,290万円
-
熊本市東区戸島西7丁目
-
熊本市健軍線「健軍町駅」まで徒歩62分
- 4LDK
-
-
- 新築一戸建て 2025.08.07
-
-
- 3,290万円
-
熊本市東区戸島西7丁目
-
熊本都市バス竜穴まで徒歩7分
- 4LDK
-
-
- 新築一戸建て 2025.09.04
-
-
- 3,390万円
-
熊本市東区小峯4丁目
-
熊本市健軍線「健軍町駅」まで徒歩52分
- 3LDK
-
-
- 新築一戸建て 2025.09.06
-
-
- 3,298万円
-
熊本市東区長嶺東5丁目
-
JR豊肥本線「東海学園前駅」バス乗車15分 バス停「託麻まちづくりセンター前」まで徒歩8分
- 4LDK
-
-
- 新築一戸建て 2025.09.06
-
-
- 3,348万円
-
熊本市東区長嶺東5丁目
-
JR豊肥本線「東海学園前駅」バス乗車15分 バス停「託麻まちづくりセンター前」まで徒歩8分
- 4LDK
-
-
- 新築一戸建て 2025.09.22
-
-
- 3,390万円
-
熊本市東区小峯4丁目
-
JR豊肥本線「水前寺駅」まで徒歩23分
- 3LDK
-
-
- 新築一戸建て 2025.09.27
-
-
- 3,390万円
-
熊本市東区小峯4丁目
-
JR豊肥本線「水前寺駅」まで車17分
- 3LDK
-
-
- 新築一戸建て 2025.09.30
-
-
- 3,198万円
-
熊本市東区花立6丁目
-
熊本市健軍線「健軍町駅」まで徒歩27分
- 4LDK
-
-
- 新築一戸建て 2025.09.30
-
-
- 3,398万円
-
熊本市東区花立6丁目
-
熊本市健軍線「健軍町駅」まで徒歩27分
- 4LDK
-
-
- 新築一戸建て 2025.09.30
-
-
- 3,298万円
-
熊本市東区花立6丁目
-
熊本市健軍線「健軍町駅」まで徒歩27分
- 4LDK
-
-
- 新築一戸建て 2025.10.03
-
-
- 3,398万円
-
熊本市東区八反田1丁目
-
JR豊肥本線「東海学園前駅」まで徒歩28分
- 4LDK
-
-
- 新築一戸建て 2025.10.13
-
-
- 3,390万円
-
熊本市東区小峯4丁目
-
JR豊肥本線「水前寺駅」バス乗車23分 バス停「小峯」まで徒歩9分
- 4LDK
-
-
- 新築一戸建て 2025.10.14
-
-
- 3,198万円
-
熊本市東区戸島7丁目
-
九州産交バス戸島駐車場前まで徒歩3分
- 4LDK+S
-
-
- 新築一戸建て 2025.10.21
-
-
- 3,370万円
-
熊本市東区戸島5丁目
-
JR豊肥本線「武蔵塚駅」まで徒歩64分
- 4LDK
-
-
- 新築一戸建て 2025.10.22
-
-
- 3,280万円
-
熊本市東区榎町
-
熊本市健軍線「健軍町駅」まで徒歩38分
- 4LDK
-
-
- 新築一戸建て 2025.10.23
-
-
- 3,280万円
-
熊本市東区戸島5丁目
-
小山団地入口まで徒歩12分
- 4LDK
-
-
- 新築一戸建て 2025.10.23
-
-
- 3,370万円
-
熊本市東区戸島5丁目
-
小山団地入口まで徒歩12分
- 4LDK
-
-
- 新築一戸建て 2025.10.23
-
-
- 3,360万円
-
熊本市東区戸島5丁目
-
小山団地入口まで徒歩12分
- 4LDK
-
-
- 新築一戸建て 2025.10.27
-
-
- 3,390万円
-
熊本市東区小峯4丁目
-
熊本市健軍線「健軍町駅」まで徒歩52分
- 4LDK
-
-
- 新築一戸建て 2025.10.28
-
-
- 3,360万円
-
熊本市東区戸島5丁目
-
JR豊肥本線「武蔵塚駅」まで徒歩64分
- 4LDK
-
-
- 新築一戸建て 2025.10.30
-
-
- 3,298万円
-
熊本市東区長嶺東5丁目
-
JR豊肥本線「東海学園前駅」バス乗車15分 バス停「託麻まちづくりセンター」まで徒歩8分
- 4LDK
-
-
- 新築一戸建て 2025.10.31
-
-
- 3,348万円
-
熊本市東区長嶺東5丁目
-
JR豊肥本線「東海学園前駅」バス乗車15分 バス停「託麻まちづくりセンター」まで徒歩8分
- 4LDK
-
-
- 新築一戸建て 2025.11.06
-
-
- 3,298万円
-
熊本市東区花立6丁目
-
熊本市健軍線「健軍町駅」まで徒歩27分
- 4LDK+S
-
-
- 新築一戸建て 2025.11.06
-
-
- 3,398万円
-
熊本市東区花立6丁目
-
熊本市健軍線「健軍町駅」まで徒歩27分
- 4LDK
-
-
- 新築一戸建て 2025.11.13
-
-
- 3,199万円
-
熊本市東区戸島1丁目
-
JR豊肥本線「光の森駅」まで徒歩81分
- 4LDK
-
-
- 新築一戸建て 2025.11.22
-
-
- 3,280万円
-
熊本市東区榎町
-
熊本市健軍線「健軍町駅」まで徒歩34分
- 4LDK
-
-
- 新築一戸建て 2025.11.29
-
-
- 3,370万円
-
熊本市東区戸島5丁目
-
JR豊肥本線「三里木駅」まで徒歩64分
- 4LDK
-
-
- 新築一戸建て 2025.11.29
-
-
- 3,360万円
-
熊本市東区戸島5丁目
-
JR豊肥本線「三里木駅」まで徒歩64分
- 4LDK
-
-
- 新築一戸建て 2025.11.30
-
-
- 3,280万円
-
熊本市東区榎町
-
熊本市健軍線「健軍町駅」まで徒歩35分
- 4LDK
-
-
- 新築一戸建て 2025.11.30
-
-
- 3,198万円
-
熊本市東区花立6丁目
-
産交バス花立5丁目まで徒歩6分
- 4LDK
-
-
- 新築一戸建て 2025.11.30
-
-
- 3,398万円
-
熊本市東区花立6丁目
-
産交バス花立5丁目まで徒歩6分
- 4LDK
-
-
- 新築一戸建て 2025.11.30
-
-
- 3,298万円
-
熊本市東区花立6丁目
-
産交バス花立5丁目まで徒歩6分
- 4LDK
-
-
- 新築一戸建て 2025.12.14
-
-
- 3,199万円
-
熊本市東区戸島1丁目
-
熊本都市バス葉山団地入口まで徒歩3分
- 4LDK
-
-
- 新築一戸建て 2025.12.17
-
-
- 3,370万円
-
熊本市東区戸島5丁目
-
JR豊肥本線「光の森駅」まで車10分
- 4LDK
-
-
- 新築一戸建て 2025.12.17
-
-
- 3,360万円
-
熊本市東区戸島5丁目
-
JR豊肥本線「光の森駅」まで車10分
- 4LDK
-
-
- 新築一戸建て 2025.12.21
-
-
- 3,198万円
-
熊本市東区戸島7丁目
-
JR豊肥本線「三里木駅」まで車15分
- 4LDK
-
-
- 新築一戸建て 2025.12.22
-
-
- 3,280万円
-
熊本市東区榎町
-
熊本市健軍線「健軍町駅」まで徒歩35分
- 4LDK
-
-
-
新築一戸建て
2026.01.08
-
-
- 3,298万円
-
熊本市東区長嶺東5丁目
-
JR豊肥本線「東海学園前駅」バス乗車15分 バス停「託麻まちづくりセンター前」まで徒歩8分
- 4LDK
-
-
新築一戸建て
2026.01.08
-
-
新築一戸建て
2026.01.09
-
-
- 3,348万円
-
熊本市東区長嶺東5丁目
-
JR豊肥本線「東海学園前駅」バス乗車15分 バス停「託麻まちづくりセンター前」まで徒歩8分
- 4LDK
-
-
新築一戸建て
2026.01.09
-
-
新築一戸建て
2026.01.09
-
-
- 3,298万円
-
熊本市東区八反田2丁目
-
JR豊肥本線「東海学園前駅」まで徒歩31分
- 4LDK
-
-
新築一戸建て
2026.01.09
-
-
新築一戸建て
2026.01.09
-
-
- 3,198万円
-
熊本市東区八反田2丁目
-
JR豊肥本線「東海学園前駅」まで徒歩31分
- 4LDK
-
-
新築一戸建て
2026.01.09
-
-
新築一戸建て
2026.01.11
-
-
- 3,298万円
-
熊本市東区画図町大字下無田
-
九州産交バス中の瀬・東まで徒歩2分
- 4LDK
-
-
新築一戸建て
2026.01.11
-
-
新築一戸建て
2026.01.11
-
-
- 3,398万円
-
熊本市東区八反田1丁目
-
産交バス託麻団地入口まで徒歩3分
- 4LDK
-
-
新築一戸建て
2026.01.11
-
-
新築一戸建て
2026.01.12
-
-
- 3,198万円
-
熊本市東区花立6丁目
-
花立五丁目まで徒歩6分
- 4LDK
-
-
新築一戸建て
2026.01.12
-
-
新築一戸建て
2026.01.12
-
-
- 3,398万円
-
熊本市東区花立6丁目
-
花立五丁目まで徒歩6分
- 4LDK
-
-
新築一戸建て
2026.01.12
-
-
新築一戸建て
2026.01.12
-
-
- 3,298万円
-
熊本市東区花立6丁目
-
花立五丁目まで徒歩6分
- 4LDK
-
-
新築一戸建て
2026.01.12
-
-
新築一戸建て
2026.01.17
-
-
- 3,198万円
-
熊本市東区花立6丁目
-
熊本市健軍線「健軍町駅」まで徒歩35分
- 4LDK
-
-
新築一戸建て
2026.01.17
-
-
新築一戸建て
2026.01.17
-
-
- 3,398万円
-
熊本市東区花立6丁目
-
熊本市健軍線「健軍町駅」まで徒歩35分
- 4LDK
-
-
新築一戸建て
2026.01.17
-
-
新築一戸建て
2026.01.17
-
-
- 3,298万円
-
熊本市東区花立6丁目
-
熊本市健軍線「健軍町駅」まで徒歩35分
- 4LDK
-
-
新築一戸建て
2026.01.17
-
-
新築一戸建て
2026.01.18
-
-
- 3,398万円
-
熊本市東区八反田1丁目
-
JR豊肥本線「東海学園前駅」まで徒歩27分
- 4LDK
-
-
新築一戸建て
2026.01.18
-
-
新築一戸建て
2026.01.19
-
-
- 3,298万円
-
熊本市東区戸島7丁目
-
九州産交バス戸島駐車場前まで徒歩3分
- 4LDK+S
-
-
新築一戸建て
2026.01.19
-
-
新築一戸建て
2026.01.28
-
-
- 3,298万円
-
熊本市東区三郎2丁目
-
JR豊肥本線「東海学園前駅」まで徒歩36分
- 3LDK+S
-
-
新築一戸建て
2026.01.28
-
-
新築一戸建て
2026.01.28
-
-
- 3,288万円
-
熊本市東区新生1丁目
-
熊本市健軍線「健軍交番前駅」まで徒歩5分
- 4LDK
-
-
新築一戸建て
2026.01.28
-
-
新築一戸建て
2026.02.05
-
-
- 3,198万円
-
熊本市東区花立6丁目
-
熊本市健軍線「健軍町駅」まで徒歩35分
- 4LDK
-
-
新築一戸建て
2026.02.05
-
-
新築一戸建て
2026.02.05
-
-
- 3,398万円
-
熊本市東区花立6丁目
-
熊本市健軍線「健軍町駅」まで徒歩35分
- 4LDK
-
-
新築一戸建て
2026.02.05
-
-
新築一戸建て
2026.02.05
-
-
- 3,298万円
-
熊本市東区花立6丁目
-
熊本市健軍線「健軍町駅」まで徒歩35分
- 4LDK
-
-
新築一戸建て
2026.02.05
-
-
新築一戸建て
2026.02.05
-
-
- 3,398万円
-
熊本市東区八反田1丁目
-
JR豊肥本線「東海学園前駅」まで徒歩27分
- 4LDK
-
-
新築一戸建て
2026.02.05
- 熊本県
マイページ物件数 - 2,753件
最近見た物件
-
-

-
- 中古一戸建て
- 2,799万円
-
糟屋郡久山町大字久原
-
中久原
-
熊本県新築一戸建て新着物件
-
-

-
- 新築一戸建て
- 2,598万円
-
熊本市東区戸島3丁目
-
JR豊肥本線武蔵塚駅
-
-
-

-
- 新築一戸建て
- 2,348万円
-
熊本市北区鶴羽田4丁目
-
熊本電気鉄道三ツ石駅
-
-
-

-
- 新築一戸建て
- 2,598万円
-
熊本市北区龍田7丁目
-
JR豊肥本線武蔵塚駅
-
-
-

-
- 新築一戸建て
- 2,398万円
-
熊本市北区鶴羽田4丁目
-
熊本電気鉄道三ツ石駅
-
-
-

-
- 新築一戸建て
- 2,498万円
-
熊本市北区鶴羽田4丁目
-
熊本電気鉄道三ツ石駅
-
-
-

-
- 新築一戸建て
- 2,498万円
-
熊本市北区鶴羽田4丁目
-
熊本電気鉄道三ツ石駅
-
-
-

-
- 新築一戸建て
- 2,498万円
-
熊本市北区植木町広住
-
JR鹿児島本線植木駅
-
- お近くの店舗を探す
-
おすすめ物件
-
-

-
- 新築一戸建て
- 2,580万円
-
熊本市南区御幸笛田1丁目
-
JR豊肥本線南熊本
-
-
-

-
- 新築一戸建て
- 3,298万円
-
熊本市北区清水新地1丁目
-
熊本電気鉄道堀川
-
-
-

-
- 新築一戸建て
- 3,890万円
-
熊本市中央区壺川1丁目
-
熊本電気鉄道藤崎宮前
-
-
-

-
- 新築一戸建て
- 3,090万円
-
熊本市東区月出7丁目
-
JR豊肥本線水前寺
-
-
-

-
- 新築一戸建て
- 2,590万円
-
熊本市南区御幸笛田1丁目
-
JR豊肥本線南熊本
-
-
-

-
- 新築一戸建て
- 3,288万円
-
熊本市西区田崎3丁目
-
熊本市健軍線田崎橋
-
-
-

-
- 新築一戸建て
- 4,090万円
-
熊本市中央区壺川1丁目
-
熊本電気鉄道藤崎宮前
-
-
-

-
- 新築一戸建て
- 3,280万円
-
熊本市東区榎町
-
熊本市健軍線健軍町
-
-
-

-
- 新築一戸建て
- 2,790万円
-
熊本市東区月出7丁目
-
JR豊肥本線水前寺
-
























担当エージェント:堀川 颯太
【月々の支払い例】
3300万円借り入れの場合
月々66,438円(頭金・ボーナス払いなし)
金利0.780%の場合(SBI新生銀行、金利優遇有)
変動金利 返済期間50年
※あくまで一例。条件有。
【周辺環境】
・尾ノ上小学校まで徒歩16分(約1240m)
・錦ケ丘中学校まで徒歩17分(約1290m)
・帯山保育園まで徒歩8分(約580m)
・ファミリーマート 熊本尾ノ上4丁目店まで徒歩6分(約420m)
・スーパー・キッド 新外店まで徒歩5分(約400m)
・熊本鉄砲塚郵便局まで徒歩5分(約360m)
・本庄内科病院まで徒歩7分(約490m)
・月出二丁目公園まで徒歩6分(約440m)
・ゆめマート帯山まで徒歩9分(約710m)
・スターバックスコーヒー 熊本帯山店まで徒歩9分(約680m)
いつでもお気軽にご連絡ください☆彡
お問い合わせは『ハウスドゥ熊本桜町』まで♪