【出縄】収納充実、3LDK新築戸建
NEW 02.02掲載情報更新日:2026年02月02日 次回更新予定日:2026年02月16日
- 3,960万円
-
- 借入ご希望金額
万円 - 借入期間
年 - 借入金利
% - 月々のお支払い金額
円
- 借入ご希望金額
※ 月々のお支払例は目安の試算となりますので、実際の金額とは異なる場合がございます。詳しくは店舗までお問合わせください。
- 平塚市出縄
-
JR東海道本線『平塚』 バス乗車20分 高村団地 停 徒歩5分 (約400m)
【出縄】収納充実、3LDK新築戸建一戸建て | 物件情報
【出縄】収納充実、3LDK新築戸建
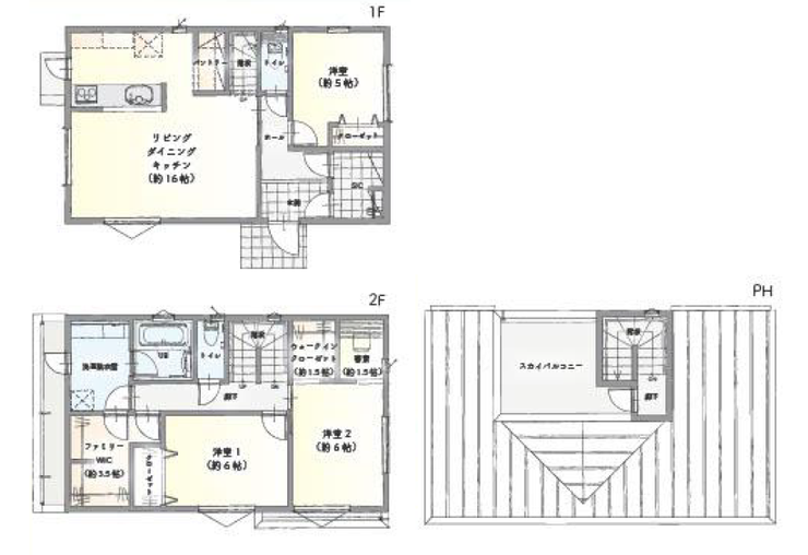
■SIC、キッチンにはパントリー、大型のファミリーWICなど収納豊富
■主寝室には書斎スペース+WIC
■ファミリーWICは洗面所に面しており家事同線〇
■スカイバルコニー付
■小学校、中学校共に徒歩5分圏内
物件の設備
- 電気
- 公営水道
- 公共下水
- プロパンガス
- 個別プロパン
- 食品庫
- カウンターキッチン
- システムキッチン
- 浴室に窓
- トイレ2箇所
- 室内洗濯機置場
- 洗髪洗面化粧台
- LDK15畳以上
- ウォークインクローゼット
- シューズインクローク
- 屋上テラス
物件の特徴
- 小学校徒歩10分以内
- 2階建
物件詳細情報
| 価格 | 3,960万円 | 間取り | 3LDK |
|---|---|---|---|
| 物件種別 | 新築一戸建て | ||
| 所在地 | 神奈川県平塚市出縄 1号棟 | ||
| アクセス |
|
||
| 建物面積 | 公103.5㎡ | 駐車場 | あり |
| 築年月 | 2026年(令和8年)08月予定 | 建築確認 | 第24KAK-確03048号 |
| 建物構造 | 木造 2階建 | 工法 | |
| 主要採光 | バルコニー | ||
| 保証・評価 | |||
| 土地面積 | 公115.25㎡(34.86坪) | 接道 | 北側(公道)幅 約5.7m 間口 約6.30m 東側(私道)幅 約4.5m 間口 約15.30m |
| 私道 | セットバック | ||
| 地目 | 宅地 | 地勢 | |
| 権利 | 所有権 |
||
| 都市計画 | 市街化区域 |
用途地域 | 1種中高 |
| 建ぺい/容積率 | 60% / 180% | 土地国土法 | |
| 許可番号 | 建築基準法 | ||
| 法令制限 | |||
| 小学区 | 勝原小学校 徒歩3分 (約200m) | 中学区 | 山城中学校 徒歩4分 (約260m) |
| 現況 | 建築中 | 引渡 | 期日指定:2026年08月 |
| その他費用 | |||
| 周辺環境 | 勝原小学校 徒歩3分 (約200m) 山城中学校 徒歩4分 (約260m) 育英幼稚園 徒歩4分 (約300m) 高村保育園 徒歩4分 (約270m) しまむらストアー 旭店 徒歩5分 (約400m) クリエイトS・D 根坂間店 徒歩11分 (約842m) |
||
| 備考 | ■SIC、キッチンにはパントリー、大型のファミリーWICなど収納豊富 ■主寝室には書斎スペース+WIC ■ファミリーWICは洗面所に面しており家事同線〇 ■スカイバルコニー付 ■小学校、中学校共に徒歩5分圏内 |
||
| 物件番号 | 4581842 | 取引態様 | 媒介 |
取扱店舗情報
| 電話番号 | 0463-24-8885 |
|---|---|
| 所在地 | 〒254-0073 神奈川県平塚市西八幡2丁目9-1 |
| 営業時間 | 9:00~18:00 |
| 定休日 | 第1・3火曜日、水曜日、年末年始 |
| 宅建免許番号 | 神奈川県知事(3)第28824号 |
| アクセス | 店舗への地図はこちら |

来店ご予約
神奈川県平塚市で価格が似ている物件はこちら
- 神奈川県
マイページ物件数 - 3,186件
最近見た物件
-
-

-
- 中古一戸建て
- 4,498万円
-
栗東市下戸山
-
JR草津線手原
-
-
-

-
- 新築一戸建て
- 3,590万円
-
川口市大字新堀
-
東武伊勢崎・大師線草加
-
-
-

-
- 土地
- 3,380万円
-
茨木市北春日丘4丁目
-
大阪モノレール彩都阪大病院前
-
神奈川県新築一戸建て新着物件
-
-

-
- 新築一戸建て
- 3,300万円
-
愛甲郡愛川町中津
-
小田急小田原線本厚木駅
-
-
-

-
- 新築一戸建て
- 3,960万円
-
平塚市出縄
-
JR東海道本線平塚駅
-
-
-

-
- 新築一戸建て
- 6,498万円
-
横浜市磯子区森が丘2丁目
-
横浜市営地下鉄ブルーライン港南中央駅
-
-
-

-
- 新築一戸建て
- 6,998万円
-
横浜市磯子区森が丘2丁目
-
横浜市営地下鉄ブルーライン港南中央駅
-
-
-

-
- 新築一戸建て
- 3,250万円
-
横浜市磯子区岡村3丁目
-
JR京浜東北・根岸線根岸駅
-
-
-

-
- 新築一戸建て
- 4,390万円
-
厚木市林3丁目
-
小田急小田原線本厚木駅
-
-
-

-
- 新築一戸建て
- 4,090万円
-
厚木市林3丁目
-
小田急小田原線本厚木駅
-
- お近くの店舗を探す
-
おすすめ物件
-
-

-
- 新築一戸建て
- 5,599万円
-
横浜市南区大岡3丁目
-
横浜市営地下鉄ブルーライン弘明寺
-
-
-

-
- 新築一戸建て
- 4,580万円
-
厚木市妻田南1丁目
-
小田急小田原線本厚木
-
-
-

-
- 新築一戸建て
- 2,680万円
-
平塚市公所
-
JR東海道本線平塚
-
-
-

-
- 新築一戸建て
- 6,980万円
-
横浜市中区本郷町3丁目
-
JR京浜東北・根岸線山手
-




ハウスドゥ 湘南平塚(株式会社プレジャー)
[営業時間]9:00~18:00
[定休日]第1週・第3週の火曜日、及び毎週水曜日
JR東海道線「平塚」駅よりバス乗車6分
「八幡」停留所 目の前です。
●店舗前に5台分の駐車スペースがございます。
●平塚駅など近隣地への送迎いたします。
●キッズスペース、授乳室を完備しております。
お子様連れのお客様もご安心してご来店ください。
●すぐにご来店が難しいお客様もお気軽にご相談ください。