高屋町中島
NEW 02.04掲載情報更新日:2026年02月04日 次回更新予定日:2026年02月18日
- 2,980万円
-
- 借入ご希望金額
万円 - 借入期間
年 - 借入金利
% - 月々のお支払い金額
円
- 借入ご希望金額
※ 月々のお支払例は目安の試算となりますので、実際の金額とは異なる場合がございます。詳しくは店舗までお問合わせください。
- 東広島市高屋町中島
-
JR山陽本線『西高屋』 徒歩6分 (約450m)
高屋町中島一戸建て | 物件情報
R8.3月完成♪3台駐車可能!オール電化の新築♪ サンルームやファミリークロークで収納◎
〇おすすめ〇
JR山陽線 西高屋駅まで徒歩6分♪
通勤や通学にも便利な立地です。閑静な住宅♪
駐車3台可能(車種による)なので、来客時も安心ですね。
1Fには小上がりのホビールームがあり、お子様が宿題ができるカウンターも完備!
小さなお子様が居ても安心。お昼寝スペースや遊び場としても大活躍です。
収納も充実しており、2Fにあるファミリークロークは家族みんなが使えるので、季節もの家電やお子様の大切な
作品集などの収納にもおすすめです。
バルコニーとサンルーム両方備えており、用途に合わせて使用できます。
『あったらいいな』が色々詰まったお家です!ぜひ一度ご内覧ください。
物件の特徴
- 2階建
物件詳細情報
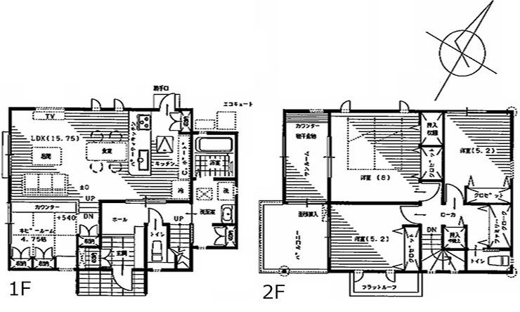
| 価格 | 2,980万円 | 間取り | 4LDK |
|---|---|---|---|
| 物件種別 | 新築一戸建て | ||
| 所在地 | 広島県東広島市高屋町中島 | ||
| アクセス |
|
||
| 建物面積 | 107.64㎡ | 駐車場 | あり 普通:3台 |
| 築年月 | 2026年(令和8年)03月予定 | 建築確認 | 第R07認広建セ00690号 |
| 建物構造 | 木造 2階建 | 工法 | |
| 主要採光 | バルコニー | ||
| 保証・評価 | |||
| 土地面積 | 181.12㎡(54.78坪) | 接道 | |
| 私道 | セットバック | ||
| 地目 | 宅地 | 地勢 | |
| 権利 | 所有権 |
||
| 都市計画 | 市街化区域 |
用途地域 | 1種低層 |
| 建ぺい/容積率 | 40% / 80% | 土地国土法 | |
| 許可番号 | 建築基準法 | ||
| 法令制限 | |||
| 小学区 | 高屋西小学校 徒歩11分 (約850m) | 中学区 | 高屋中学校 徒歩10分 (約750m) |
| 現況 | 建築中 | 引渡 | 期日指定:2026年03月以降 |
| その他費用 | |||
| 周辺環境 | 東広島市立高屋中学校 徒歩10分 (約750m) 宮領簡易郵便局 徒歩6分 (約420m) 西高屋駅 徒歩6分 (約450m) 東広島市立高屋西小学校 徒歩11分 (約850m) 東広島市高屋出張所 徒歩13分 (約980m) 西高屋駅前郵便局 徒歩12分 (約890m) ザグザグ東広島高屋店 徒歩16分 (約1260m) ハローズ高屋店 徒歩16分 (約1270m) マックスバリュー高屋店 徒歩24分 (約1890m) |
||
| 備考 | 省エネ基準適合住宅 制振ダンパー(住友ゴム MAMORY) フラット35S(金利Bプラン)対応 オール電化(エコキュート) 瑕疵担保責任保険(まもりすまい保険) IHクッキングヒーター 食器洗乾燥機 カップボード 浴室乾燥機 勝手口 1F・2Fウォシュレットトイレ オールLow-Eペアガラス アルミ樹脂複合サッシ 玄関ドア電子錠 パーティーキッチン 玄関クローク 3台駐車可 |
||
| 物件番号 | 4584179 | 取引態様 | 媒介 |
取扱店舗情報
ハウスドゥ 八本松正力 株式会社ノア・コーポレーション 店舗詳細ページへ
| 電話番号 | 082-490-3341 |
|---|---|
| 所在地 | 〒739-0132 広島県東広島市八本松町正力1089-6 |
| 営業時間 | 9:00~18:00 |
| 定休日 | 水曜日、年末年始 |
| 宅建免許番号 | 広島県知事(1)第11474号 |
| アクセス | 店舗への地図はこちら |

来店ご予約
広島県東広島市で価格が似ている物件はこちら
- 広島県
マイページ物件数 - 4,974件
最近見た物件
-
-

-
- 中古一戸建て
- 1,980万円
-
宇都宮市駒生町
-
東武宇都宮線東武宇都宮
-
-
-

-
- 中古一戸建て
- 4,030万円
-
旭川市忠和六条2丁目
-
JR函館本線近文
-
-
-

-
- 新築一戸建て
- 2,590万円
-
宇都宮市野沢町
-
東武宇都宮線東武宇都宮
-
広島県新築一戸建て新着物件
- お近くの店舗を探す
-
おすすめ物件
-
-

-
- 新築一戸建て
- 3,080万円
-
福山市今津町3丁目
-
JR山陽本線松永
-
-
-

-
- 新築一戸建て
- 2,890万円
-
福山市山手町3丁目
-
JR福塩線備後本庄
-
-
-

-
- 新築一戸建て
- 3,090万円
-
福山市新涯町4丁目
-
JR山陽本線福山
-
-
-

-
- 新築一戸建て
- 3,580万円
-
福山市長者町
-
JR福塩線備後本庄
-
-
-

-
- 新築一戸建て
- 3,390万円
-
福山市新涯町4丁目
-
JR山陽本線福山
-
-
-

-
- 新築一戸建て
- 2,580万円
-
福山市新涯町4丁目
-
JR山陽本線東福山
-
-
-

-
- 新築一戸建て
- 3,280万円
-
福山市本庄町中3丁目
-
JR福塩線備後本庄
-
-
-

-
- 新築一戸建て
- 3,850万円
-
福山市水呑町三新田1丁目
-
JR山陽本線福山
-
-
-

-
- 新築一戸建て
- 2,580万円
-
福山市新涯町4丁目
-
JR山陽本線東福山
-
-
-

-
- 新築一戸建て
- 2,880万円
-
福山市手城町2丁目
-
JR山陽本線東福山
-














