さいたま市桜区南元宿1丁目の新築戸建
NEW 02.06掲載情報更新日:2026年02月06日 次回更新予定日:2026年02月20日
- 5,398万円
-
- 借入ご希望金額
万円 - 借入期間
年 - 借入金利
% - 月々のお支払い金額
円
- 借入ご希望金額
※ 月々のお支払例は目安の試算となりますので、実際の金額とは異なる場合がございます。詳しくは店舗までお問合わせください。
- さいたま市桜区南元宿1丁目
-
JR埼京線『中浦和』 徒歩15分 (約1200m)
JR埼京線『南与野』 徒歩17分 (約1360m)
さいたま市桜区南元宿1丁目一戸建て | 物件情報
◇土地面積約24坪!◇カースペース1台◇4LDK◇住宅ローン相談乗ります!
まずは私たちにご連絡ください!どんな些細なことでも力になります!
◇住宅ローン相談◇
「他社で断られた」
「審査が通らない」
「返済をできるだけ抑えたい」
そんなお悩みもぜひお聞かせください。
お客様一人ひとりに寄り添い、これからの暮らしを見据えた“最適なご提案”をいたします。
◇現地見学会開催中◇
平日や仕事終わりの夜でも「今日見てみたい!」そんなときでもOK♪
お電話1本でスタッフがすぐに駆けつけます!
048-762-8871こちらから
◇ご案内方法◇
ご来店いただかなくても、現地待ち合わせ・自宅、最寄りまでの送迎サービスで柔軟に対応!周辺環境や他にも見たい物件もあわせてご案内できます!
◇ご来店方法◇
ナビで「ハウスドゥさいたま北宿通り」で検索♪
ローソンストア100に駐車場に4台駐車可能!
手ぶらでOK!キッズスペース完備でお子様ずれでも問題なし!
◇売却査定相談◇
「急な転勤」「相続による売却」「金銭的な理由」など住まいの売却をそれぞれです。
仲介はもちろんのこと、弊社独自のネットワークで買取案件もご相談できます!
物件の設備
- 電気
- 公営水道
- 下水道
- 公共下水
- 都市ガス
- 給湯
- 食器洗浄乾燥機
- カウンターキッチン
- システムキッチン
- 浴室乾燥機
- トイレ
- トイレ2箇所
- 温水洗浄便座
- 室内洗濯機置場
- シューズボックス
- バルコニー
- 2面バルコニー
物件の特徴
- 全室南向
- 小学校徒歩10分以内
- 前道6m以上
- 3階建以上
- 整形地
- フラット35
- S適合証明書
- BELS/省エネ基準適合
- 即入居可
- フラット35Sに対応
物件詳細情報
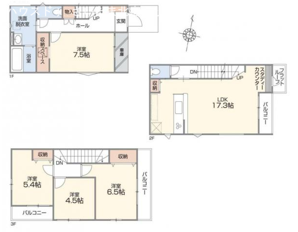
| 価格 | 5,398万円 | 間取り | 4LDK |
|---|---|---|---|
| 物件種別 | 新築一戸建て | ||
| 所在地 | 埼玉県さいたま市桜区南元宿1丁目 3 | ||
| アクセス |
|
||
| 建物面積 | 実109.3㎡ | 駐車場 | あり 普通:1台 |
| 築年月 | 2025年(令和7年)12月築 | 建築確認 | 第25UDI1W建05941号 |
| 建物構造 | 木造 3階建 | 工法 | |
| 主要採光 | 東向 | バルコニー | |
| 保証・評価 | フラット35S適合証明書 |
||
| 分譲情報 | |||
| 土地面積 | 実81.28㎡(24.58坪) | 接道 | 北東側(公道)幅 約7.5m |
| 私道 | セットバック | ||
| 地目 | 宅地 | 地勢 | |
| 権利 | 所有権 |
||
| 都市計画 | 市街化区域 |
用途地域 | 1種住居 |
| 建ぺい/容積率 | 60% / 200% | 土地国土法 | |
| 許可番号 | 建築基準法 | ||
| 法令制限 | 法22条区域・さいたま市景観条例・景観計画区域 | ||
| 小学区 | 土合小学校 徒歩5分 (約340m) | 中学区 | 土合中学校 徒歩9分 (約680m) |
| 現況 | 空 | 引渡 | 即 |
| その他費用 | |||
| 周辺環境 | さいたま市立土合小学校 徒歩5分 (約340m) さいたま市立土合中学校 徒歩9分 (約680m) |
||
| 備考 | |||
| 物件番号 | 4586894 | 取引態様 | 媒介 |
取扱店舗情報
ハウスドゥ さいたま北宿通り 株式会社アークウェイホーム 店舗詳細ページへ
| 電話番号 | 048-762-8871 |
|---|---|
| 所在地 | 〒336-0907 埼玉県さいたま市緑区道祖土1丁目26-5 |
| 営業時間 | 9:00~18:00 |
| 定休日 | 水曜日 |
| 宅建免許番号 | 埼玉県知事(1)第25521号 |
| アクセス | 店舗への地図はこちら |

来店ご予約
埼玉県さいたま市桜区で価格が似ている物件はこちら
- 埼玉県
マイページ物件数 - 3,121件
最近見た物件
-
-

-
- 新築一戸建て
- 3,078万円
-
松山市久米窪田町
-
伊予鉄道横河原線鷹ノ子
-
埼玉県新築一戸建て新着物件
-
-

-
- 新築一戸建て
- 4,198万円
-
川口市芝中田2丁目
-
JR京浜東北・根岸線蕨駅
-
-
-

-
- 新築一戸建て
- 4,598万円
-
川口市芝中田2丁目
-
JR京浜東北・根岸線蕨駅
-
-
-

-
- 新築一戸建て
- 3,598万円
-
さいたま市岩槻区西原台2丁目
-
東武野田線岩槻駅
-
-
-

-
- 新築一戸建て
- 3,790万円
-
川越市川鶴2丁目
-
JR川越線笠幡駅
-
-
-

-
- 新築一戸建て
- 3,698万円
-
さいたま市岩槻区西原台2丁目
-
東武野田線岩槻駅
-
-
-

-
- 新築一戸建て
- 3,498万円
-
さいたま市岩槻区西原台2丁目
-
東武野田線岩槻駅
-
-
-

-
- 新築一戸建て
- 3,280万円
-
川越市砂新田5丁目
-
東武東上線新河岸駅
-
- お近くの店舗を探す
-
おすすめ物件
-
-

-
- 新築一戸建て
- 4,790万円
-
蕨市南町3丁目
-
JR京浜東北・根岸線西川口
-
-
-

-
- 新築一戸建て
- 5,380万円
-
蕨市南町2丁目
-
JR京浜東北・根岸線蕨
-
-
-

-
- 新築一戸建て
- 4,580万円
-
戸田市笹目2丁目
-
JR埼京線戸田
-
-
-

-
- 新築一戸建て
- 4,499万円
-
蕨市中央7丁目
-
JR京浜東北・根岸線蕨
-
-
-

-
- 新築一戸建て
- 2,990万円
-
越谷市大成町7丁目
-
JR武蔵野線越谷レイクタウン
-
-
-

-
- 新築一戸建て
- 3,780万円
-
越谷市東越谷6丁目
-
東武伊勢崎・大師線越谷
-
-
-

-
- 新築一戸建て
- 5,788万円
-
越谷市瓦曽根1丁目
-
東武伊勢崎・大師線越谷
-
-
-

-
- 新築一戸建て
- 2,780万円
-
三郷市彦成1丁目
-
JR武蔵野線新三郷
-
-
-

-
- 新築一戸建て
- 3,180万円
-
蕨市北町5丁目
-
JR埼京線戸田
-
-
-

-
- 新築一戸建て
- 5,880万円
-
戸田市下戸田1丁目
-
JR埼京線戸田公園
-









担当エージェント:笠井 航汰
~☆☆当日で案内可能な物件☆☆~さいたまの土地、戸建て、マンションのご相談はハウスドゥさいたま北宿通りにお気軽にお問い合わせ下さい!!