さいたま市桜区南元宿1丁目の新築戸建
NEW 02.06掲載情報更新日:2026年02月06日 次回更新予定日:2026年02月20日
- 4,898万円
-
- 借入ご希望金額
万円 - 借入期間
年 - 借入金利
% - 月々のお支払い金額
円
- 借入ご希望金額
※ 月々のお支払例は目安の試算となりますので、実際の金額とは異なる場合がございます。詳しくは店舗までお問合わせください。
- さいたま市桜区南元宿1丁目
-
JR埼京線『中浦和』 徒歩15分 (約1200m)
JR埼京線『南与野』 徒歩17分 (約1360m)
さいたま市桜区南元宿1丁目一戸建て | 物件情報
◇土地面積約23坪!◇カースペース1台◇4LDK◇住宅ローン相談乗ります!
まずは私たちにご連絡ください!どんな些細なことでも力になります!
◇住宅ローン相談◇
「他社で断られた」
「審査が通らない」
「返済をできるだけ抑えたい」
そんなお悩みもぜひお聞かせください。
お客様一人ひとりに寄り添い、これからの暮らしを見据えた“最適なご提案”をいたします。
◇現地見学会開催中◇
平日や仕事終わりの夜でも「今日見てみたい!」そんなときでもOK♪
お電話1本でスタッフがすぐに駆けつけます!
048-762-8871こちらから
◇ご案内方法◇
ご来店いただかなくても、現地待ち合わせ・自宅、最寄りまでの送迎サービスで柔軟に対応!周辺環境や他にも見たい物件もあわせてご案内できます!
◇ご来店方法◇
ナビで「ハウスドゥさいたま北宿通り」で検索♪
ローソンストア100に駐車場に4台駐車可能!
手ぶらでOK!キッズスペース完備でお子様ずれでも問題なし!
◇売却査定相談◇
「急な転勤」「相続による売却」「金銭的な理由」など住まいの売却をそれぞれです。
仲介はもちろんのこと、弊社独自のネットワークで買取案件もご相談できます!
物件の設備
- 電気
- 公営水道
- 下水道
- 公共下水
- 都市ガス
- 給湯
- 浄水器
- 食器洗浄乾燥機
- コンロ三口
- ガスコンロ付
- カウンターキッチン
- システムキッチン
- ユニットバス
- オートバス
- バスサイズ1620
- 追焚機能
- 浴室乾燥機
- トイレ
- トイレ2箇所
- 温水洗浄便座
- 室内洗濯機置場
- 洗髪洗面化粧台
- モニタ付インターホン
- 床下収納
- 全居室収納
- シューズボックス
- バルコニー
- 2面バルコニー
物件の特徴
- 全室南向
- 耐震構造
- 小学校徒歩10分以内
- 前道6m以上
- 3階建以上
- 整形地
- フラット35
- S適合証明書
- BELS/省エネ基準適合
- 即入居可
- フラット35Sに対応
物件詳細情報
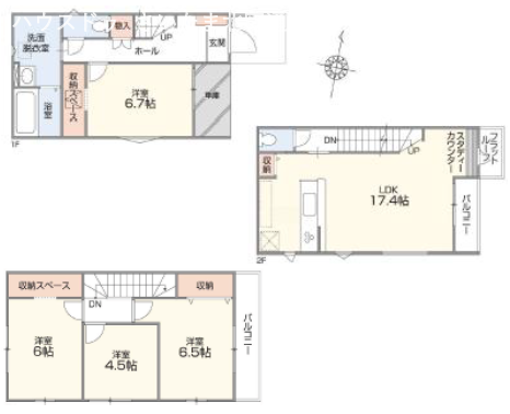
| 価格 | 4,898万円 | 間取り | 4LDK |
|---|---|---|---|
| 物件種別 | 新築一戸建て | ||
| 所在地 | 埼玉県さいたま市桜区南元宿1丁目 2 | ||
| アクセス |
|
||
| 建物面積 | 実111.78㎡ | 駐車場 | あり 普通:1台 |
| 築年月 | 2025年(令和7年)12月築 | 建築確認 | 第25UDI1W建05940号 |
| 建物構造 | 木造 3階建 | 工法 | |
| 主要採光 | 東向 | バルコニー | |
| 保証・評価 | フラット35S適合証明書 |
||
| 分譲情報 | |||
| 土地面積 | 実76.57㎡(23.16坪) | 接道 | 北東側(公道)幅 約7.5m |
| 私道 | セットバック | ||
| 地目 | 宅地 | 地勢 | |
| 権利 | 所有権 |
||
| 都市計画 | 市街化区域 |
用途地域 | 1種住居 |
| 建ぺい/容積率 | 60% / 200% | 土地国土法 | |
| 許可番号 | 建築基準法 | ||
| 法令制限 | 法22条区域・さいたま市景観条例・景観計画区域 | ||
| 小学区 | 土合小学校 徒歩5分 (約340m) | 中学区 | 土合中学校 徒歩9分 (約680m) |
| 現況 | 空 | 引渡 | 即 |
| その他費用 | |||
| 周辺環境 | さいたま市立土合小学校 徒歩5分 (約340m) さいたま市立土合中学校 徒歩9分 (約680m) |
||
| 備考 | |||
| 物件番号 | 4587014 | 取引態様 | 媒介 |
取扱店舗情報
ハウスドゥ さいたま北宿通り 株式会社アークウェイホーム 店舗詳細ページへ
| 電話番号 | 048-762-8871 |
|---|---|
| 所在地 | 〒336-0907 埼玉県さいたま市緑区道祖土1丁目26-5 |
| 営業時間 | 9:00~18:00 |
| 定休日 | 水曜日 |
| 宅建免許番号 | 埼玉県知事(1)第25521号 |
| アクセス | 店舗への地図はこちら |

来店ご予約
- 埼玉県
マイページ物件数 - 3,238件
最近見た物件
-
-

-
- 土地
- 950万円
-
下都賀郡壬生町緑町2丁目
-
東武宇都宮線おもちゃのまち
-
-
-

-
- 新築一戸建て
- 4,198万円
-
高槻市大塚町2丁目
-
阪急電鉄京都線高槻市
-
埼玉県新築一戸建て新着物件
-
-

-
- 新築一戸建て
- 3,890万円
-
川口市大字安行慈林
-
埼玉高速鉄道新井宿駅
-
-
-

-
- 新築一戸建て
- 3,180万円
-
さいたま市岩槻区城南1丁目
-
東武野田線岩槻駅
-
-
-

-
- 新築一戸建て
- 3,380万円
-
さいたま市岩槻区城南1丁目
-
東武野田線岩槻駅
-
-
-

-
- 新築一戸建て
- 3,480万円
-
さいたま市岩槻区城南1丁目
-
東武野田線岩槻駅
-
-
-

-
- 新築一戸建て
- 3,790万円
-
さいたま市桜区道場1丁目
-
JR埼京線中浦和駅
-
-
-

-
- 新築一戸建て
- 3,990万円
-
さいたま市桜区大字上大久保
-
JR京浜東北・根岸線北浦和駅
-
-
-

-
- 新築一戸建て
- 3,790万円
-
さいたま市桜区大字上大久保
-
JR京浜東北・根岸線北浦和駅
-
- お近くの店舗を探す
-
おすすめ物件
-
-

-
- 新築一戸建て
- 4,499万円
-
蕨市中央7丁目
-
JR京浜東北・根岸線蕨
-
-
-

-
- 新築一戸建て
- 3,100万円
-
東松山市新宿町
-
東武東上線東松山
-
-
-

-
- 新築一戸建て
- 2,680万円
-
吉川市吉川1丁目
-
JR武蔵野線吉川
-
-
-

-
- 新築一戸建て
- 3,680万円
-
越谷市東越谷6丁目
-
東武伊勢崎・大師線越谷
-
-
-

-
- 新築一戸建て
- 4,890万円
-
戸田市喜沢2丁目
-
JR京浜東北・根岸線西川口
-
-
-

-
- 新築一戸建て
- 3,180万円
-
蕨市北町5丁目
-
JR埼京線戸田
-
-
-

-
- 新築一戸建て
- 4,580万円
-
戸田市笹目2丁目
-
JR埼京線戸田
-
-
-

-
- 新築一戸建て
- 3,680万円
-
越谷市大字大林
-
東武伊勢崎・大師線北越谷
-
-
-

-
- 新築一戸建て
- 5,580万円
-
蕨市北町5丁目
-
JR埼京線北戸田
-
-
-

-
- 新築一戸建て
- 5,490万円
-
戸田市喜沢2丁目
-
JR京浜東北・根岸線西川口
-









担当エージェント:笠井 航汰
~☆☆当日で案内可能な物件☆☆~さいたまの土地、戸建て、マンションのご相談はハウスドゥさいたま北宿通りにお気軽にお問い合わせ下さい!!