合志市栄の新築戸建
NEW 02.08掲載情報更新日:2026年02月02日 次回更新予定日:2026年02月16日
- 4,780万円
-
- 借入ご希望金額
万円 - 借入期間
年 - 借入金利
% - 月々のお支払い金額
円
- 借入ご希望金額
※ 月々のお支払例は目安の試算となりますので、実際の金額とは異なる場合がございます。詳しくは店舗までお問合わせください。
- 合志市栄
-
熊本電気鉄道『御代志』 徒歩33分 (約2600m)
『百花園ゴルフ場前』 徒歩5分 (約400m)
合志市栄一戸建て | 物件情報
《一気見ツアー今すぐOK》☆仲介手数料無料物件(149万円相当がお得!)お気軽にお問合せください♪
【内覧ツアー×最安値保証】ネットの物件、すべて当社で紹介可能!交渉力で「理想の価格」を叶えます
当社は通常かかる仲介手数料(物件価格の3%+6万円)が無料(例:3000万円の場合、90万円相当)
売主様への価格交渉も得意なので、どこよりもお安くご購入いただけるよう徹底サポートします!
他社様でお見積もりを取った後でも大丈夫!もっと安く買えるのでは?そんな悩みは当社が解決します
【内覧ツアー】
熊本県内全域の気になる物件をすべて当社でご内覧いただける『内覧ツアー』を実施中☆
新築・中古・中古マンションも!見学されたい物件を1日で内覧可能♪
窓口を一つに絞れるから、手間も時間もかかりません。
【最安値保証】
\最 安 値 徹 底 宣 言/
他社様よりも必ずお得にご購入いただけることをお約束します
当社ではオプション費用(エアコン、網戸、太陽光等)もお客様に代わり相見積もりします
トータルの費用が100万円以上変わることも!
全国700店舗以上展開!
ハウスドゥだからこその豊富な物件数・情報量でお客様のお家選びをトータルサポートいたします!
物件の設備
- 電気
- 上水道
- 公営水道
- 下水道
- 公共下水
- プロパンガス
- 個別プロパン
- 給湯
- 浄水器
- コンロ三口
- グリル
- ガスコンロ付
- カウンターキッチン
- システムキッチン
- バス
- ユニットバス
- オートバス
- バス1坪以上
- 追焚機能
- 浴室に窓
- トイレ
- 室内洗濯機置場
- 洗髪洗面化粧台
- 洗面所独立
- 室内物干機
- エアコン
- ダウンライト
- 太陽光発電システム
- 省エネ給湯器
- ディンプルキー
- ダブルロックキー
- モニタ付インターホン
- 火災警報器/報知機
- LDK18畳以上
- 和室
- 2面採光
- 複層ガラス
- 全居室複層ガラス
- フローリング
- 一部フローリング
- クローゼット3箇所
- ウォークインクローゼット
- 床下収納
- シューズボックス
- ウッドデッキ
物件の特徴
- 南向
- 耐震構造
- 2沿線利用可
- 前道6m以上
- 南側道路面す
- 緑豊かな住宅地
- ゴルフ場が近い
- 閑静な住宅街
- 通風良好
- 陽当り良好
- 2階建
- 角地
- 長期優良住宅
- BELS/省エネ基準適合
- 即入居可
物件詳細情報
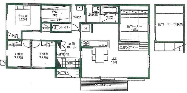
| 価格 | 4,780万円 | 間取り | 4LDK |
|---|---|---|---|
| 物件種別 | 新築一戸建て | ||
| 所在地 | 熊本県合志市栄沖野2210番36付近 12ー7 | ||
| アクセス |
|
||
| 建物面積 | 96.88㎡ | 駐車場 | あり 普通:2台 |
| 築年月 | 2025年(令和7年)07月築 | 建築確認 | |
| 建物構造 | 木造 2階建 | 工法 | |
| 主要採光 | 南向 | バルコニー | |
| 保証・評価 | 長期優良住宅認定通知書 |
||
| 土地面積 | 211.81㎡(64.07坪) | 接道 | 南側幅 約6.0m |
| 私道 | セットバック | ||
| 地目 | 宅地 | 地勢 | |
| 権利 | 所有権 |
||
| 都市計画 | 調整区域 開発許可等による分譲地内 |
用途地域 | 指定無 |
| 建ぺい/容積率 | 50% / 80% | 土地国土法 | |
| 許可番号 | 建築基準法 | ||
| 法令制限 | |||
| 小学区 | 合志小学校 徒歩39分 (約3100m) | 中学区 | 合志中学校 徒歩35分 (約2800m) |
| 現況 | 完工済 | 引渡 | 即 |
| その他費用 | |||
| 周辺環境 | 合志小学校 徒歩39分 (約3100m) 合志中学校 徒歩35分 (約2800m) 栄保育園 徒歩2分 (約120m) ヤマザキYショップMG辻久保店 徒歩9分 (約720m) ゆめマート合志店 徒歩10分 (約780m) 宮川内科医院 徒歩7分 (約490m) 辻久保簡易郵便局 徒歩14分 (約1110m) マツモトキヨシ ゆめモール合志店 徒歩11分 (約820m) 百花園ゴルフ場 徒歩15分 (約1200m) JA菊池農産物市場 きくちのまんま合志店 徒歩25分 (約1960m) |
||
| 備考 | ・合志小学校まで徒歩39分(約3100m) ・合志中学校まで徒歩35分(約2800m) ・栄保育園まで徒歩2分(約120m) ・ヤマザキYショップMG辻久保店まで徒歩9分(約720m) ・ゆめマート合志店まで徒歩10分(約780m) ・宮川内科医院まで徒歩7分(約490m) ・辻久保簡易郵便局まで徒歩14分(約1110m) ・ドラッグストア マツモトキヨシ ゆめモール合志店まで徒歩11分(約820m) ・百花園ゴルフ場まで徒歩15分(約1200m) ・JA菊池農産物市場 きくちのまんま合志店まで徒歩25分(約1960m) |
||
| 物件番号 | 4590944 | 取引態様 | 媒介 |
取扱店舗情報
ハウスドゥ 熊本桜町 株式会社Remado 店舗詳細ページへ
| 電話番号 | 096-274-4665 |
|---|---|
| 所在地 | 〒860-0805 熊本県熊本市中央区桜町1-25 |
| 営業時間 | 10:00~18:00 |
| 定休日 | 年末年始, 夏季休暇(お盆) |
| 宅建免許番号 | 熊本県知事(1)第5556号 |
| アクセス | 店舗への地図はこちら |

来店ご予約
熊本県合志市で価格が似ている物件はこちら
- 熊本県
マイページ物件数 - 2,971件
熊本県新築一戸建て新着物件
-
-

-
- 新築一戸建て
- 3,488万円
-
菊池郡大津町大字杉水
-
JR豊肥本線肥後大津駅
-
-
-

-
- 新築一戸建て
- 2,898万円
-
菊池郡大津町大字吹田
-
JR豊肥本線肥後大津駅
-
-
-

-
- 新築一戸建て
- 3,688万円
-
菊池郡菊陽町大字原水
-
JR豊肥本線原水駅
-
-
-

-
- 新築一戸建て
- 3,288万円
-
菊池郡菊陽町武蔵ヶ丘2丁目
-
JR豊肥本線武蔵塚駅
-
-
-

-
- 新築一戸建て
- 3,588万円
-
菊池郡菊陽町大字原水
-
JR豊肥本線原水駅
-
-
-

-
- 新築一戸建て
- 2,778万円
-
合志市御代志
-
熊本電気鉄道御代志駅
-
-
-

-
- 新築一戸建て
- 3,168万円
-
熊本市北区八景水谷1丁目
-
熊本電気鉄道堀川駅
-
- お近くの店舗を探す
-
おすすめ物件
-
-

-
- 新築一戸建て
- 3,690万円
-
熊本市中央区壺川1丁目
-
熊本電気鉄道藤崎宮前
-
-
-

-
- 新築一戸建て
- 2,580万円
-
熊本市南区御幸笛田1丁目
-
JR豊肥本線南熊本
-
-
-

-
- 新築一戸建て
- 3,090万円
-
熊本市東区月出7丁目
-
JR豊肥本線水前寺
-
-
-

-
- 新築一戸建て
- 3,298万円
-
熊本市北区清水新地1丁目
-
熊本電気鉄道堀川
-
-
-

-
- 新築一戸建て
- 2,590万円
-
熊本市南区御幸笛田1丁目
-
JR豊肥本線南熊本
-
-
-

-
- 新築一戸建て
- 3,288万円
-
熊本市西区田崎3丁目
-
熊本市健軍線田崎橋
-
-
-

-
- 新築一戸建て
- 3,890万円
-
熊本市中央区壺川1丁目
-
熊本電気鉄道藤崎宮前
-
-
-

-
- 新築一戸建て
- 3,280万円
-
熊本市東区榎町
-
熊本市健軍線健軍町
-























担当エージェント:藤原 章裕
【月々の支払い例】
4800万円借り入れの場合
月々96,637円(頭金・ボーナス払いなし)
金利0.780%の場合(SBI新生銀行、金利優遇有)
変動金利 返済期間50年
※あくまで一例。条件有。
【周辺環境】
・合志小学校まで徒歩39分(約3100m)
・合志中学校まで徒歩35分(約2800m)
・栄保育園まで徒歩2分(約120m)
・ヤマザキYショップMG辻久保店まで徒歩9分(約720m)
・ゆめマート合志店まで徒歩10分(約780m)
・宮川内科医院まで徒歩7分(約490m)
・辻久保簡易郵便局まで徒歩14分(約1110m)
・ドラッグストア マツモトキヨシ ゆめモール合志店まで徒歩11分(約820m)
・百花園ゴルフ場まで徒歩15分(約1200m)
・JA菊池農産物市場 きくちのまんま合志店まで徒歩25分(約1960m)
いつでもお気軽にご連絡ください☆彡
お問い合わせは『ハウスドゥ熊本桜町』まで♪