八代市永碇町の新築戸建
NEW 02.08掲載情報更新日:2026年02月09日 次回更新予定日:2026年02月23日
- 3,650万円
-
- 借入ご希望金額
万円 - 借入期間
年 - 借入金利
% - 月々のお支払い金額
円
- 借入ご希望金額
※ 月々のお支払例は目安の試算となりますので、実際の金額とは異なる場合がございます。詳しくは店舗までお問合わせください。
- 八代市永碇町
-
JR鹿児島本線『新八代』 車13分(約5.0km)
『永碇北』 徒歩8分 (約640m)
八代市永碇町一戸建て | 物件情報
《一気見ツアー今すぐOK》☆仲介手数料無料物件(115万円相当がお得!)お気軽にお問合せください♪
【内覧ツアー×最安値保証】ネットの物件、すべて当社で紹介可能!交渉力で「理想の価格」を叶えます
当社は通常かかる仲介手数料(物件価格の3%+6万円)が無料(例:3000万円の場合、90万円相当)
売主様への価格交渉も得意なので、どこよりもお安くご購入いただけるよう徹底サポートします!
他社様でお見積もりを取った後でも大丈夫!もっと安く買えるのでは?そんな悩みは当社が解決します
【内覧ツアー】
熊本県内全域の気になる物件をすべて当社でご内覧いただける『内覧ツアー』を実施中☆
新築・中古・中古マンションも!見学されたい物件を1日で内覧可能♪
窓口を一つに絞れるから、手間も時間もかかりません。
【最安値保証】
\最 安 値 徹 底 宣 言/
他社様よりも必ずお得にご購入いただけることをお約束します
当社ではオプション費用(エアコン、網戸、太陽光等)もお客様に代わり相見積もりします
トータルの費用が100万円以上変わることも!
全国700店舗以上展開!
ハウスドゥだからこその豊富な物件数・情報量でお客様のお家選びをトータルサポートいたします!
物件の設備
- 電気
- 上水道
- 公営水道
- 下水道
- 公共下水
- プロパンガス
- 個別プロパン
- 給湯
- 浄水器
- 食品庫
- コンロ三口
- グリル
- ガスコンロ付
- カウンターキッチン
- システムキッチン
- バス
- ユニットバス
- オートバス
- バス1坪以上
- 追焚機能
- 浴室に窓
- トイレ
- トイレ2箇所
- 温水洗浄便座
- 室内洗濯機置場
- 洗髪洗面化粧台
- 洗面所独立
- 室内物干機
- エアコン2基
- ダウンライト
- 太陽光発電システム
- 省エネ給湯器
- ディンプルキー
- ダブルロックキー
- モニタ付インターホン
- 火災警報器/報知機
- LDK15畳以上
- 2面採光
- 複層ガラス
- 全居室複層ガラス
- フローリング
- 全室フローリング
- 24時間換気システム
- クローゼット
- ウォークインクローゼット
- 床下収納
- シューズボックス
- ウッドデッキ
物件の特徴
- 耐震構造
- 2沿線利用可
- 前道6m以上
- 南側道路面す
- 緑豊かな住宅地
- 閑静な住宅街
- 通風良好
- 陽当り良好
- 2階建
- 長期優良住宅
- BELS/省エネ基準適合
- 即入居可
物件詳細情報
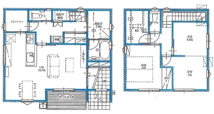
| 価格 | 3,650万円 | 間取り | 3LDK |
|---|---|---|---|
| 物件種別 | 新築一戸建て | ||
| 所在地 | 熊本県八代市永碇町古閑割783番3付近 3号地 | ||
| アクセス |
|
||
| 建物面積 | 95.63㎡ | 駐車場 | あり 普通:2台 |
| 築年月 | 2025年(令和7年)09月築 | 建築確認 | |
| 建物構造 | 木造 2階建 | 工法 | |
| 主要採光 | 南西向 | バルコニー | |
| 保証・評価 | 長期優良住宅認定通知書 |
||
| 土地面積 | 176.65㎡(53.43坪) | 接道 | 南側幅 約6.1m |
| 私道 | セットバック | ||
| 地目 | 宅地 | 地勢 | |
| 権利 | 所有権 |
||
| 都市計画 | 用途地域 | 2種中高 | |
| 建ぺい/容積率 | 60% / 200% | 土地国土法 | |
| 許可番号 | 建築基準法 | ||
| 法令制限 | |||
| 小学区 | 松高小学校 徒歩10分 (約800m) | 中学区 | 第一中学校 徒歩22分 (約1720m) |
| 現況 | 完工済 | 引渡 | 即 |
| その他費用 | |||
| 周辺環境 | 松高小学校 徒歩10分 (約800m) 第一中学校 徒歩22分 (約1720m) 八代市立松高幼稚園 徒歩4分 (約280m) セブンイレブン 八代松高小学校前店 徒歩7分 (約540m) 業務スーパー 八代永碇町店 徒歩9分 (約660m) くはら循環器内科・皮フ科 徒歩20分 (約1580m) 八代横手郵便局 徒歩19分 (約1490m) スーパーキッド八代古閑中店 徒歩18分 (約1430m) 肥後銀行 田中町支店 徒歩15分 (約1160m) ドラッグストアコスモス 古閑中店 徒歩17分 (約1330m) |
||
| 備考 | ・松高小学校まで徒歩10分(約800m) ・第一中学校まで徒歩22分(約1720m) ・八代市立松高幼稚園まで徒歩4分(約280m) ・セブンイレブン 八代松高小学校前店まで徒歩7分(約540m) ・業務スーパー 八代永碇町店まで徒歩9分(約660m) ・くはら循環器内科・皮フ科まで徒歩20分(約1580m) ・八代横手郵便局まで徒歩19分(約1490m) ・スーパーキッド八代古閑中店まで徒歩18分(約1430m) ・肥後銀行 田中町支店まで徒歩15分(約1160m) ・コスモス古閑中店まで徒歩17分(約1330m) |
||
| 物件番号 | 4590955 | 取引態様 | 媒介 |
取扱店舗情報
ハウスドゥ 熊本桜町 株式会社Remado 店舗詳細ページへ
| 電話番号 | 096-274-4665 |
|---|---|
| 所在地 | 〒860-0805 熊本県熊本市中央区桜町1-25 |
| 営業時間 | 10:00~18:00 |
| 定休日 | 年末年始, 夏季休暇(お盆) |
| 宅建免許番号 | 熊本県知事(1)第5556号 |
| アクセス | 店舗への地図はこちら |

来店ご予約
熊本県八代市で価格が似ている物件はこちら
- 熊本県
マイページ物件数 - 2,989件
最近見た物件
-
-

-
- 中古一戸建て
- 3,199万円
-
松戸市根木内
-
JR千代田・常磐緩行線北小金
-
熊本県新築一戸建て新着物件
-
-

-
- 新築一戸建て
- 3,288万円
-
熊本市東区水源2丁目
-
熊本市健軍線健軍交番前駅
-
-
-

-
- 新築一戸建て
- 3,188万円
-
熊本市東区水源2丁目
-
熊本市健軍線健軍交番前駅
-
-
-

-
- 新築一戸建て
- 3,088万円
-
熊本市東区水源2丁目
-
熊本市健軍線健軍交番前駅
-
-
-

-
- 新築一戸建て
- 3,388万円
-
熊本市東区水源2丁目
-
熊本市健軍線健軍交番前駅
-
-
-

-
- 新築一戸建て
- 3,198万円
-
熊本市南区元三町1丁目
-
JR鹿児島本線川尻駅
-
-
-

-
- 新築一戸建て
- 3,288万円
-
合志市須屋
-
熊本電気鉄道黒石駅
-
-
-

-
- 新築一戸建て
- 3,290万円
-
熊本市北区楠6丁目
-
JR豊肥本線武蔵塚駅
-
- お近くの店舗を探す
-
おすすめ物件
-
-

-
- 新築一戸建て
- 3,890万円
-
熊本市中央区壺川1丁目
-
熊本電気鉄道藤崎宮前
-
-
-

-
- 新築一戸建て
- 3,298万円
-
熊本市北区清水新地1丁目
-
熊本電気鉄道堀川
-
-
-

-
- 新築一戸建て
- 3,080万円
-
熊本市東区榎町
-
熊本市健軍線健軍町
-
-
-

-
- 新築一戸建て
- 3,090万円
-
熊本市東区月出7丁目
-
JR豊肥本線水前寺
-
-
-

-
- 新築一戸建て
- 2,580万円
-
熊本市南区御幸笛田1丁目
-
JR豊肥本線南熊本
-
-
-

-
- 新築一戸建て
- 2,590万円
-
熊本市南区御幸笛田1丁目
-
JR豊肥本線南熊本
-












担当エージェント:藤原 章裕
【月々の支払い例】
3700万円借り入れの場合
月々74,491円(頭金・ボーナス払いなし)
金利0.780%の場合(SBI新生銀行、金利優遇有)
変動金利 返済期間50年
※あくまで一例。条件有。
【周辺環境】
・松高小学校まで徒歩10分(約800m)
・第一中学校まで徒歩22分(約1720m)
・八代市立松高幼稚園まで徒歩4分(約280m)
・セブンイレブン 八代松高小学校前店まで徒歩7分(約540m)
・業務スーパー 八代永碇町店まで徒歩9分(約660m)
・くはら循環器内科・皮フ科まで徒歩20分(約1580m)
・八代横手郵便局まで徒歩19分(約1490m)
・スーパーキッド八代古閑中店まで徒歩18分(約1430m)
・肥後銀行 田中町支店まで徒歩15分(約1160m)
・コスモス古閑中店まで徒歩17分(約1330m)
いつでもお気軽にご連絡ください☆彡
お問い合わせは『ハウスドゥ熊本桜町』まで♪