久留米市東合川新町第2 2号棟 AWK
掲載情報更新日:2026年05月22日 次回更新予定日:2026年06月05日
- 2,480万円
-
- 借入ご希望金額
万円 - 借入期間
年 - 借入金利
% - 月々のお支払い金額
円
- 借入ご希望金額
※ 月々のお支払例は目安の試算となりますので、実際の金額とは異なる場合がございます。詳しくは店舗までお問合わせください。
- 久留米市東合川新町
-
JR久大本線『御井』 車9分(約3.6km)
久留米市東合川新町第2 2号棟 AWK一戸建て | 物件情報
■頭金0円!ボーナス払いゼロ、 ■住宅ローンご相談ください。 ■夜10時まで当日ご案内可能!
おススメその1 パノラマ画像♪
HPにて360度パノラマ画像をご覧いただけます。
おススメその2 住宅ローンのご相談♪
購入時または購入後に掛かる費用まで、ご不明点は
しっかりサポート致しますのでご安心ください。
おススメその3 全国展開700店舗のネットワーク!
新築も中古もお客様のご希望のエリア、予算に合わせてお探し致します♪
物件の設備
- 電気
- オール電化
- 公営水道
- 公共下水
- 浄水器
- IHクッキングヒーター
- カウンターキッチン
- システムキッチン
- オープンキッチン
- バス
- オートバス
- 追焚機能
- 浴室暖房
- 浴室乾燥機
- 浴室に窓
- トイレ
- トイレ2箇所
- 温水洗浄便座
- 高機能トイレ
- 室内洗濯機置場
- 洗髪洗面化粧台
- モニタ付インターホン
- LDK15畳以上
- 和室
- 複層ガラス
- 全居室複層ガラス
- フローリング
- 全室フローリング
- 24時間換気システム
- クローゼット
- 床下収納
- 全居室収納
- シューズボックス
物件の特徴
- 前道6m以上
- 2階建
- フラット35Sに対応
物件詳細情報
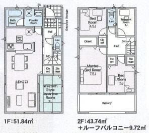
| 価格 | 2,480万円 | 間取り | 4LDK |
|---|---|---|---|
| 物件種別 | 新築一戸建て | ||
| 所在地 | 福岡県久留米市東合川新町 | ||
| アクセス |
|
||
| 建物面積 | 95.58㎡ | 駐車場 | あり |
| 築年月 | 2026年(令和8年)04月予定 | 建築確認 | 第R07SHC123817号 |
| 建物構造 | 木造 2階建 | 工法 | |
| 主要採光 | バルコニー | ||
| 保証・評価 | |||
| 分譲情報 | 【販売戸数】:3戸 |
||
| 土地面積 | 125.79㎡(38.05坪) | 接道 | 北側幅 約7.5m |
| 私道 | セットバック | ||
| 地目 | 宅地 | 地勢 | |
| 権利 | 所有権 |
||
| 都市計画 | 市街化区域 |
用途地域 | 1種住居 |
| 建ぺい/容積率 | 60% / 200% | 土地国土法 | |
| 許可番号 | 建築基準法 | ||
| 法令制限 | |||
| 小学区 | 合川小学校 徒歩25分 (約2000m) | 中学区 | 良山中学校 徒歩28分 (約2200m) |
| 現況 | 建築中 | 引渡 | 期日指定:2026年04月以降 |
| その他費用 | |||
| 周辺環境 | ローソン 東合川6丁目店 徒歩5分 (約400m) A-PRICE久留米店 徒歩10分 (約800m) ファミリーマート 久留米山川店 徒歩10分 (約740m) セブンイレブン 久留米新合川店 徒歩14分 (約1080m) ドラッグ&フレッシュトライアル久留米店 徒歩13分 (約970m) 久留米市東郵便局 徒歩13分 (約1000m) 久留米市立合川小学校 徒歩25分 (約2000m) 久留米市立良山中学校 徒歩28分 (約2220m) |
||
| 備考 | |||
| 物件番号 | 4594264 | 取引態様 | 媒介 |
取扱店舗情報
| 電話番号 | 0942-50-5735 |
|---|---|
| 所在地 | 〒841-0051 佐賀県鳥栖市元町1246番地3 |
| 営業時間 | 10:00~18:00 |
| 定休日 | 水曜日 |
| 宅建免許番号 | 佐賀県知事(2)第2561号 |
| アクセス | 店舗への地図はこちら |

来店ご予約
福岡県久留米市で価格が似ている物件はこちら
- 福岡県
マイページ物件数 - 8,561件
最近見た物件
福岡県新築一戸建て新着物件
-
-

-
- 新築一戸建て
- 5,299万円
-
福岡市西区小戸3丁目
-
JR筑肥線姪浜駅
-
-
-

-
- 新築一戸建て
- 4,999万円
-
福岡市西区小戸3丁目
-
JR筑肥線姪浜駅
-
-
-

-
- 新築一戸建て
- 5,099万円
-
福岡市西区小戸3丁目
-
JR筑肥線姪浜駅
-
-
-

-
- 新築一戸建て
- 4,498万円
-
福岡市博多区浦田1丁目
-
福岡市空港線福岡空港駅
-
-
-

-
- 新築一戸建て
- 4,398万円
-
福岡市博多区浦田1丁目
-
福岡市空港線福岡空港駅
-
-
-

-
- 新築一戸建て
- 3,898万円
-
北九州市小倉南区南方1丁目
-
北九州高速鉄道守恒駅
-
-
-

-
- 新築一戸建て
- 3,438万円
-
福岡市西区野方5丁目
-
福岡市七隈線橋本駅
-
- お近くの店舗を探す
-
おすすめ物件
-
-

-
- 新築一戸建て
- 3,798万円
-
福岡市東区三苫2丁目
-
西鉄貝塚線三苫
-
-
-

-
- 新築一戸建て
- 3,498万円
-
北九州市門司区上二十町
-
JR鹿児島本線門司
-
-
-

-
- 新築一戸建て
- 3,498万円
-
宗像市原町
-
JR鹿児島本線東郷
-
-
-

-
- 新築一戸建て
- 3,988万円
-
春日市一の谷1丁目
-
JR博多南線博多南
-
-
-

-
- 新築一戸建て
- 4,248万円
-
古賀市天神7丁目
-
JR鹿児島本線古賀
-
-
-

-
- 新築一戸建て
- 3,398万円
-
大野城市南ケ丘6丁目
-
JR鹿児島本線水城
-
-
-

-
- 新築一戸建て
- 3,380万円
-
直方市大字感田
-
筑豊電気鉄道遠賀野
-
-
-

-
- 新築一戸建て
- 4,198万円
-
福津市中央6丁目
-
JR鹿児島本線福間
-
-
-

-
- 新築一戸建て
- 3,698万円
-
太宰府市朱雀3丁目
-
西鉄天神大牟田線西鉄二日市
-
-
-

-
- 新築一戸建て
- 4,498万円
-
福岡市東区三苫2丁目
-
西鉄貝塚線三苫
-





























担当エージェント:今里
土地・新築、中古戸建、全国700店舗以上の
ネットワークでお手伝い致します!
0942-50-5735鳥栖郵便局そば、お気軽にご相談ください♪