新築戸建南区六ツ川2丁目3980万円
NEW 02.17掲載情報更新日:2026年02月17日 次回更新予定日:2026年03月03日
- 3,980万円
-
- 借入ご希望金額
万円 - 借入期間
年 - 借入金利
% - 月々のお支払い金額
円
- 借入ご希望金額
※ 月々のお支払例は目安の試算となりますので、実際の金額とは異なる場合がございます。詳しくは店舗までお問合わせください。
- 横浜市南区六ツ川2丁目
-
京急本線『弘明寺』 徒歩23分 (約1840m)
新築戸建南区六ツ川2丁目3980万円一戸建て | 物件情報
物件の設備
- 食器洗浄乾燥機
- コンロ三口
- バス
- ユニットバス
- 追焚機能
- 浴室乾燥機
- 浴室に窓
- トイレ
- トイレ2箇所
- 室内洗濯機置場
- LDK15畳以上
- LDK18畳以上
- 複層ガラス
- 24時間換気システム
- クローゼット
- クローゼット2箇所
- クローゼット3箇所
- ウォークインクローゼット
物件の特徴
- 前道6m以上
- 南側道路面す
- 2階建
- フラット35Sに対応
物件詳細情報
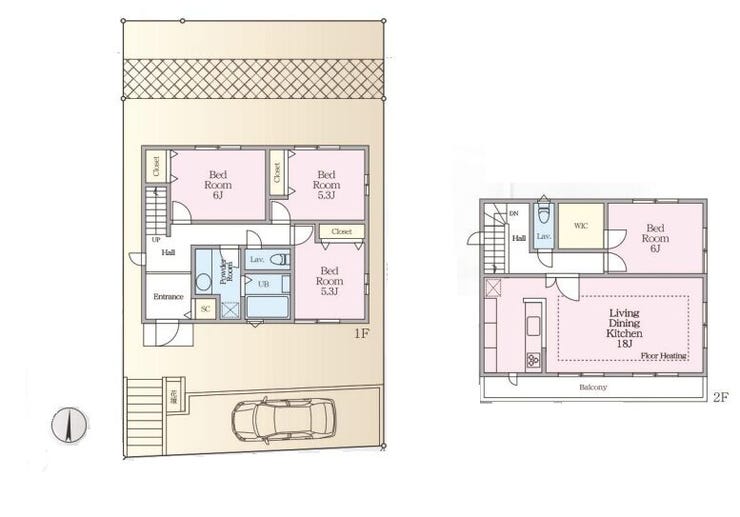
| 価格 | 3,980万円 | 間取り | 4LDK |
|---|---|---|---|
| 物件種別 | 新築一戸建て | ||
| 所在地 | 神奈川県横浜市南区六ツ川2丁目 | ||
| アクセス |
|
||
| 建物面積 | 104.34㎡ | 駐車場 | あり |
| 築年月 | 2026年(令和8年)04月予定 | 建築確認 | 第AI建築確認00-2500534号 |
| 建物構造 | 木造 2階建 | 工法 | |
| 主要採光 | バルコニー | ||
| 保証・評価 | |||
| 土地面積 | 179.52㎡(54.30坪) | 接道 | 南側幅 約6.2m 間口 約9.59m |
| 私道 | セットバック | ||
| 地目 | 宅地 | 地勢 | |
| 権利 | 所有権 |
||
| 都市計画 | 市街化区域 |
用途地域 | 2種住居 |
| 建ぺい/容積率 | 60% / 200% | 土地国土法 | |
| 許可番号 | 建築基準法 | ||
| 法令制限 | |||
| 小学区 | 六つ川台小学校 徒歩5分 (約350m) | 中学区 | 六ッ川中学校 徒歩7分 (約550m) |
| 現況 | 建築中 | 引渡 | 期日指定:2026年05月下旬 |
| その他費用 | |||
| 備考 | |||
| 物件番号 | 4603352 | 取引態様 | 媒介 |
取扱店舗情報
ハウスドゥ 横浜公園前 トランクトラスト株式会社 店舗詳細ページへ
| 電話番号 | 045-307-3166 |
|---|---|
| 所在地 | 〒231-0023 神奈川県横浜市中区山下町252番地 グランベル横浜ビル6階D号 |
| 営業時間 | 9:00~18:00 |
| 定休日 | 水曜日 |
| 宅建免許番号 | 神奈川県知事(2)第30620号 |
| アクセス | 店舗への地図はこちら |

来店ご予約
神奈川県横浜市南区で価格が似ている物件はこちら
- 神奈川県
マイページ物件数 - 3,222件
最近見た物件
-
-

-
- 新築一戸建て
- 3,680万円
-
大分市庄境
-
JR日豊本線大在
-
-
-

-
- 新築一戸建て
- 3,598万円
-
大分市上田町3丁目
-
JR久大本線古国府
-
-
-

-
- 新築一戸建て
- 3,790万円
-
仙台市宮城野区鶴ケ谷4丁目
-
仙台市営地下鉄南北線旭ケ丘
-
神奈川県新築一戸建て新着物件
- お近くの店舗を探す
-
おすすめ物件
-
-

-
- 新築一戸建て
- 2,680万円
-
平塚市公所
-
JR東海道本線平塚
-
-
-

-
- 新築一戸建て
- 6,980万円
-
横浜市中区本郷町3丁目
-
JR京浜東北・根岸線山手
-
-
-

-
- 新築一戸建て
- 5,599万円
-
横浜市南区大岡3丁目
-
横浜市営地下鉄ブルーライン弘明寺
-







