松山市余戸中3丁目の新築戸建
NEW 02.18掲載情報更新日:2026年02月18日 次回更新予定日:2026年03月04日
- 3,098万円
-
- 借入ご希望金額
万円 - 借入期間
年 - 借入金利
% - 月々のお支払い金額
円
- 借入ご希望金額
※ 月々のお支払例は目安の試算となりますので、実際の金額とは異なる場合がございます。詳しくは店舗までお問合わせください。
- 松山市余戸中3丁目
-
伊予鉄道郡中線『鎌田』 徒歩10分 (約790m)
伊予鉄道郡中線『余戸』 徒歩11分 (約840m)
松山市余戸中3丁目一戸建て | 物件情報
物件の設備
- 電気
- オール電化
- 上水道
- 下水道
- 浄水器
- 食器洗浄乾燥機
- IHクッキングヒータ
- コンロ二口
- カウンターキッチン
- システムキッチン
- バス1坪以上
- 浴室暖房
- 浴室乾燥機
- トイレ2箇所
- 温水洗浄便座
- 室内洗濯機置場
- 洗髪洗面化粧台
- ダウンライト
- EV車充電設備
- ダブルロックキー
- モニタ付インターホン
- 火災警報器/報知機
- LDK15畳以上
- 複層ガラス
- 24時間換気システム
- クローゼット
- 床下収納
- 全居室収納
- バルコニー
物件の特徴
- 耐震構造
- 小学校徒歩10分以内
- 2階建
- 平坦地
物件詳細情報
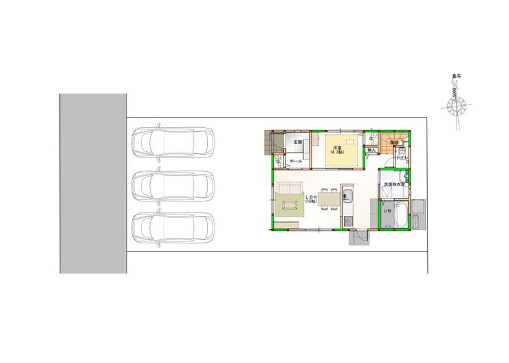
| 価格 | 3,098万円 | 間取り | 4LDK |
|---|---|---|---|
| 物件種別 | 新築一戸建て | ||
| 所在地 | 愛媛県松山市余戸中3丁目 | ||
| アクセス |
|
||
| 建物面積 | 95.9㎡ | 駐車場 | あり 普通:3台 |
| 築年月 | 2026年(令和8年)04月予定 | 建築確認 | 第2025建確-2000号 |
| 建物構造 | 木造 2階建 | 工法 | |
| 主要採光 | バルコニー | ||
| 保証・評価 | |||
| 土地面積 | 公144.73㎡(43.78坪) | 接道 | 西側(私道)幅 約4.0m 間口 約8.00m(位置指定) |
| 私道 | セットバック | ||
| 地目 | 宅地 | 地勢 | 平坦 |
| 権利 | 所有権 |
||
| 都市計画 | 市街化区域 |
用途地域 | 1種住居 |
| 建ぺい/容積率 | 60% / 160% | 土地国土法 | |
| 許可番号 | 建築基準法 | ||
| 法令制限 | |||
| 小学区 | さくら小学校 徒歩9分 (約650m) | 中学区 | 余土中学校 徒歩19分 (約1470m) |
| 現況 | 未着工 | 引渡 | 期日指定:2026年05月下旬 |
| その他費用 | |||
| 周辺環境 | ファミリーマート松山余戸店 徒歩6分 (約470m) コープえひめ余戸店 徒歩7分 (約530m) くすりのレデイ 余戸店 徒歩7分 (約500m) mac 余戸店 徒歩13分 (約1010m) Seria 富久店 徒歩13分 (約1010m) |
||
| 備考 | 安心・安全・快適に暮らせるお家♪ 〈構造・仕様〉 オール電化・耐震等級3相当・ZEH仕様・断熱性能5等級以上・一次エネルギー消費量6等級以上 〈保証制度〉 長期住宅保証・長期白蟻保証・アフターメンテナンス・シックハウス対策 |
||
| 物件番号 | 4603474 | 取引態様 | 媒介 |
取扱店舗情報
ハウスドゥ 松山駅前 株式会社ニシヒラ住宅 店舗詳細ページへ
| 電話番号 | 089-926-8281 |
|---|---|
| 所在地 | 〒790-0064 愛媛県松山市愛光町1-24 OVEST松山 |
| 営業時間 | 10:00 ~18:30 |
| 定休日 | 日曜日 |
| 宅建免許番号 | 愛媛県知事(2)第5475号 |
| アクセス | 店舗への地図はこちら |

来店ご予約
愛媛県松山市で価格が似ている物件はこちら
- 愛媛県
マイページ物件数 - 3,740件
最近見た物件
-
-

-
- 中古一戸建て
- 2,180万円
-
豊橋市富士見台3丁目
-
豊橋鉄道渥美線大清水
-
-
-

-
- 中古一戸建て
- 2,780万円
-
豊橋市江島町
-
豊橋鉄道渥美線小池
-
-
-

-
- 中古マンション
- 2,080万円
-
狛江市東野川3丁目
-
小田急小田原線喜多見
-
愛媛県新築一戸建て新着物件
- お近くの店舗を探す
-
おすすめ物件
-
-

-
- 新築一戸建て
- 2,690万円
-
松山市越智2丁目
-
伊予鉄道横河原線福音寺
-








