日野市多摩平3丁目の新築戸建
掲載情報更新日:2026年04月20日 次回更新予定日:2026年05月04日
- 5,599万円
-
- 借入ご希望金額
万円 - 借入期間
年 - 借入金利
% - 月々のお支払い金額
円
- 借入ご希望金額
※ 月々のお支払例は目安の試算となりますので、実際の金額とは異なる場合がございます。詳しくは店舗までお問合わせください。
- 日野市多摩平3丁目
-
JR中央本線『豊田』 徒歩13分 (約1040m)
JR八高線『北八王子』 徒歩21分 (約1630m)
京王線『京王八王子』 バス乗車11分 コニカミノルタ前 停 徒歩11分 (約880m)
日野市多摩平3丁目一戸建て | 物件情報
イオンモール徒歩圏!小学校・病院も身近な多摩平の快適な3LDK。
JR中央線「豊田」駅から平坦な道のりを歩いて13分 。
日野市多摩平の落ち着いた住環境に、先進の省エネ性能を誇る「ZEH水準省エネ住宅」が誕生しました 。
1号棟は5,699万円(税込)で、3LDKに多目的に使えるサービスルーム(納戸)を備えた機能的な間取りです 。
本物件は高い断熱性能や省エネ設備を備えており、一年中快適な室温を保ちながら光熱費の削減にも貢献します 。
フラット35Sにも対応し、地盤・建物ともに10年保証が付帯した安心の品質 。
さらに「くらしあんしん24」サービスが2年間提供されるなど、入居後のアフターサポートも充実しています 。
物件の設備
- 電気
- 公営水道
- 公共下水
- 都市ガス
- 給湯
- 浄水器
- 食器洗浄乾燥機
- コンロ三口
- カウンターキッチン
- システムキッチン
- バス
- オートバス
- バス1坪以上
- 追焚機能
- 浴室暖房
- 浴室乾燥機
- トイレ
- トイレ2箇所
- 温水洗浄便座
- 室内洗濯機置場
- 洗髪洗面化粧台
- 洗面所独立
- LDK15畳以上
- 2面採光
- クローゼット
- 床下収納
- 全居室収納
- シューズボックス
- 2面バルコニー
物件の特徴
- 2階建
- 角地
物件詳細情報
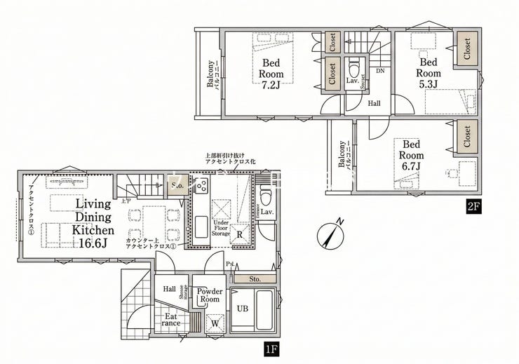
| 価格 | 5,599万円 | 間取り | 3LDK |
|---|---|---|---|
| 物件種別 | 新築一戸建て | ||
| 所在地 | 東京都日野市多摩平3丁目 2号棟 | ||
| アクセス |
|
||
| 建物面積 | 83.94㎡ | 駐車場 | あり 普通:1台 |
| 築年月 | 2026年(令和8年)05月予定 | 建築確認 | 第25UDI1W建08971号 |
| 建物構造 | 木造 2階建 | 工法 | |
| 主要採光 | 西向 | バルコニー | |
| 保証・評価 | |||
| 土地面積 | 公84.25㎡(25.48坪) | 接道 | |
| 私道 | セットバック | ||
| 地目 | 宅地 | 地勢 | |
| 権利 | 所有権 |
||
| 都市計画 | 市街化区域 |
用途地域 | 1種低層 |
| 建ぺい/容積率 | 50% / 100% | 土地国土法 | |
| 許可番号 | 建築基準法 | ||
| 法令制限 | 宅地造成工事規制区域・法22条区域 | ||
| 小学区 | 第六小学校 徒歩4分 (約280m) | 中学区 | 日野第四中学校 徒歩9分 (約650m) |
| 現況 | 建築中 | 引渡 | 期日指定:2026年05月中旬 |
| その他費用 | |||
| 周辺環境 | トゥモロープラザ 多摩平の森 徒歩2分 (約90m) 多摩平の森の病院 徒歩3分 (約200m) 栄光多摩平中央保育園 徒歩3分 (約180m) ミニストップ 多摩平3丁目店 徒歩4分 (約270m) 日野市立病院 徒歩8分 (約590m) イオンモール多摩平の森 徒歩8分 (約640m) 日野市立多摩平図書館 徒歩9分 (約670m) 日野市立第六小学校 徒歩4分 (約280m) 日野市立第四中学校 徒歩9分 (約650m) |
||
| 備考 | 中央線の特快停車駅「豊田」を生活圏に収める邸宅です。 周辺には「イオンモール多摩平の森」(約770m)やコンビニ(約350m)などの商業施設が徒歩圏内に充実しており、日々の買い物に困ることはありません 。 また、日野第六小学校(約480m)や日野市立病院(約190m)も近く、万が一の際も安心のロケーションです 。 住まいは最新の「ZEH水準」を満たす省エネ設計 。 7.2帖の主寝室をはじめ、プライベートな時間を大切にできるゆとりある個室配置が特徴です 。 売主自社施工による丁寧な造りと、将来の資産価値を支える駅徒歩13分の好立地 邸宅です。 |
||
| 物件番号 | 4607440 | 取引態様 | 媒介 |
取扱店舗情報
| 電話番号 | 042-506-2072 |
|---|---|
| 所在地 | 〒191-0065 東京都日野市旭が丘2丁目7-6 マルトコビル101号室 |
| 営業時間 | 10:00~17:30(土日~18:00) |
| 定休日 | 水曜日、祝日、年末年始 |
| 宅建免許番号 | 東京都知事(1)第113228号 |
| アクセス | 店舗への地図はこちら |

来店ご予約
東京都日野市で価格が似ている物件はこちら
- 東京都
マイページ物件数 - 5,880件
最近見た物件
-
-

-
- 土地
- 520万円
-
日田市大字西有田坂井町
-
JR久大本線光岡
-
-
-

-
- 土地
- 2,498万円
-
島尻郡八重瀬町字上田原
-
伊覇バス停
-
-
-

-
- 土地
- 350万円
-
鹿児島市下伊敷2丁目
-
玉里団地北口バス停
-
東京都新築一戸建て新着物件
-
-

-
- 新築一戸建て
- 5,680万円
-
小平市学園東町
-
西武多摩湖線一橋学園駅
-
-
-

-
- 新築一戸建て
- 7,299万円
-
足立区平野3丁目
-
つくばエクスプレス六町駅
-
-
-

-
- 新築一戸建て
- 6,599万円
-
足立区平野3丁目
-
つくばエクスプレス六町駅
-
-
-

-
- 新築一戸建て
- 6,280万円
-
北区西が丘2丁目
-
JR京浜東北・根岸線東十条駅
-
-
-

-
- 新築一戸建て
- 6,480万円
-
調布市若葉町2丁目
-
京王線仙川駅
-
-
-

-
- 新築一戸建て
- 4,390万円
-
八王子市南陽台3丁目
-
京王線長沼駅
-
-
-

-
- 新築一戸建て
- 6,799万円
-
八王子市子安町2丁目
-
京王高尾線京王片倉駅
-
- お近くの店舗を探す
-
おすすめ物件
-
-

-
- 新築一戸建て
- 5,199万円
-
八王子市鹿島
-
多摩モノレール松が谷
-
-
-

-
- 新築一戸建て
- 4,580万円
-
八王子市楢原町
-
JR中央本線西八王子
-
-
-

-
- 新築一戸建て
- 6,960万円
-
足立区南花畑1丁目
-
つくばエクスプレス六町
-
-
-

-
- 新築一戸建て
- 3,480万円
-
八王子市犬目町
-
JR中央本線八王子
-
-
-

-
- 新築一戸建て
- 5,599万円
-
日野市多摩平3丁目
-
JR中央本線豊田
-
-
-

-
- 新築一戸建て
- 6,199万円
-
調布市深大寺東町4丁目
-
京王線つつじヶ丘
-
-
-

-
- 新築一戸建て
- 5,280万円
-
足立区中央本町4丁目
-
東武伊勢崎・大師線梅島
-
-
-

-
- 新築一戸建て
- 5,199万円
-
八王子市鹿島
-
多摩モノレール松が谷
-
-
-

-
- 新築一戸建て
- 5,699万円
-
八王子市打越町
-
JR横浜線片倉
-
-
-

-
- 新築一戸建て
- 6,199万円
-
調布市深大寺東町4丁目
-
京王線つつじヶ丘
-







担当エージェント:野口 怜美
イオンモール、市役所、病院、小学校がすべて身近に集結。
多摩平エリアならではの成熟した生活利便性を、徒歩や自転車で享受できるのは大きな魅力です 。