箕面市小野原東4丁目の新築戸建
掲載情報更新日:2026年04月06日 次回更新予定日:2026年04月20日
- 1億1,800万円
-
- 借入ご希望金額
万円 - 借入期間
年 - 借入金利
% - 月々のお支払い金額
円
- 借入ご希望金額
※ 月々のお支払例は目安の試算となりますので、実際の金額とは異なる場合がございます。詳しくは店舗までお問合わせください。
- 箕面市小野原東4丁目
-
大阪モノレール彩都『豊川』 徒歩5分 (約400m)
箕面市小野原東4丁目一戸建て | 物件情報
26年3月新築物件!最寄り駅まで徒歩5分!全居室6帖以上!北西角地!
▼オススメポイント▼
・2026年3月新築物件♪
・大阪モノレール「豊川駅」まで徒歩5分♪
・使い勝手のいい全居室6帖以上♪
・室内にやわらかい日差しが入る北西角地♪
・家の中心にある中庭からは風が抜けて心地よい空気に包まれます♪
物件の設備
- 電気
- 上水道
- 公営水道
- 下水道
- 公共下水
- 都市ガス
- カウンターキッチン
- システムキッチン
- バス
- ユニットバス
- トイレ
- トイレ2箇所
- 室内洗濯機置場
- 洗髪洗面化粧台
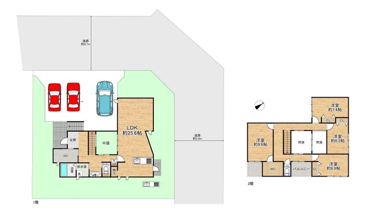
- LDK15畳以上
- LDK18畳以上
- LDK20畳以上
- 全居室6畳以上
- フローリング
- 全室フローリング
- クローゼット3箇所
- ウォークインクローゼット
- 全居室収納
- シューズインクローク
- 2面バルコニー
- 中庭
物件の特徴
- 小学校徒歩10分以内
- 前道6m以上
- 緑豊かな住宅地
- スーパーが近い
- 閑静な住宅街
- 市街地が近い
- 都市近郊
- 通風良好
- 2階建
物件詳細情報
| 価格 | 1億1,800万円 | 間取り | 4LDK |
|---|---|---|---|
| 物件種別 | 新築一戸建て | ||
| 所在地 | 大阪府箕面市小野原東4丁目 | ||
| アクセス |
|
||
| 建物面積 | 157.52㎡ | 駐車場 | あり 普通:3台 |
| 築年月 | 2026年(令和8年)03月予定 | 建築確認 | 第KKK02500480号 |
| 建物構造 | 木造 2階建 | 工法 | |
| 主要採光 | バルコニー | ||
| 保証・評価 | |||
| 土地面積 | 公268.74㎡(81.29坪) | 接道 | 北東側(公道)幅 約5.9m 間口 約12.10m 北西側(公道)幅 約6.7m 間口 約14.90m |
| 私道 | セットバック | 無 | |
| 地目 | 宅地 | 地勢 | |
| 権利 | 所有権 |
||
| 都市計画 | 市街化区域 |
用途地域 | 1種低層 |
| 建ぺい/容積率 | 50% / 100% | 土地国土法 | |
| 許可番号 | 建築基準法 | ||
| 法令制限 | 都市再生特別措置法・景観法・宅地造成及び特定盛土等規制法 | ||
| 小学区 | 豊川南小学校 徒歩8分 (約600m) | 中学区 | 第四中学校 徒歩33分 (約2600m) |
| 現況 | 建築中 | 引渡 | 未記入 |
| その他費用 | |||
| 備考 | |||
| 物件番号 | 4615366 | 取引態様 | 媒介 |
取扱店舗情報
ハウスドゥ 豊中服部 株式会社アマネハウジング 店舗詳細ページへ
| 電話番号 | 06-6676-7791 |
|---|---|
| 所在地 | 〒561-0859 大阪府豊中市服部豊町1丁目2番6号 |
| 営業時間 | 9:30~20:00 |
| 定休日 | 水曜日 |
| 宅建免許番号 | 大阪府知事(1)第65576号 |
| アクセス | 店舗への地図はこちら |

来店ご予約
大阪府箕面市で価格が似ている物件はこちら
- 大阪府
マイページ物件数 - 18,222件
最近見た物件
-
-

-
- 中古一戸建て
- 1,599万円
-
河東郡音更町木野大通西2丁目
-
JR根室本線帯広
-
-
-

-
- 土地
- 700万円
-
白山市八幡町
-
三宮町
-
-
-

-
- 中古一戸建て
- 1,550万円
-
名古屋市中川区東起町5丁目
-
名古屋臨海高速鉄道中島
-
大阪府新築一戸建て新着物件
- お近くの店舗を探す
-
おすすめ物件
-
-

-
- 新築一戸建て
- 4,680万円
-
堺市北区百舌鳥本町2丁
-
JR阪和線百舌鳥
-
-
-

-
- 新築一戸建て
- 3,680万円
-
大阪市東住吉区住道矢田4丁目
-
近鉄南大阪線矢田
-
-
-

-
- 新築一戸建て
- 3,090万円
-
摂津市南別府町
-
大阪市今里筋線井高野
-
-
-

-
- 新築一戸建て
- 3,198万円
-
泉大津市池浦町5丁目
-
JR阪和線和泉府中
-
-
-

-
- 新築一戸建て
- 4,350万円
-
東大阪市新家2丁目
-
大阪市中央線長田
-
-
-

-
- 新築一戸建て
- 3,980万円
-
摂津市一津屋2丁目
-
大阪モノレール南摂津
-
-
-

-
- 新築一戸建て
- 4,198万円
-
摂津市三島2丁目
-
大阪モノレール摂津
-
-
-

-
- 新築一戸建て
- 3,480万円
-
大阪市東住吉区住道矢田4丁目
-
近鉄南大阪線矢田
-
-
-

-
- 新築一戸建て
- 3,180万円
-
東大阪市花園東町2丁目
-
近鉄難波・奈良線東花園
-
-
-

-
- 新築一戸建て
- 3,490万円
-
東大阪市中小阪1丁目
-
近鉄難波・奈良線河内小阪
-








◇お家探しに不安をお持ちのお客様へ◇
ハウスドゥでは豊富な物件量でお応えします!
物件に関するご質問はもちろん、ご購入の流れや資金面でのご相談等ございましたらいつでもお気軽にハウスドゥ豊中服部へ♪
【店舗情報:ハウスドゥ豊中服部】
ご家族皆様でご一緒にお家探しをしましょう♪
近隣にパーキングも多数ございます。お車でお気軽にお越しください。
不動産の購入・売却・建築・リフォームのご相談ならハウスドゥ豊中服部へ!
元銀行員のエージェントが在籍!住宅ローンの相談歓迎です♪ぜひお気軽にお問い合わせください♪