神戸市須磨区横尾3丁目の新築戸建
NEW 02.28掲載情報更新日:2026年03月06日 次回更新予定日:2026年03月20日
- 4,880万円
-
- 借入ご希望金額
万円 - 借入期間
年 - 借入金利
% - 月々のお支払い金額
円
- 借入ご希望金額
※ 月々のお支払例は目安の試算となりますので、実際の金額とは異なる場合がございます。詳しくは店舗までお問合わせください。
- 神戸市須磨区横尾3丁目
-
神戸市営地下鉄西神山手線『妙法寺』 徒歩12分 (約930m)
神戸市営地下鉄西神山手線『板宿』 徒歩47分 (約3710m)
神戸市営地下鉄西神山手線『名谷』 徒歩41分 (約3220m)
神戸市須磨区横尾3丁目一戸建て | 物件情報
物件の設備
- 電気
- 公営水道
- 公共下水
- 都市ガス
- 給湯
- 食器洗浄乾燥機
- コンロ三口
- グリル
- カウンターキッチン
- システムキッチン
- ユニットバス
- バス1坪以上
- 追焚機能
- 浴室暖房
- 浴室乾燥機
- ミストサウナ
- トイレ2箇所
- 温水洗浄便座
- 室内洗濯機置場
- 洗髪洗面化粧台
- 床暖房
- ダウンライト
- 人感照明センサー
- ディンプルキー
- ダブルロックキー
- 非接触型ICカードキー
- モニタ付インターホン
- 火災警報器/報知機
- 複層ガラス
- 電動シャッター
- クローゼット2箇所
- ウォークインクローゼット
- シューズインクローク
- ハイルーフ駐車可能
物件の特徴
- 前道6m以上
- 閑静な住宅街
- 山が見える
- 眺望良好
- 通風良好
- 2階建
- 整形地
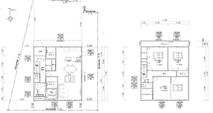
物件詳細情報
| 価格 | 4,880万円 | 間取り | 3LDK |
|---|---|---|---|
| 物件種別 | 新築一戸建て | ||
| 所在地 | 兵庫県神戸市須磨区横尾3丁目13-5 | ||
| アクセス |
|
||
| 建物面積 | 公119.24㎡ | 駐車場 | あり 普通:2台 |
| 築年月 | 2026年(令和8年)01月築 | 建築確認 | 第J24-01269号 |
| 建物構造 | 木造 2階建 | 工法 | |
| 主要採光 | 北向 | バルコニー | |
| 保証・評価 | |||
| 土地面積 | 公193.39㎡(58.50坪) | 接道 | 北側(公道)幅 約6.0m |
| 私道 | セットバック | ||
| 地目 | 宅地 | 地勢 | |
| 権利 | 所有権 |
||
| 都市計画 | 市街化区域 |
用途地域 | 1種低層 |
| 建ぺい/容積率 | 50% / 100% | 土地国土法 | |
| 許可番号 | 建築基準法 | ||
| 法令制限 | 高度地区・宅地造成工事規制区域・法22条区域・外壁後退1m・高さ制限10m・新住宅市街地開発法 | ||
| 小学区 | 横尾小学校 徒歩9分 (約680m) | 中学区 | 横尾中学校 徒歩4分 (約310m) |
| 現況 | 空 | 引渡 | 相談 |
| その他費用 | |||
| 周辺環境 | 神戸市立横尾中学校 徒歩4分 (約310m) 神戸市立横尾小学校 徒歩9分 (約680m) ローソン須磨妙法寺界地店 徒歩14分 (約1110m) 神戸妙法寺郵便局 徒歩14分 (約1090m) 神戸横尾郵便局 徒歩9分 (約720m) 三井住友銀行妙法寺出張所 徒歩10分 (約800m) 妙法寺幼稚園 徒歩15分 (約1130m) くすの木保育園 徒歩11分 (約840m) リファーレ横尾 徒歩12分 (約920m) 神戸市営地下鉄山手線 妙法寺駅 徒歩12分 (約930m) |
||
| 備考 | ・神戸市立横尾中学校まで徒歩4分(約310m) ・神戸市立横尾小学校まで徒歩9分(約680m) ・ローソン須磨妙法寺界地店まで徒歩14分(約1110m) ・神戸妙法寺郵便局まで徒歩14分(約1090m) ・神戸横尾郵便局まで徒歩9分(約720m) ・三井住友銀行妙法寺出張所まで徒歩10分(約800m) ・妙法寺幼稚園まで徒歩15分(約1130m) ・くすの木保育園まで徒歩11分(約840m) ・リファーレ横尾まで徒歩12分(約920m) ・神戸市営地下鉄山手線 妙法寺駅まで徒歩12分(約930m) |
||
| 物件番号 | 4617614 | 取引態様 | 媒介 |
取扱店舗情報
ハウスドゥ 須磨警察前 株式会社アサヒコーポレーション 店舗詳細ページへ
| 電話番号 | 078-797-4451 |
|---|---|
| 所在地 | 〒654-0034 兵庫県神戸市須磨区戸政町1丁目1-2 |
| 営業時間 | 9:30~19:00 |
| 定休日 | 水曜日、夏季休暇、年末年始 |
| 宅建免許番号 | 兵庫県知事(1)第12698号 |
| アクセス | 店舗への地図はこちら |

来店ご予約
兵庫県神戸市須磨区で価格が似ている物件はこちら
- 兵庫県
マイページ物件数 - 3,314件
最近見た物件
-
-

-
- 中古一戸建て
- 250万円
-
旭川市東旭川町上兵村
-
JR函館本線旭川
-
-
-

-
- 中古マンション
- 3,680万円
-
大阪市此花区島屋6丁目
-
JR桜島線ユニバーサルシティ
-
-
-

-
- 新築一戸建て
- 2,780万円
-
四日市市智積町
-
近鉄湯の山線桜
-
兵庫県新築一戸建て新着物件
-
-

-
- 新築一戸建て
- 3,250万円
-
神戸市垂水区清水が丘1丁目
-
JR山陽本線垂水駅
-
-
-

-
- 新築一戸建て
- 3,150万円
-
神戸市垂水区清水が丘1丁目
-
JR山陽本線垂水駅
-
-
-

-
- 新築一戸建て
- 3,990万円
-
神戸市垂水区桃山台2丁目
-
JR山陽本線垂水駅
-
-
-

-
- 新築一戸建て
- 3,280万円
-
加古川市平岡町新在家
-
JR山陽本線東加古川駅
-
-
-

-
- 新築一戸建て
- 3,580万円
-
明石市大久保町江井島
-
山陽電鉄本線西江井ヶ島駅
-
-
-

-
- 新築一戸建て
- 3,690万円
-
川西市水明台3丁目
-
能勢電鉄平野駅
-
-
-

-
- 新築一戸建て
- 2,980万円
-
明石市魚住町清水
-
JR山陽本線土山駅
-
- お近くの店舗を探す
-
おすすめ物件
-
-

-
- 新築一戸建て
- 3,180万円
-
姫路市御立西6丁目
-
JR山陽本線姫路
-
-
-

-
- 新築一戸建て
- 2,998万円
-
加古川市加古川町美乃利
-
JR山陽本線加古川
-
-
-

-
- 新築一戸建て
- 2,980万円
-
姫路市飾磨区中島
-
山陽電鉄本線飾磨
-
-
-

-
- 新築一戸建て
- 4,190万円
-
神戸市中央区坂口通3丁目
-
阪急電鉄神戸線春日野道
-
-
-

-
- 新築一戸建て
- 2,080万円
-
高砂市百合丘
-
JR山陽本線宝殿
-
-
-

-
- 新築一戸建て
- 2,798万円
-
姫路市上大野4丁目
-
JR播但線野里
-
-
-

-
- 新築一戸建て
- 4,080万円
-
川西市緑台3丁目
-
能勢電鉄多田
-
-
-

-
- 新築一戸建て
- 3,380万円
-
加古川市尾上町長田
-
山陽電鉄本線尾上の松
-
-
-

-
- 新築一戸建て
- 2,698万円
-
姫路市上大野4丁目
-
JR播但線野里
-



























