坂出市白金町3丁目(坂出駅) 2階建 2278
掲載情報更新日:2026年04月19日 次回更新予定日:2026年05月03日
- 2,278万円
-
- 借入ご希望金額
万円 - 借入期間
年 - 借入金利
% - 月々のお支払い金額
円
- 借入ご希望金額
※ 月々のお支払例は目安の試算となりますので、実際の金額とは異なる場合がございます。詳しくは店舗までお問合わせください。
- 坂出市白金町3丁目
-
JR本四備讃線『坂出』 徒歩18分 (約1440m)
坂出市白金町3丁目(坂出駅) 2階建 2278一戸建て | 物件情報
物件の設備
- 電気
- 上水道
- 下水道
- 浄水器
- 食器洗浄乾燥機
- IHクッキングヒータ
- コンロ二口
- カウンターキッチン
- システムキッチン
- 浴室暖房
- 浴室乾燥機
- トイレ2箇所
- 温水洗浄便座
- 洗髪洗面化粧台
- ダウンライト
- 太陽光発電システム
- EV車充電設備
- ダブルロックキー
- モニタ付インターホン
- 火災警報器/報知機
- 複層ガラス
- 全室フローリング
- ウォークインクローゼット
- 全居室収納
- シューズボックス
物件の特徴
- 前道6m以上
- 2階建
物件詳細情報
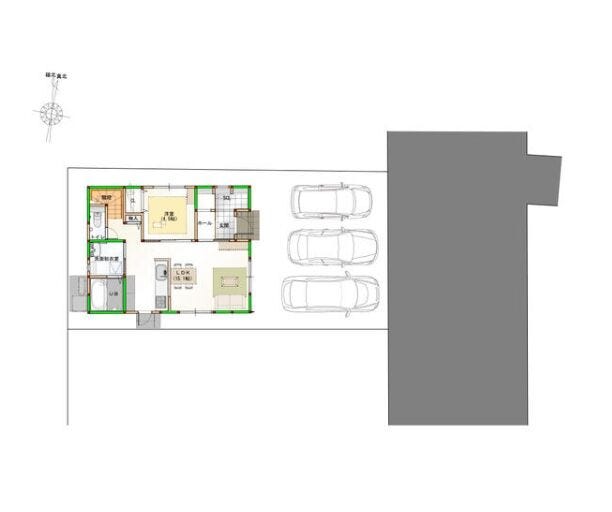
| 価格 | 2,278万円 | 間取り | 4LDK |
|---|---|---|---|
| 物件種別 | 新築一戸建て | ||
| 所在地 | 香川県坂出市白金町3丁目 | ||
| アクセス |
|
||
| 建物面積 | 実103.02㎡ | 駐車場 | なし |
| 築年月 | 2026年(令和8年)05月予定 | 建築確認 | 第確R07-1805号 |
| 建物構造 | 木造 2階建 | 工法 | |
| 主要採光 | 東向 | バルコニー | |
| 保証・評価 | |||
| 土地面積 | 公132.05㎡(39.94坪) | 接道 | 東側(公道)幅 約7.0m 間口 約8.00m |
| 私道 | セットバック | ||
| 地目 | 宅地 | 地勢 | |
| 権利 | 所有権 |
||
| 都市計画 | 非線引区域 |
用途地域 | 1種住居 |
| 建ぺい/容積率 | 60% / 200% | 土地国土法 | |
| 許可番号 | 建築基準法 | ||
| 法令制限 | |||
| 小学区 | 坂出小学校 徒歩4分 (約270m) | 中学区 | 坂出中学校 徒歩33分 (約2600m) |
| 現況 | 建築中 | 引渡 | 未記入 |
| その他費用 | |||
| 備考 | |||
| 物件番号 | 4619921 | 取引態様 | 媒介 |
取扱店舗情報
ハウスドゥ 高松仏生山 株式会社白峯不動産 店舗詳細ページへ
| 電話番号 | 087-816-4084 |
|---|---|
| 所在地 | 〒761-8078 香川県高松市仏生山町甲394-1 |
| 営業時間 | 9:00~18:00 |
| 定休日 | 水曜日 |
| 宅建免許番号 | 香川県知事(1)第4705号 |
| アクセス | 店舗への地図はこちら |

来店ご予約
香川県坂出市で価格が似ている物件はこちら
- 香川県
マイページ物件数 - 621件
最近見た物件
-
-

-
- 土地
- 1,130万円
-
宇都宮市中戸祭1丁目
-
東武宇都宮線東武宇都宮
-
-
-

-
- 新築一戸建て
- 2,998万円
-
姫路市飾磨区構3丁目
-
山陽電鉄本線亀山
-
-
-

-
- 土地
- 3,980万円
-
熊本市中央区黒髪4丁目
-
熊本電気鉄道坪井川公園
-
香川県新築一戸建て新着物件
- お近くの店舗を探す
-
おすすめ物件
-
-

-
- 新築一戸建て
- 2,498万円
-
高松市林町
-
高松琴平電鉄長尾線元山
-
-
-

-
- 新築一戸建て
- 1,998万円
-
高松市林町
-
高松琴平電鉄長尾線木太東口
-
-
-

-
- 新築一戸建て
- 1,998万円
-
高松市新田町
-
JR高徳線屋島
-
-
-

-
- 新築一戸建て
- 3,198万円
-
高松市三条町
-
高松琴平電鉄琴平線三条
-
-
-

-
- 新築一戸建て
- 2,298万円
-
高松市新田町
-
JR高徳線屋島
-
-
-

-
- 新築一戸建て
- 3,498万円
-
高松市六条町
-
高松琴平電鉄長尾線水田
-
-
-

-
- 新築一戸建て
- 2,298万円
-
高松市香西南町
-
JR予讃線香西
-
-
-

-
- 新築一戸建て
- 2,098万円
-
高松市円座町
-
高松琴平電鉄琴平線円座
-
-
-

-
- 新築一戸建て
- 3,678万円
-
高松市三谷町
-
高松琴平電鉄琴平線仏生山
-
-
-

-
- 新築一戸建て
- 3,478万円
-
高松市新田町
-
JR高徳線屋島
-





























