神戸市西区池上2丁目の新築戸建
NEW 03.08掲載情報更新日:2026年03月21日 次回更新予定日:2026年04月04日
- 3,180万円
-
- 借入ご希望金額
万円 - 借入期間
年 - 借入金利
% - 月々のお支払い金額
円
- 借入ご希望金額
※ 月々のお支払例は目安の試算となりますので、実際の金額とは異なる場合がございます。詳しくは店舗までお問合わせください。
- 神戸市西区池上2丁目
-
神戸市営地下鉄西神山手線『伊川谷』 バス乗車8分 伊川谷出張所 停 徒歩3分 (約240m)
神戸市営地下鉄西神山手線『学園都市』 バス乗車21分 池上2丁目 停 徒歩3分 (約240m)
JR山陽本線『朝霧』 バス乗車13分 伊川谷高校前 停 徒歩9分 (約720m)
神戸市西区池上2丁目一戸建て | 物件情報
物件の設備
- 都市ガス
- 浄水器
- システムキッチン
- オートバス
- バス1坪以上
- 浴室暖房
- 浴室乾燥機
- 浴室に窓
- トイレ2箇所
- 高機能トイレ
- 洗髪洗面化粧台
- モニタ付インターホン
- LDK15畳以上
- 全室2面採光
- 複層ガラス
- 全室フローリング
- ウォークインクローゼット
- 床下収納
- 全居室収納
- 2面バルコニー
- ワイドバルコニー
物件の特徴
- 高気密高断熱住宅
- 地盤調査済
- 駅まで平坦
- 前道6m以上
- 南側道路面す
- 整備された歩道
- スーパーが近い
- 閑静な住宅街
- 周辺交通量少なめ
- 通風良好
- 陽当り良好
- 2階建
- 平坦地
- バリアフリー
- 省エネルギー対策
- 即入居可
- フラット35Sに対応
物件詳細情報
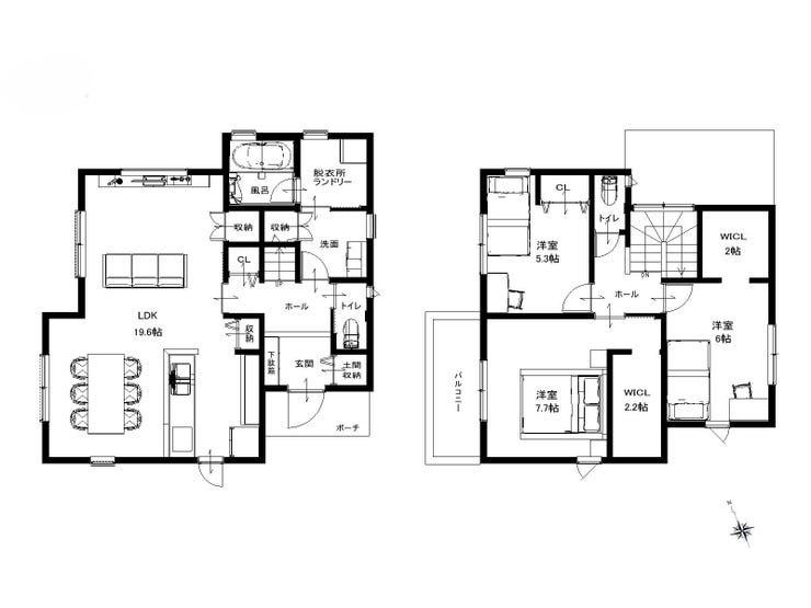
| 価格 | 3,180万円 | 間取り | 3LDK |
|---|---|---|---|
| 物件種別 | 新築一戸建て | ||
| 所在地 | 兵庫県神戸市西区池上2丁目 | ||
| アクセス |
|
||
| 建物面積 | 公99.63㎡ | 駐車場 | あり 普通:2台 |
| 築年月 | 2025年(令和7年)06月築 | 建築確認 | 第HK-24-41109号 |
| 建物構造 | 木造 ガルバリウム鋼板葺 2階建 | 工法 | |
| 主要採光 | 南向 | バルコニー | |
| 保証・評価 | |||
| 土地面積 | 公148.37㎡(44.88坪) | 接道 | 南側(公道)幅 約6.0m 間口 約3.00m 西側(公道)幅 約6.0m 間口 約11.00m |
| 私道 | セットバック | ||
| 地目 | 宅地 | 地勢 | |
| 権利 | 所有権 |
||
| 都市計画 | 市街化区域 |
用途地域 | 1種低層 |
| 建ぺい/容積率 | 50% / 100% | 土地国土法 | |
| 許可番号 | 建築基準法 | ||
| 法令制限 | 高度地区・建築基準法第22条区域 | ||
| 小学区 | 伊川谷小学校 徒歩19分 (約1498m) | 中学区 | 伊川谷中学校 徒歩15分 (約1189m) |
| 現況 | 空 | 引渡 | 即 |
| その他費用 | |||
| 周辺環境 | スポーツデポ 学園南インター店 徒歩35分 (約2780m) ニトリ 垂水店 徒歩37分 (約2920m) コストコホールセール 神戸倉庫店 徒歩44分 (約3480m) ブルメール舞多聞 徒歩49分 (約3860m) 神戸市営地下鉄山手線 学園都市駅 徒歩51分 (約4010m) JR山陽本線 朝霧駅 徒歩50分 (約3980m) |
||
| 備考 | ・ガレージ2台分 ・木目を愛でるウッドワン銘木フローリング ・IHクッキングヒーター ・24時間換気機能付レンジフード ・オールインワン浄水器 ・24時間換気機能、乾燥暖房機付ユニットバス ・エコジョーズ給湯器 ・ワイド900シャワー洗面化粧台 ・シャワートイレ2か所 ・Low-eペアガラスハイブリッドサッシ ・フラット35S適合住宅(断熱等級5、省エネ等級4) |
||
| 物件番号 | 4629111 | 取引態様 | 媒介 |
取扱店舗情報
ハウスドゥ 須磨警察前 株式会社アサヒコーポレーション 店舗詳細ページへ
| 電話番号 | 078-797-4451 |
|---|---|
| 所在地 | 〒654-0034 兵庫県神戸市須磨区戸政町1丁目1-2 |
| 営業時間 | 9:30~19:00 |
| 定休日 | 水曜日、夏季休暇、年末年始 |
| 宅建免許番号 | 兵庫県知事(1)第12698号 |
| アクセス | 店舗への地図はこちら |

来店ご予約
- 兵庫県
マイページ物件数 - 3,259件
兵庫県新築一戸建て新着物件
- お近くの店舗を探す
-



























