島尻郡与那原町字与那原の新築戸建
NEW 03.09掲載情報更新日:2026年03月09日 次回更新予定日:2026年03月23日
- 4,290万円
-
- 借入ご希望金額
万円 - 借入期間
年 - 借入金利
% - 月々のお支払い金額
円
- 借入ご希望金額
※ 月々のお支払例は目安の試算となりますので、実際の金額とは異なる場合がございます。詳しくは店舗までお問合わせください。
- 島尻郡与那原町字与那原
-
【バス停】『大里入口』 徒歩7分 (約560m)
島尻郡与那原町字与那原一戸建て | 物件情報
【☆3号棟】人気の為、残り1件のみになりました!駐車場2台可!
◇店舗キッズスペースあり!夕方からや土日祝日のご内覧も可能です♪お気軽にお問い合わせください☆
物件の設備
- 公営水道
- 下水道
- プロパンガス
- 個別プロパン
- コンロ三口
- システムキッチン
- ユニットバス
- 浴室乾燥機
- 浴室に窓
- トイレ2箇所
- 温水洗浄便座
- 洗髪洗面化粧台
- クローゼット2箇所
- ウォークインクローゼット2箇所
- 床下収納
- シューズボックス
- バルコニー
物件の特徴
- 2階建
物件詳細情報
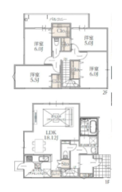
| 価格 | 4,290万円 | 間取り | 4LDK |
|---|---|---|---|
| 物件種別 | 新築一戸建て | ||
| 所在地 | 沖縄県島尻郡与那原町字与那原107-2 3号棟 | ||
| アクセス |
|
||
| 建物面積 | 101.84㎡ | 駐車場 | あり 普通:2台 |
| 築年月 | 2025年(令和7年)11月築 | 建築確認 | |
| 建物構造 | 木造 2階建 | 工法 | |
| 主要採光 | 南西向 | バルコニー | |
| 保証・評価 | |||
| 分譲情報 | |||
| 土地面積 | 136.93㎡(41.42坪) | 接道 | |
| 私道 | セットバック | ||
| 地目 | 畑 | 地勢 | |
| 権利 | 所有権 |
||
| 都市計画 | 市街化区域 |
用途地域 | 2種中高 |
| 建ぺい/容積率 | 60% / 200% | 土地国土法 | |
| 許可番号 | 建築基準法 | ||
| 法令制限 | |||
| 小学区 | 与那原小学校 徒歩12分 (約960m) | 中学区 | 与那原中学校 徒歩18分 (約1440m) |
| 現況 | 完工済 | 引渡 | 相談 |
| その他費用 | |||
| 周辺環境 | ローソン シーサイド与那原 徒歩6分 (約450m) セブン-イレブン 与那原町与那原店 徒歩8分 (約590m) 東浜シーサー公園 徒歩12分 (約950m) |
||
| 備考 | ■駐車場台可※車種要確認 ◆ご契約時に手付金と収入印紙代が別途必要となります。専属のファイナンシャルプランナー&上級相続支援コンサルタント提携♪その他、決済時に係る費用・手数料等お気軽にお問い合わせください。 ~周辺環境~ ・与那原小学校まで徒歩12分(約960m) ・与那原中学校まで徒歩18分(約1440m) ・あおぞら保育園まで徒歩13分(約1000m) ・クララ幼稚園まで徒歩10分(約800m) ・Aプライスまで徒歩5分(約350m) ・ローソンまで徒歩10分(約800m) ・サンエーV21食品館まで徒歩10分(約800m) ・与那原中央病院まで徒歩12分(約900m) ・上の森公園まで徒歩4分(約270m) |
||
| 物件番号 | 4630332 | 取引態様 | 媒介 |
取扱店舗情報
ハウスドゥ サンパーク通り浦添 株式会社R-JAPAN 店舗詳細ページへ
| 電話番号 | 098-876-5454 |
|---|---|
| 所在地 | 〒901-2133 沖縄県浦添市城間4丁目6-2 |
| 営業時間 | 10:00~19:00 |
| 定休日 | 水曜日、年末年始 |
| 宅建免許番号 | 国土交通大臣(2)第9251号 |
| アクセス | 店舗への地図はこちら |

来店ご予約
沖縄県島尻郡与那原町で価格が似ている物件はこちら
- 沖縄県
マイページ物件数 - 3,452件
沖縄県新築一戸建て新着物件
- お近くの店舗を探す
-
おすすめ物件
-
-

-
- 新築一戸建て
- 3,580万円
-
中頭郡読谷村字楚辺
-
バス停楚辺中道
-
-
-

-
- 新築一戸建て
- 3,698万円
-
国頭郡今帰仁村字平敷
-
平敷バス停
-










担当エージェント:仲程 優希
~ご入居までの流れ~
①ご相談:お客様のご希望条件を、ぜひお気軽に担当エージェントへお申し付けください。
②資金計画・住宅ローン事前審査:お客様に応じた必要な資金を明確にし、綿密な資金計画を立てることで、無理のない具体的なビジョンを描くことができます。
③物件選び、現地内覧:いよいよ物件ツアーの始まりです!実際に物件をご内覧いただき、ご家族の住んだ後のイメージをお持ちいただきます。
④お申し込み:気に入った物件が見つかりましたら、購入申込書を売主様へお届けします。売主様と条件交渉、契約内容の調整を行います。
⑤契約・重要事項の説明:引き渡し後トラブルが無いよう、事前に物件や契約の内容をしっかりご確認いただきます。無事契約が完了しましたら、住宅ローンや火災保険等のお申込みまで弊社にてご案内いたします。
⑥残代金支払い・鍵の引き渡し:待ちに待ったお引越しです!その後のアフターサポートもぜひハウスドゥへお任せくださいませ。
◇リフォーム工事や引越し業者の手配、住宅ローン(地銀・ネットバンク)受付等、サポート体制も万全です。