駿東郡清水町徳倉の新築戸建
NEW 03.13掲載情報更新日:2026年03月13日 次回更新予定日:2026年03月27日
- 2,730万円
-
- 借入ご希望金額
万円 - 借入期間
年 - 借入金利
% - 月々のお支払い金額
円
- 借入ご希望金額
※ 月々のお支払例は目安の試算となりますので、実際の金額とは異なる場合がございます。詳しくは店舗までお問合わせください。
- 駿東郡清水町徳倉
-
JR東海道本線『沼津』 バス乗車19分 上外原 停 徒歩3分 (約240m)
駿東郡清水町徳倉一戸建て | 物件情報
【南小学校・南中学校】内覧予約、柔軟に対応中!お気軽にお申し付け下さい。
ピンポイントのカスタマイズや、お好みの壁紙等お客様オンリーワンへのご変更のご相談も、お任せ下さい。
またご予算に応じました様々なプランもご用意致します。快適な家づくり・住み心地の良い家づくり、お客様ファーストでお手伝い致します!。どんな細かいこともご相談下さい。
物件の詳細以外にも資金計画のご相談承ります。
・初めての住宅ローンで不安です。
・いくら借り事ができるのだろう?
・頭金0円でも大丈夫かな?
・購入後も無理の無い物件価格とは?
・賃貸から住宅購入する際の予算はどうする?
・ライフプランに合った資金計画について
・今住んでる家の住宅ローンが残っていても住み替え出来るかな?
・自営業者だけど、勤続年数がまだ短くて、年収が低いのですが、パート勤務なので、育児休暇中でも大丈夫?様々な不安お話下さい。
弊社エージェントがご相談承ります。
事前審査も承っております。
お気軽にお申し付け下さい。
物件の設備
- 電気
- 上水道
- 公営水道
- 下水道
- 公共下水
- 都市ガス
- 給湯
- 浄水器
- コンロ三口
- グリル
- カウンターキッチン
- システムキッチン
- オートバス
- バス1坪以上
- 追焚機能
- 浴室暖房
- 浴室乾燥機
- 浴室に窓
- トイレ2箇所
- 温水洗浄便座
- 室内洗濯機置場
- 洗髪洗面化粧台
- 照明器具
- ディンプルキー
- ダブルロックキー
- モニタ付インターホン
- 火災警報器/報知機
- LDK15畳以上
- ウォークインクローゼット
- 床下収納
物件の特徴
- 南側道路面す
- 2階建
- 設計住宅性能評価付
- 即入居可
物件詳細情報
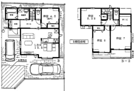
| 価格 | 2,730万円 | 間取り | 4LDK |
|---|---|---|---|
| 物件種別 | 新築一戸建て | ||
| 所在地 | 静岡県駿東郡清水町徳倉 | ||
| アクセス |
|
||
| 建物面積 | 101.02㎡ | 駐車場 | あり 普通:2台 |
| 築年月 | 2026年(令和8年)02月築 | 建築確認 | 第KS125-0420-52334号 |
| 建物構造 | 木造 2階建 | 工法 | |
| 主要採光 | バルコニー | ||
| 保証・評価 | 設計住宅性能評価書 |
||
| 土地面積 | 122.19㎡(36.96坪) | 接道 | 南側(公道)幅 約4.0m |
| 私道 | 別:3.19㎡(持分 1/1) | セットバック | |
| 地目 | 宅地 | 地勢 | |
| 権利 | 所有権 |
||
| 都市計画 | 市街化区域 |
用途地域 | 1種住居 |
| 建ぺい/容積率 | 60% / 200% | 土地国土法 | |
| 許可番号 | 建築基準法 | ||
| 法令制限 | |||
| 小学区 | 南小学校 徒歩22分 (約1700m) | 中学区 | 南中学校 徒歩7分 (約550m) |
| 現況 | 完工済 | 引渡 | 即 |
| その他費用 | |||
| 備考 | |||
| 物件番号 | 4635333 | 取引態様 | 媒介 |
取扱店舗情報
| 電話番号 | 055-969-3366 |
|---|---|
| 所在地 | 〒410-0312 静岡県沼津市原1418-40 |
| 営業時間 | 10:00~18:00 |
| 定休日 | 水曜日 |
| 宅建免許番号 | 静岡県知事(2)第14312号 |
| アクセス | 店舗への地図はこちら |

来店ご予約
静岡県駿東郡清水町で価格が似ている物件はこちら
- 静岡県
マイページ物件数 - 2,720件
最近見た物件
静岡県新築一戸建て新着物件
-
-

-
- 新築一戸建て
- 3,190万円
-
浜松市浜名区平口
-
遠州鉄道遠州小松駅
-
-
-

-
- 新築一戸建て
- 2,990万円
-
浜松市浜名区平口
-
遠州鉄道遠州小松駅
-
-
-

-
- 新築一戸建て
- 3,090万円
-
浜松市浜名区平口
-
遠州鉄道遠州小松駅
-
-
-

-
- 新築一戸建て
- 2,750万円
-
静岡市葵区与一4丁目
-
JR東海道本線静岡駅
-
-
-

-
- 新築一戸建て
- 2,730万円
-
駿東郡清水町徳倉
-
JR東海道本線沼津駅
-
-
-

-
- 新築一戸建て
- 2,780万円
-
沼津市大塚
-
JR東海道本線片浜駅
-
-
-

-
- 新築一戸建て
- 4,999万円
-
静岡市葵区田町2丁目
-
静岡鉄道静岡清水線新静岡駅
-
- お近くの店舗を探す
-













担当エージェント:尾形 翔哉
住宅ローンのご質問・ご相談、何なりとお申し付け下さい。
「物件の場所はどこ?」「○○エリアで物件を探しているんだけど?」
内見予約等、どんな事でもハウスドゥ沼津原までお気軽にお問い合わせ下さい♪