宇美町障子岳2丁目 新築戸建
掲載情報更新日:2026年04月23日 次回更新予定日:2026年05月07日
- 2,798万円
-
- 借入ご希望金額
万円 - 借入期間
年 - 借入金利
% - 月々のお支払い金額
円
- 借入ご希望金額
※ 月々のお支払例は目安の試算となりますので、実際の金額とは異なる場合がございます。詳しくは店舗までお問合わせください。
- 糟屋郡宇美町障子岳2丁目
-
西鉄バス『極楽寺入口』 徒歩9分 (約720m)
宇美町障子岳2丁目 新築戸建一戸建て | 物件情報
物件の設備
- 電気
- 公営水道
- 下水道
- 側溝
- プロパンガス
- 個別プロパン
- 給湯
- 浄水器
- 食器洗浄乾燥機
- 食品庫
- コンロ三口
- グリル
- カウンターキッチン
- システムキッチン
- ユニットバス
- オートバス
- バス1坪以上
- 追焚機能
- 浴室暖房
- 浴室乾燥機
- トイレ
- トイレ2箇所
- 温水洗浄便座
- 室内洗濯機置場
- 洗髪洗面化粧台
- ダウンライト
- リビング階段
- 省エネ給湯器
- ディンプルキー
- ダブルロックキー
- モニタ付インターホン
- 火災警報器/報知機
- LDK18畳以上
- 全居室複層ガラス
- 全室フローリング
- 24時間換気システム
- クローゼット
- ウォークインクローゼット
- 床下収納
- 全居室収納
- シューズボックス
- 2面バルコニー
- 庭
物件の特徴
- 2階建
- 建築確認完了検査済証
- BELS/省エネ基準適合
- 即入居可
- フラット35Sに対応
物件詳細情報
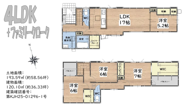
| 価格 | 2,798万円 | 間取り | 4LDK |
|---|---|---|---|
| 物件種別 | 新築一戸建て | ||
| 所在地 | 福岡県糟屋郡宇美町障子岳2丁目 3号棟 | ||
| アクセス |
|
||
| 建物面積 | 120.1㎡ | 駐車場 | あり |
| 築年月 | 2026年(令和8年)02月築 | 建築確認 | |
| 建物構造 | 木造 2階建 | 工法 | |
| 主要採光 | バルコニー | ||
| 保証・評価 | |||
| 土地面積 | 193.59㎡(58.56坪) | 接道 | 北側(公道)幅 約5.0m |
| 私道 | セットバック | ||
| 地目 | 宅地 | 地勢 | |
| 権利 | 所有権 |
||
| 都市計画 | 非線引区域 |
用途地域 | 指定無 |
| 建ぺい/容積率 | 70% / 200% | 土地国土法 | |
| 許可番号 | 建築基準法 | ||
| 法令制限 | 法22条区域 | ||
| 小学区 | 宇美東小学校 徒歩14分 (約1100m) | 中学区 | 宇美東中学校 徒歩18分 (約1370m) |
| 現況 | 完工済 | 引渡 | 即 |
| その他費用 | |||
| 周辺環境 | 宇美幼稚園 徒歩9分 (約670m) 飛岳中央公園 徒歩12分 (約910m) 宇美東小学校 徒歩14分 (約1100m) ジョイントたんぽぽ市場 徒歩17分 (約1310m) ファミリーマート須恵佐谷店 徒歩20分 (約1540m) セブンイレブン宇美東小学校前店 徒歩15分 (約1200m) 宇美早見郵便局 徒歩16分 (約1240m) 宇美東中学校 徒歩18分 (約1370m) |
||
| 備考 | |||
| 物件番号 | 4640360 | 取引態様 | 媒介 |
取扱店舗情報
ハウスドゥ 福岡流通センター 有限会社セゾン 店舗詳細ページへ
| 電話番号 | 092-260-7722 |
|---|---|
| 所在地 | 〒813-0034 福岡県福岡市東区多の津4丁目9-1 103 |
| 営業時間 | 9:00~19:00 |
| 定休日 | 年末年始、GW、お盆休み |
| 宅建免許番号 | 福岡県知事(1)第20006号 |
| アクセス | 店舗への地図はこちら |

来店ご予約
福岡県糟屋郡宇美町で価格が似ている物件はこちら
- 福岡県
マイページ物件数 - 8,272件
最近見た物件
-
-

-
- 新築一戸建て
- 4,680万円
-
川崎市宮前区南野川2丁目
-
東急田園都市線鷺沼
-
-
-

-
- 中古一戸建て
- 3,599万円
-
大野城市平野台1丁目
-
JR鹿児島本線大野城
-
-
-

-
- 中古マンション
- 4,190万円
-
葛飾区柴又4丁目
-
京成金町線柴又
-
福岡県新築一戸建て新着物件
-
-

-
- 新築一戸建て
- 4,099万円
-
大野城市南ケ丘1丁目
-
西鉄天神大牟田線下大利駅
-
-
-

-
- 新築一戸建て
- 4,099万円
-
大野城市南ケ丘1丁目
-
西鉄天神大牟田線下大利駅
-
-
-

-
- 新築一戸建て
- 3,598万円
-
福津市西福間2丁目
-
JR鹿児島本線福間駅
-
-
-

-
- 新築一戸建て
- 3,498万円
-
福津市西福間2丁目
-
JR鹿児島本線福間駅
-
-
-

-
- 新築一戸建て
- 3,788万円
-
福岡市早良区梅林7丁目
-
福岡市七隈線梅林駅
-
-
-

-
- 新築一戸建て
- 4,288万円
-
福岡市早良区梅林7丁目
-
福岡市七隈線梅林駅
-
-
-

-
- 新築一戸建て
- 4,388万円
-
福岡市早良区梅林7丁目
-
福岡市七隈線梅林駅
-
- お近くの店舗を探す
-
おすすめ物件
-
-

-
- 新築一戸建て
- 2,698万円
-
宗像市東郷5丁目
-
JR鹿児島本線東郷
-
-
-

-
- 新築一戸建て
- 2,698万円
-
宗像市原町
-
JR鹿児島本線東郷
-
-
-

-
- 新築一戸建て
- 4,098万円
-
那珂川市今光8丁目
-
JR博多南線博多南
-
-
-

-
- 新築一戸建て
- 2,898万円
-
宗像市ひかりヶ丘4丁目
-
JR鹿児島本線東郷
-
-
-

-
- 新築一戸建て
- 4,698万円
-
糟屋郡粕屋町大字柚須
-
JR篠栗線柚須
-
-
-

-
- 新築一戸建て
- 2,499万円
-
北九州市門司区光町1丁目
-
JR鹿児島本線門司
-
-
-

-
- 新築一戸建て
- 3,598万円
-
宗像市自由ヶ丘7丁目
-
JR鹿児島本線赤間
-
-
-

-
- 新築一戸建て
- 4,288万円
-
春日市一の谷1丁目
-
JR博多南線博多南
-
-
-

-
- 新築一戸建て
- 3,268万円
-
福岡市博多区浦田2丁目
-
福岡市空港線福岡空港
-
-
-

-
- 新築一戸建て
- 3,398万円
-
大野城市南ケ丘6丁目
-
JR鹿児島本線水城
-

































★☆★☆★☆★☆★☆★☆★☆★☆★☆★☆★☆★☆★☆★☆★☆★☆★☆
◆◇住宅ローンお支払い例◇◆
金融機関:福岡銀行 期間:40年 金利:1.375% 融資額:2,798万円の場合
月々のお支払い 75,816円~
★☆★☆★☆★☆★☆★☆★☆★☆★☆★☆★☆★☆★☆★☆★☆★☆★☆