北九州市若松区西天神町の新築戸建
掲載情報更新日:2026年05月12日 次回更新予定日:2026年05月26日
- 2,798万円
-
- 借入ご希望金額
万円 - 借入期間
年 - 借入金利
% - 月々のお支払い金額
円
- 借入ご希望金額
※ 月々のお支払例は目安の試算となりますので、実際の金額とは異なる場合がございます。詳しくは店舗までお問合わせください。
- 北九州市若松区西天神町
-
JR筑豊本線『奥洞海』 徒歩8分 (約600m)
JR筑豊本線『二島』 徒歩18分 (約1400m)
JR鹿児島本線『折尾』 車19分(約7.5km)
市営バス『若松渡場』 徒歩5分 (約350m)
北九州市若松区西天神町一戸建て | 物件情報
西天神町に平屋のお家が登場しました♪駐車場4台止めれます!
・北九州市立二島小学校まで徒歩22分(約1710m)
・北九州市立二島中学校まで徒歩28分(約2210m)
・若松東二島郵便局まで徒歩6分(約460m)
・奥洞海駅まで徒歩8分(約620m)
・福岡ひびき信用金庫 東二島支店まで徒歩8分(約610m)
・スーパーセンタートライアル二島店まで徒歩9分(約710m)
・東二島3丁目公園まで徒歩10分(約760m)
・ローソン 若松東二島3丁目店まで徒歩11分(約850m)
・セブンイレブン若松東二島店まで徒歩11分(約860m)
・ジョイフル 若松店まで徒歩14分(約1100m)
物件の設備
- 上水道
- 公営水道
- 下水道
- 側溝
- プロパンガス
- 個別プロパン
- バス
- トイレ
- 室内洗濯機置場
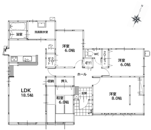
- LDK18畳以上
- 和室
- 全居室6畳以上
- フローリング
- クローゼット2箇所
- シューズボックス
物件の特徴
- 南側道路面す
- スーパーが近い
- 閑静な住宅街
- 通風良好
- 陽当り良好
物件詳細情報
| 価格 | 2,798万円 | 間取り | 4LDK |
|---|---|---|---|
| 物件種別 | 新築一戸建て | ||
| 所在地 | 福岡県北九州市若松区西天神町 1号棟 | ||
| アクセス |
|
||
| 建物面積 | 104.75㎡ | 駐車場 | あり 普通:4台 |
| 築年月 | 2026年(令和8年)02月築 | 建築確認 | 第KJH25-01361-1 |
| 建物構造 | 木造 1階建 | 工法 | |
| 主要採光 | バルコニー | ||
| 保証・評価 | |||
| 土地面積 | 377.09㎡(114.06坪) | 接道 | 南側(公道)幅 約5.9m 間口 約3.50m |
| 私道 | セットバック | ||
| 地目 | 宅地 | 地勢 | |
| 権利 | 所有権 |
||
| 都市計画 | 市街化区域 |
用途地域 | 1種中高 |
| 建ぺい/容積率 | 60% / 200% | 土地国土法 | |
| 許可番号 | 建築基準法 | ||
| 法令制限 | |||
| 小学区 | 二島小学校 徒歩23分 (約1804m) | 中学区 | 二島中学校 徒歩26分 (約2077m) |
| 現況 | 完工済 | 引渡 | 未記入 |
| その他費用 | |||
| 周辺環境 | 北九州市立二島小学校 徒歩22分 (約1710m) 北九州市立二島中学校 徒歩28分 (約2210m) 若松東二島郵便局 徒歩6分 (約460m) 奥洞海駅 徒歩8分 (約620m) 福岡ひびき信用金庫 東二島支店 徒歩8分 (約610m) スーパーセンタートライアル二島店 徒歩9分 (約710m) 東二島3丁目公園 徒歩10分 (約760m) ローソン 若松東二島3丁目店 徒歩11分 (約850m) セブンイレブン若松東二島店 徒歩11分 (約860m) ジョイフル 若松店 徒歩14分 (約1100m) |
||
| 備考 | |||
| 物件番号 | 4661400 | 取引態様 | 媒介 |
取扱店舗情報
ハウスドゥ 八幡本城 株式会社Cross Road 店舗詳細ページへ
| 電話番号 | 093-647-0370 |
|---|---|
| 所在地 | 〒807-0801 福岡県北九州市八幡西区本城3453-3 |
| 営業時間 | 9:00~18:00(土曜日・日曜日は17:00まで) |
| 定休日 | 不定休 |
| 宅建免許番号 | 福岡県知事(1)第20212号 |
| アクセス | 店舗への地図はこちら |

来店ご予約
福岡県北九州市若松区で価格が似ている物件はこちら
- 福岡県
マイページ物件数 - 8,435件
最近見た物件
-
-

-
- 収益
- 2,490万円
-
足立区入谷2丁目
-
日暮里舎人ライナー舎人
-
-
-

-
- 中古マンション
- 2,080万円
-
八尾市竹渕1丁目
-
JR関西本線加美
-
-
-

-
- 土地
- 1,035万円
-
鹿児島市坂之上6丁目
-
JR指宿枕崎線坂之上
-
福岡県新築一戸建て新着物件
-
-

-
- 新築一戸建て
- 2,488万円
-
遠賀郡水巻町猪熊8丁目
-
JR鹿児島本線水巻駅
-
-
-

-
- 新築一戸建て
- 4,198万円
-
糟屋郡久山町大字久原
-
JR篠栗線篠栗駅
-
-
-

-
- 新築一戸建て
- 4,298万円
-
糟屋郡久山町大字久原
-
JR篠栗線篠栗駅
-
-
-

-
- 新築一戸建て
- 4,298万円
-
糟屋郡久山町大字久原
-
JR篠栗線篠栗駅
-
-
-

-
- 新築一戸建て
- 4,198万円
-
糟屋郡久山町大字久原
-
JR篠栗線篠栗駅
-
-
-

-
- 新築一戸建て
- 3,598万円
-
北九州市八幡西区本城1丁目
-
JR筑豊本線本城駅
-
-
-

-
- 新築一戸建て
- 2,788万円
-
北九州市若松区高須西2丁目
-
JR鹿児島本線折尾駅
-
- お近くの店舗を探す
-
おすすめ物件
-
-

-
- 新築一戸建て
- 3,198万円
-
北九州市門司区中二十町
-
JR鹿児島本線小森江
-
-
-

-
- 新築一戸建て
- 2,698万円
-
宗像市東郷5丁目
-
JR鹿児島本線東郷
-
-
-

-
- 新築一戸建て
- 2,998万円
-
宗像市徳重
-
JR鹿児島本線教育大前
-
-
-

-
- 新築一戸建て
- 5,130万円
-
古賀市美明1丁目
-
JR鹿児島本線ししぶ
-
-
-

-
- 新築一戸建て
- 3,698万円
-
福津市西福間3丁目
-
JR鹿児島本線福間
-
-
-

-
- 新築一戸建て
- 3,798万円
-
那珂川市今光8丁目
-
JR博多南線博多南
-
-
-

-
- 新築一戸建て
- 4,298万円
-
福岡市南区長住1丁目
-
西鉄天神大牟田線高宮
-
-
-

-
- 新築一戸建て
- 3,398万円
-
北九州市小倉南区上貫1丁目
-
JR日豊本線下曽根
-
-
-

-
- 新築一戸建て
- 3,398万円
-
北九州市小倉南区朽網西1丁目
-
JR日豊本線朽網
-
-
-

-
- 新築一戸建て
- 3,498万円
-
福津市西福間2丁目
-
JR鹿児島本線福間
-






二島小学校・二島中学校エリア(^^)/
平屋なので全ての家事をワンフロアで済ませることができる所が魅力的♪
移動が少なくなればなるほど、家事を楽にこなせます!
階段がないため小さなお子様と一緒でも安心です。
また、老後などの将来を見越してもずっと快適に住むことができて安心です。