高松市伏石町の新築戸建
NEW 04.03掲載情報更新日:2026年04月17日 次回更新予定日:2026年05月01日
- 2,498万円
-
- 借入ご希望金額
万円 - 借入期間
年 - 借入金利
% - 月々のお支払い金額
円
- 借入ご希望金額
※ 月々のお支払例は目安の試算となりますので、実際の金額とは異なる場合がございます。詳しくは店舗までお問合わせください。
- 高松市伏石町
-
高松琴平電鉄琴平線『三条』 徒歩9分 (約690m)
高松市伏石町一戸建て | 物件情報
見逃し厳禁!人気の伏石町エリア!三条駅徒歩10分圏内、7月完成予定の新築3LDKが2498万円!
物件の設備
- 電気
- 上水道
- 下水道
- 浄水器
- 食器洗浄乾燥機
- IHクッキングヒータ
- コンロ二口
- カウンターキッチン
- システムキッチン
- 浴室暖房
- 浴室乾燥機
- トイレ2箇所
- 温水洗浄便座
- 洗髪洗面化粧台
- ダウンライト
- 太陽光発電システム
- EV車充電設備
- ダブルロックキー
- モニタ付インターホン
- 火災警報器/報知機
- 複層ガラス
- 全室フローリング
- クローゼット
- ウォークインクローゼット
- 床下収納
- 全居室収納
物件の特徴
- 2階建
物件詳細情報
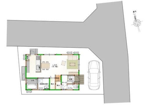
| 価格 | 2,498万円 | 間取り | 3LDK |
|---|---|---|---|
| 物件種別 | 新築一戸建て | ||
| 所在地 | 香川県高松市伏石町 | ||
| アクセス |
|
||
| 建物面積 | 88.44㎡ | 駐車場 | あり |
| 築年月 | 2026年(令和8年)07月予定 | 建築確認 | 第確R07-2296号 |
| 建物構造 | 木造 2階建 | 工法 | |
| 主要採光 | 東向 | バルコニー | |
| 保証・評価 | |||
| 土地面積 | 公91.85㎡(27.78坪) | 接道 | 北側(公道)幅 約3.9m 間口 約13.90m 東側(公道)幅 約3.9m 間口 約5.00m |
| 私道 | セットバック | ||
| 地目 | 宅地 | 地勢 | |
| 権利 | 所有権 |
||
| 都市計画 | 非線引区域 |
用途地域 | 2種中高 |
| 建ぺい/容積率 | 60% / 200% | 土地国土法 | |
| 許可番号 | 建築基準法 | ||
| 法令制限 | |||
| 小学区 | 太田小学校 徒歩15分 (約1188m) | 中学区 | 桜町中学校 徒歩11分 (約834m) |
| 現況 | 未着工 | 引渡 | 未記入 |
| その他費用 | |||
| 備考 | |||
| 物件番号 | 4664555 | 取引態様 | 媒介 |
取扱店舗情報
ハウスドゥ 高松仏生山 株式会社白峯不動産 店舗詳細ページへ
| 電話番号 | 087-816-4084 |
|---|---|
| 所在地 | 〒761-8078 香川県高松市仏生山町甲394-1 |
| 営業時間 | 9:00~18:00 |
| 定休日 | 水曜日 |
| 宅建免許番号 | 香川県知事(1)第4705号 |
| アクセス | 店舗への地図はこちら |

来店ご予約
香川県高松市で価格が似ている物件はこちら
- 香川県
マイページ物件数 - 609件
最近見た物件
-
-

-
- 中古一戸建て
- 3,999万円
-
横浜市磯子区杉田9丁目
-
京急本線京急富岡
-
-
-

-
- 新築一戸建て
- 2,699万円
-
姶良市東餅田
-
JR日豊本線帖佐
-
-
-

-
- 中古一戸建て
- 2,168万円
-
泉南郡熊取町つばさが丘北3丁目
-
JR阪和線熊取
-
香川県新築一戸建て新着物件
- お近くの店舗を探す
-
おすすめ物件
-
-

-
- 新築一戸建て
- 3,678万円
-
高松市三谷町
-
高松琴平電鉄琴平線仏生山
-
-
-

-
- 新築一戸建て
- 2,298万円
-
高松市新田町
-
JR高徳線屋島
-
-
-

-
- 新築一戸建て
- 2,498万円
-
高松市伏石町
-
高松琴平電鉄琴平線三条
-
-
-

-
- 新築一戸建て
- 2,098万円
-
高松市円座町
-
高松琴平電鉄琴平線円座
-
-
-

-
- 新築一戸建て
- 3,478万円
-
高松市新田町
-
JR高徳線屋島
-
-
-

-
- 新築一戸建て
- 3,498万円
-
高松市六条町
-
高松琴平電鉄長尾線水田
-
-
-

-
- 新築一戸建て
- 3,198万円
-
高松市三条町
-
高松琴平電鉄琴平線三条
-
-
-

-
- 新築一戸建て
- 1,998万円
-
高松市新田町
-
JR高徳線屋島
-
-
-

-
- 新築一戸建て
- 1,998万円
-
高松市林町
-
高松琴平電鉄長尾線木太東口
-
-
-

-
- 新築一戸建て
- 2,498万円
-
高松市林町
-
高松琴平電鉄長尾線元山
-


























