新築戸建 北名古屋市出口
NEW 04.06掲載情報更新日:2026年04月11日 次回更新予定日:2026年04月25日
- 3,690万円
-
- 借入ご希望金額
万円 - 借入期間
年 - 借入金利
% - 月々のお支払い金額
円
- 借入ご希望金額
※ 月々のお支払例は目安の試算となりますので、実際の金額とは異なる場合がございます。詳しくは店舗までお問合わせください。
- 北名古屋市高田寺出口
-
名鉄犬山線『西春』 バス乗車7分 名鉄バス 高田字寺北停 停 徒歩8分 (約640m)
新築戸建 北名古屋市出口一戸建て | 物件情報
【ハウスドゥ北名古屋】お家探しキャンペーン実施中!0120-315-366までお問合せ下さい♪
〇オススメPOINT〇
小学校まで徒歩4分、子育て世代にうれしい立地。
駐車場2台分完備で、家族のカーライフも快適に。
シューズクローク&パントリー付きで、収納力も充実した住まい。
〇周辺環境〇
名鉄犬山線「西春」駅…バス7分 名古屋空発・西春駅行 高田寺北停 約640m
師勝南小学校…約250m
訓原中学校…約650m
お気軽にお問い合わせ下さい
【ハウスドゥ 北名古屋】
物件の設備
- 電気
- 公営水道
- 公共下水
- 都市ガス
- 給湯
- コンロ三口
- システムキッチン
- 浴室暖房
- 浴室乾燥機
- トイレ2箇所
- 温水洗浄便座
- モニタ付インターホン
- 火災警報器/報知機
- LDK15畳以上
- LDK20畳以上
- フローリング
- 全室フローリング
- クローゼット3箇所
- ウォークインクローゼット
- 全居室収納
- シューズインクローク
物件の特徴
- 耐震構造
- 小学校徒歩10分以内
- 南側道路面す
- 2階建
物件詳細情報
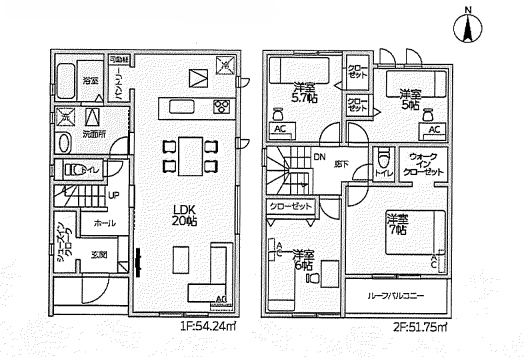
| 価格 | 3,690万円 | 間取り | 4LDK |
|---|---|---|---|
| 物件種別 | 新築一戸建て | ||
| 所在地 | 愛知県北名古屋市高田寺出口 | ||
| アクセス |
|
||
| 建物面積 | 実105.99㎡ | 駐車場 | あり 普通:2台 |
| 築年月 | 2026年(令和8年)05月予定 | 建築確認 | 確認サービス第KS126-0420-51571号 |
| 建物構造 | 木造 2階建 | 工法 | |
| 主要採光 | 南向 | バルコニー | |
| 保証・評価 | |||
| 土地面積 | 実143.41㎡(43.38坪) | 接道 | 南側(公道)幅 約4.5m |
| 私道 | セットバック | ||
| 地目 | 宅地 | 地勢 | |
| 権利 | 所有権 |
||
| 都市計画 | 市街化区域 |
用途地域 | 1種中高 |
| 建ぺい/容積率 | 60% / 160% | 土地国土法 | |
| 許可番号 | 建築基準法 | ||
| 法令制限 | 高度地区・法22条区域 | ||
| 小学区 | 師勝南小学校 徒歩4分 (約250m) | 中学区 | 訓原中学校 徒歩9分 (約650m) |
| 現況 | 建築中 | 引渡 | 期日指定:2026年05月下旬以降 |
| その他費用 | |||
| 周辺環境 | 名鉄犬山線「西春駅」 徒歩34分 (約2650m) 師勝南小学校 徒歩5分 (約330m) ナフコトミダ 師勝店 徒歩6分 (約480m) サンドラッグ 久地野店 徒歩7分 (約550m) バロー 師勝店 徒歩25分 (約1970m) ヨシヅヤ Yストア 豊山テラス 徒歩25分 (約1940m) サンドラッグ 師勝店 徒歩27分 (約2140m) ナフコトミダ 中央店 徒歩28分 (約2190m) mozoワンダーシティ 徒歩26分 (約2070m) |
||
| 備考 | ■図面と現況が相違する場合は現況優先とします ■宅地内に電柱及び支線が入る場合があります ■司法書士は指定 ■電波障害が発生する場合があります。その場合の共聴アンテナケーブルテレビ等の接続及び使用料等、放送受信に要する費用は買主の負担になります。 |
||
| 物件番号 | 4668146 | 取引態様 | 媒介 |
取扱店舗情報
| 電話番号 | 0568-26-3150 |
|---|---|
| 所在地 | 〒481-0041 愛知県北名古屋市九之坪梅田70 |
| 営業時間 | 9:00~19:00 |
| 定休日 | 火曜日・水曜日・年末年始 |
| 宅建免許番号 | 国土交通大臣(1)第10568号 |
| アクセス | 店舗への地図はこちら |

来店ご予約
愛知県北名古屋市で価格が似ている物件はこちら
- 愛知県
マイページ物件数 - 32,321件
最近見た物件
-
-

-
- 新築一戸建て
- 4,480万円
-
福岡市西区今宿上ノ原
-
JR筑肥線今宿
-
-
-

-
- 中古一戸建て
- 3,800万円
-
甲府市上今井町
-
JR中央本線甲府
-
-
-

-
- 中古一戸建て
- 1,680万円
-
富士市今泉7丁目
-
岳南電車吉原本町
-
愛知県新築一戸建て新着物件
-
-

-
- 新築一戸建て
- 3,590万円
-
豊田市新町3丁目
-
名鉄三河線豊田市駅
-
-
-

-
- 新築一戸建て
- 3,390万円
-
豊田市新町3丁目
-
名鉄三河線豊田市駅
-
-
-

-
- 新築一戸建て
- 3,390万円
-
豊田市新町3丁目
-
名鉄三河線豊田市駅
-
-
-

-
- 新築一戸建て
- 3,490万円
-
豊田市新町3丁目
-
名鉄三河線豊田市駅
-
-
-

-
- 新築一戸建て
- 3,190万円
-
海部郡大治町大字馬島字西深田
-
名古屋市東山線中村公園駅
-
-
-

-
- 新築一戸建て
- 3,290万円
-
海部郡大治町大字馬島字西深田
-
名古屋市東山線中村公園駅
-
-
-

-
- 新築一戸建て
- 3,990万円
-
名古屋市天白区植田西2丁目
-
名古屋市鶴舞線塩釜口駅
-
- お近くの店舗を探す
-
おすすめ物件
-
-

-
- 新築一戸建て
- 2,950万円
-
半田市新居町3丁目
-
JR武豊線乙川
-
-
-

-
- 新築一戸建て
- 3,830万円
-
一宮市木曽川町黒田字北宿五の切
-
名鉄名古屋本線黒田
-
-
-

-
- 新築一戸建て
- 4,449万円
-
名古屋市南区赤坪町
-
名鉄名古屋本線本笠寺
-
-
-

-
- 新築一戸建て
- 3,080万円
-
碧南市尾城町3丁目
-
名鉄三河線碧南中央
-
-
-

-
- 新築一戸建て
- 3,230万円
-
一宮市伝法寺7丁目
-
JR東海道本線稲沢
-
-
-

-
- 新築一戸建て
- 2,780万円
-
小牧市大字久保一色
-
名鉄小牧線田県神社前
-
-
-

-
- 新築一戸建て
- 4,199万円
-
名古屋市守山区森孝4丁目
-
名古屋市東山線藤が丘
-
-
-

-
- 新築一戸建て
- 2,990万円
-
知多郡東浦町大字石浜字青木
-
JR武豊線石浜
-
-
-

-
- 新築一戸建て
- 3,190万円
-
一宮市西島町4丁目
-
名鉄名古屋本線今伊勢
-
-
-

-
- 新築一戸建て
- 2,780万円
-
一宮市三条字山
-
名鉄尾西線二子
-



担当エージェント:永井 克輝
住宅ローンのお話や、失敗しない不動産の購入方法までしっかりお伝えいたします♪ ・借入がある方・自営業の方・転職歴のある方・自己資金がない方・シングルの方もまずはご相談ください! 最善の方法を見つけられるよう尽力したします キッズスペース完備!おもちゃなどをご用意しております。安心してご来店ください♪