ローレルタワー堺筋本町
掲載情報更新日:2025年12月26日 次回更新予定日:2026年01月09日
- 7,080万円
-
- 借入ご希望金額
万円 - 借入期間
年 - 借入金利
% - 月々のお支払い金額
円
- 借入ご希望金額
※ 月々のお支払例は目安の試算となりますので、実際の金額とは異なる場合がございます。詳しくは店舗までお問合わせください。
- 大阪市中央区久太郎町2丁目
-
大阪市中央線『堺筋本町』 徒歩1分 (約80m)
大阪市堺筋線『堺筋本町』 徒歩1分 (約80m)
大阪市御堂筋線『本町』 徒歩6分 (約480m)
ローレルタワー堺筋本町マンション | 物件情報
■ハウスドゥ天六駅前おすすめ物件 ■令和6年1月完成物件 ■ペット飼育可
物件の設備
- 公営水道
- 下水道
- 公共下水
- 浄水器
- 食器洗浄乾燥機
- ディスポーザー
- カウンターキッチン
- システムキッチン
- 追焚機能
- 浴室暖房
- 浴室乾燥機
- ミストサウナ
- 温水洗浄便座
- 室内洗濯機置場
- 洗面所独立
- 床暖房
- バルコニー
- 南面バルコニー
- エレベーター
物件の特徴
- 管理人日勤
- ペット相談
物件詳細情報
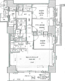
| 価格 | 7,080万円 | 間取り | 1LDK |
|---|---|---|---|
| 物件種別 | 新築マンション | ||
| 所在地 | 大阪府大阪市中央区久太郎町2丁目 | ||
| アクセス |
|
||
| 専有面積 | 壁芯 45.87㎡ | 所在階 | 44階建/9階部分 |
| 主要採光 | 南向 | バルコニー | 南向9.56㎡ |
| その他 | |||
| 権利 | 所有権 |
||
| 保証・評価 | |||
| 総戸数 | 511戸 | 面積 | |
| 築年月 | 2024年(令和6年)01月予定 | 建物構造 | RC |
| 施工会社 | |||
| 管理会社 | 長谷工コーポレーション | 管理方式 | 全部委託 日勤管理 |
| 駐車場 | |||
| 都市計画 | 用途地域 | ||
| 建ぺい/容積率 | 土地国土法 | ||
| 法令制限 | |||
| 小学区 | 中学区 | ||
| 現況 | 居住中 | 引渡 | 未記入 |
| 管理費 | 12,720円/月 | 修繕積立金 | 3,960円/月 |
| その他費用 | |||
| 備考 | |||
| 物件番号 | 4140822 | 取引態様 | 媒介 |
取扱店舗情報
| 電話番号 | 06-6881-4360 |
|---|---|
| 所在地 | 〒531-0041 大阪府大阪市北区天神橋7丁目3-2 大山ビル6F |
| 営業時間 | 10:00~19:00 |
| 定休日 | 火曜日・水曜日 |
| 宅建免許番号 | 大阪府知事(3)第56923号 |
| アクセス | 店舗への地図はこちら |



