MELDIA 戸田市笹目2丁目(2期)
掲載情報更新日:2025年10月24日 次回更新予定日:2025年11月07日
- 4,280万円
-
- 借入ご希望金額
万円 - 借入期間
年 - 借入金利
% - 月々のお支払い金額
円
- 借入ご希望金額
※ 月々のお支払例は目安の試算となりますので、実際の金額とは異なる場合がございます。詳しくは店舗までお問合わせください。
- 戸田市笹目2丁目
-
JR埼京線『戸田』 徒歩20分 (約1600m)
MELDIA 戸田市笹目2丁目(2期)一戸建て | 物件情報
戸田駅徒歩20分☆スーパー徒歩4分・コンビニ徒歩1分♪
全8棟のきれいな街並み♪
床暖房や食洗機など設備充実!!
物件の設備
- 電気
- 上水道
- 公営水道
- 公共下水
- 都市ガス
- 給湯
- 浄水器
- 食器洗浄乾燥機
- コンロ三口
- グリル
- システムキッチン
- オープンキッチン
- ユニットバス
- オートバス
- バス1坪以上
- 追焚機能
- 浴室暖房
- 浴室乾燥機
- 浴室に窓
- トイレ2箇所
- 温水洗浄便座
- 室内洗濯機置場
- 洗髪洗面化粧台
- 床暖房
- リビング階段
- 省エネ給湯器
- ディンプルキー
- ダブルロックキー
- モニタ付インターホン
- 火災警報器/報知機
- LDK18畳以上
- 2面採光
- 複層ガラス
- 全居室複層ガラス
- フローリング
- 全室フローリング
- シャッター雨戸
- 24時間換気システム
- クローゼット
- ウォークインクローゼット
- 全居室収納
- バルコニー
- 2面バルコニー
物件の特徴
- 小学校徒歩10分以内
- スーパーが近い
- 閑静な住宅街
- 市街地が近い
- 3階建以上
- 平坦地
- 外壁サイディング
物件詳細情報
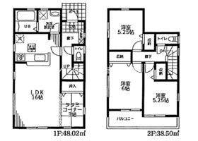
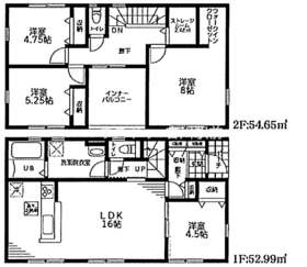
| 価格 | 4,280万円 | 間取り | 2LDK+S |
|---|---|---|---|
| 物件種別 | 新築一戸建て | ||
| 所在地 | 埼玉県戸田市笹目2丁目6-4 3号棟 | ||
| アクセス |
|
||
| 建物面積 | 96.25㎡ | 駐車場 | あり 普通:1台 |
| 築年月 | 2025年(令和7年)12月予定 | 建築確認 | 第2SUDI1W建04666号 |
| 建物構造 | 木造 3階建 | 工法 | |
| 主要採光 | 東向 | バルコニー | |
| 保証・評価 | |||
| 分譲情報 | |||
| 土地面積 | 79.64㎡(24.09坪) | 接道 | 東側(公道)幅 約5.6m |
| 私道 | セットバック | ||
| 地目 | 宅地 | 地勢 | |
| 権利 | 所有権 |
||
| 都市計画 | 市街化区域 |
用途地域 | 1種中高 |
| 建ぺい/容積率 | 60% / 200% | 土地国土法 | |
| 許可番号 | 建築基準法 | ||
| 法令制限 | 準防火地域 | ||
| 小学区 | 笹目東小学校 徒歩6分 (約480m) | 中学区 | 笹目中学校 徒歩17分 (約1360m) |
| 現況 | 建築中 | 引渡 | 期日指定:2025年12月 |
| その他費用 | |||
| 周辺環境 | 戸田市立笹目川保育園 徒歩5分 (約350m) 根木橋公園 徒歩5分 (約350m) マルエツ 戸田氷川町店 徒歩4分 (約320m) まきば幼稚園 徒歩8分 (約610m) 戸田市立児童センタープリムローズ 徒歩7分 (約560m) 笹目東小学校 徒歩8分 (約620m) ベルク戸田氷川町店 徒歩9分 (約660m) 笹目小学校 徒歩15分 (約1170m) 笹目中学校 徒歩18分 (約1370m) オーケー北戸田店 徒歩16分 (約1270m) |
||
| 備考 | |||
| 物件番号 | 4393783 | 取引態様 | 媒介 |
取扱店舗情報
| 電話番号 | 048-441-6001 |
|---|---|
| 所在地 | 〒335-0013 埼玉県戸田市喜沢1丁目26-23 |
| 営業時間 | 10:00~19:00 |
| 定休日 | 火曜日・水曜日 |
| 宅建免許番号 | 埼玉県知事(3)第22845号 |
| アクセス | 店舗への地図はこちら |

来店ご予約
埼玉県戸田市で価格が似ている物件はこちら
- 埼玉県
マイページ物件数 - 3,687件
最近見た物件
-
-

-
- 中古一戸建て
- 1,498万円
-
宇都宮市錦2丁目
-
JR日光線宇都宮
-
埼玉県新築一戸建て新着物件
- お近くの店舗を探す
-
おすすめ物件
-
-

-
- 新築一戸建て
- 2,999万円
-
上尾市藤波2丁目
-
JR高崎線桶川
-
-
-

-
- 新築一戸建て
- 3,599万円
-
桶川市大字上日出谷
-
JR高崎線桶川
-
-
-

-
- 新築一戸建て
- 3,699万円
-
蕨市南町2丁目
-
JR京浜東北・根岸線西川口
-
-
-

-
- 新築一戸建て
- 4,480万円
-
新座市東3丁目
-
東武東上線志木
-
-
-

-
- 新築一戸建て
- 4,080万円
-
新座市新座1丁目
-
東武東上線志木
-
-
-

-
- 新築一戸建て
- 4,280万円
-
吉川市大字保
-
JR武蔵野線吉川
-
-
-

-
- 新築一戸建て
- 3,790万円
-
戸田市美女木1丁目
-
JR埼京線武蔵浦和
-
-
-

-
- 新築一戸建て
- 4,480万円
-
蕨市錦町2丁目
-
JR埼京線戸田
-
-
-

-
- 新築一戸建て
- 3,780万円
-
川口市元郷5丁目
-
埼玉高速鉄道川口元郷
-
-
-

-
- 新築一戸建て
- 3,990万円
-
三郷市幸房
-
JR武蔵野線三郷
-


















