高槻塚原台ハイツ5号棟 高槻市塚原1丁目の中古マンション
掲載情報更新日:2026年01月10日 次回更新予定日:2026年01月24日
- 1,180万円
-
- 借入ご希望金額
万円 - 借入期間
年 - 借入金利
% - 月々のお支払い金額
円
- 借入ご希望金額
※ 月々のお支払例は目安の試算となりますので、実際の金額とは異なる場合がございます。詳しくは店舗までお問合わせください。
- 高槻市塚原1丁目
-
JR東海道線『摂津富田』 バス乗車10分 日赤病院 停 徒歩4分 (約320m)
高槻市塚原1丁目マンション | 物件情報
リフォーム済みで即日新生活をスタート可能です!
物件の設備
- 給湯
- システムキッチン
- バス
- 浴室に窓
- トイレ
- 室内洗濯機置場
- 洗髪洗面化粧台
- 洗面所独立
- フローリング張替
- バルコニー
- 南面バルコニー
物件の特徴
- 管理人日勤
- 内装リフォーム済
- 即入居可
物件詳細情報
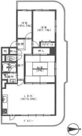
| 価格 | 1,180万円 | 間取り | 4LDK |
|---|---|---|---|
| 物件種別 | 中古マンション | ||
| 所在地 | 大阪府高槻市塚原1丁目7-5 | ||
| アクセス |
|
||
| 専有面積 | 壁芯 80.93㎡ | 所在階 | 5階建/2階部分 |
| 主要採光 | 南向 | バルコニー | |
| その他 | |||
| 権利 | 所有権 |
||
| 保証・評価 | |||
| リフォーム | 【水回り】2023年09月 キッチン・浴室・トイレ・洗面 【内装】2023年09月 壁、天井 ・床 |
||
| 総戸数 | 531戸 | 面積 | |
| 築年月 | 1979年(昭和54年)03月築 | 建物構造 | RC |
| 施工会社 | 大成プレハブ(株) | ||
| 管理会社 | 大成有楽不動産(株) | 管理方式 | 全部委託 日勤管理 |
| 駐車場 | 【駐車場】近有 料金:10,000円/月 |
||
| 都市計画 | 用途地域 | 1種中高 | |
| 建ぺい/容積率 | 土地国土法 | ||
| 法令制限 | |||
| 小学区 | 阿武山小学校 徒歩12分 (約900m) | 中学区 | 阿武山中学校 徒歩20分 (約1600m) |
| 現況 | 空 | 引渡 | 即 |
| 管理費 | 7,400円/月 | 修繕積立金 | 9,310円/月 |
| その他費用 | |||
| 備考 | |||
| 物件番号 | 4497007 | 取引態様 | 媒介 |
取扱店舗情報
ハウスドゥ 高槻富田 株式会社コンフォート住宅販売 店舗詳細ページへ
| 電話番号 | 072-668-2246 |
|---|---|
| 所在地 | 〒569-0814 大阪府高槻市富田町3丁目15-15 |
| 営業時間 | 10:00~19:00 |
| 定休日 | 水曜日、年末年始 |
| 宅建免許番号 | 大阪府知事(2)第61490号 |
| アクセス | 店舗への地図はこちら |

来店ご予約
大阪府高槻市で価格が似ている物件はこちら
- 大阪府
マイページ物件数 - 16,572件
大阪府中古マンション新着物件
-
-

-
- 中古マンション
- 1,290万円
-
茨木市平田1丁目
-
阪急電鉄京都線茨木市駅
-
-
-

-
- 中古マンション
- 980万円
-
大阪市東淀川区瑞光4丁目
-
大阪市今里筋線瑞光四丁目駅
-
-
-

-
- 中古マンション
- 880万円
-
堺市南区新檜尾台3丁
-
南海電鉄泉北線光明池駅
-
-
-

-
- 中古マンション
- 2,890万円
-
大阪市東淀川区東淡路1丁目
-
阪急電鉄京都線淡路駅
-
-
-

-
- 中古マンション
- 3,398万円
-
堺市北区長曽根町
-
大阪市御堂筋線新金岡駅
-
-
-

-
- 中古マンション
- 8,280万円
-
大阪市天王寺区上汐6丁目
-
大阪市谷町線四天王寺前夕陽ヶ丘駅
-
-
-

-
- 中古マンション
- 1,080万円
-
茨木市藤の里1丁目
-
JR東海道線茨木駅
-
- お近くの店舗を探す
-
おすすめ物件
-
-

-
- 中古マンション
- 2,280万円
-
八尾市永畑町3丁目
-
JR関西本線八尾
-
-
-

-
- 中古マンション
- 1,080万円
-
泉大津市東港町
-
南海電鉄本線泉大津
-
-
-

-
- 中古マンション
- 930万円
-
大阪狭山市西山台6丁目
-
南海電鉄高野線金剛
-
-
-

-
- 中古マンション
- 2,350万円
-
高槻市真上町6丁目
-
JR東海道線高槻
-
-
-

-
- 中古マンション
- 4,680万円
-
吹田市垂水町3丁目
-
大阪市御堂筋線江坂
-
-
-

-
- 中古マンション
- 1,290万円
-
東大阪市日下町4丁目
-
近鉄けいはんな線新石切
-
-
-

-
- 中古マンション
- 3,280万円
-
西宮市小松東町3丁目
-
阪神電鉄本線武庫川
-
-
-

-
- 中古マンション
- 2,780万円
-
大阪市淀川区新高1丁目
-
阪急電鉄神戸線神崎川
-
-
-

-
- 中古マンション
- 980万円
-
堺市東区白鷺町2丁
-
南海電鉄高野線白鷺
-
-
-

-
- 中古マンション
- 3,580万円
-
高槻市南総持寺町
-
阪急電鉄京都線総持寺
-




