クリオ淵野辺壱番館 相模原市中央区淵野辺3丁目の中古マンション
掲載情報更新日:2026年01月17日 次回更新予定日:2026年01月31日
- 830万円
-
- 借入ご希望金額
万円 - 借入期間
年 - 借入金利
% - 月々のお支払い金額
円
- 借入ご希望金額
※ 月々のお支払例は目安の試算となりますので、実際の金額とは異なる場合がございます。詳しくは店舗までお問合わせください。
- 相模原市中央区淵野辺3丁目
-
JR横浜線『淵野辺』 徒歩4分 (約320m)
相模原市中央区淵野辺3丁目マンション | 物件情報
物件の設備
- 都市ガス
- IHクッキングヒータ
- コンロ一口
- 室内洗濯機置場
- モニタ付オートロック
- クローゼット
- バルコニー
- エレベーター
物件の特徴
- 管理人巡回
- スーパーが近い
- 外観タイル張
物件詳細情報
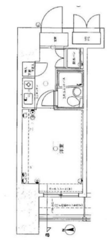
| 価格 | 830万円 | 間取り | 1K |
|---|---|---|---|
| 物件種別 | 中古マンション(収益) | ||
| 所在地 | 神奈川県相模原市中央区淵野辺3丁目 | ||
| アクセス |
|
||
| 専有面積 | 壁芯 16.51㎡ | 所在階 | 11階建/8階部分 |
| 主要採光 | 西向 | バルコニー | 西向1.78㎡ |
| その他 | |||
| 権利 | 所有権 |
||
| 保証・評価 | |||
| リフォーム | |||
| 総戸数 | 59戸 | 面積 | |
| 築年月 | 1989年(昭和64年)01月築 | 建物構造 | SRC |
| 施工会社 | 株式会社武井建設 | ||
| 管理会社 | 明和管理株式会社 | 管理方式 | 全部委託 巡回管理 |
| 駐車場 | |||
| 都市計画 | 用途地域 | 商業 | |
| 建ぺい/容積率 | 土地国土法 | ||
| 法令制限 | |||
| 小学区 | 淵野辺小学校 徒歩7分 (約500m) | 中学区 | 大野北中学校 徒歩7分 (約493m) |
| 現況 | 空 | 引渡 | 相談 |
| 管理費 | 5,800円/月 | 修繕積立金 | 3,850円/月 |
| その他費用 | |||
| 収益情報 | |||
| 周辺環境 | 相模原市立淵野辺小学校 徒歩8分 (約570m) 相模原市立大野北中学校 徒歩8分 (約570m) 淵野辺ひばり幼稚園 徒歩9分 (約700m) フードワン 淵野辺店 徒歩11分 (約830m) 医療法人社団相和会渕野辺総合病院 徒歩6分 (約420m) マツモトキヨシ淵野辺店 徒歩6分 (約410m) 宝来公園 徒歩4分 (約300m) |
||
| 備考 | ※オーナーチェンジ物件 ■ひばりっ子幼稚園・・・約302m(徒歩4分) ■淵野辺ひばり幼稚園・・・約770m(徒歩10分) ■フードワン淵野辺店・・・約352m(徒歩5分) ■セブンイレブン相模原淵野辺3丁目店・・・約98m(徒歩2分) ■マツモトキヨシ淵野辺店・・・約348m(徒歩5分) ■宝来公園・・・約282m(徒歩4分) ■淵野辺総合病院・・・約429m(徒歩6分) |
||
| 物件番号 | 4141150 | 取引態様 | 媒介 |
※利回りとは、当該不動産の1年間の予定賃料収入の不動産取得対価に対する割合であり、公租公課その他当該物件を維持するために必要な費用の控除前のものです。また、予定賃料収入が確実に得られる事を保証するものではありません。
※利回り、想定年収に関する詳しい内容は、直接店舗までお問い合わせ下さい。
取扱店舗情報
ハウスドゥ!相模原横山台店 夢のなかまたち株式会社 店舗詳細ページへ
| 電話番号 | 042-851-3970 |
|---|---|
| 所在地 | 〒252-0241 神奈川県相模原市中央区横山台2丁目13番1号1F |
| 営業時間 | 9:00~18:00 |
| 定休日 | 火曜日、水曜日 |
| 宅建免許番号 | 神奈川県知事(2)第30659号 |
| アクセス | 店舗への地図はこちら |






