エンズプラザライカム 沖縄市久保田3丁目の中古マンション
掲載情報更新日:2025年10月24日 次回更新予定日:2025年11月07日
- 3,800万円
- 
                    - 借入ご希望金額
 万円
-  借入期間
 年
-  借入金利
 %
-  月々のお支払い金額
 円
 
- 借入ご希望金額
※ 月々のお支払例は目安の試算となりますので、実際の金額とは異なる場合がございます。詳しくは店舗までお問合わせください。
- 沖縄市久保田3丁目
- 
                    『バス停 プラザハウス前 』 徒歩3分 (約240m)
 
沖縄市久保田3丁目マンション | 物件情報
             
        
大型ショッピングモール『ライカム』近くの築浅マンション♪国道沿い、商業施設、病院、高速道路インター近く!現在月額18万円で賃貸中。
物件の設備
- 公営水道
- 下水道
- プロパンガス
- 給湯
- コンロ三口
- カウンターキッチン
- システムキッチン
- バス
- ユニットバス
- 浴室乾燥機
- トイレ
- 室内洗濯機置場
- 洗面所独立
- 衣類乾燥機
- オートロック
- モニタ付インターホン
- 防犯カメラ
- クローゼット
- シューズボックス
- 宅配BOX
- エレベーター
物件の特徴
- 管理人巡回
- 総合病院徒歩10分以内
- スーパーが近い
- 眺望良好
- 通風良好
- 平坦地
- ペット相談
- ペット対応
物件詳細情報
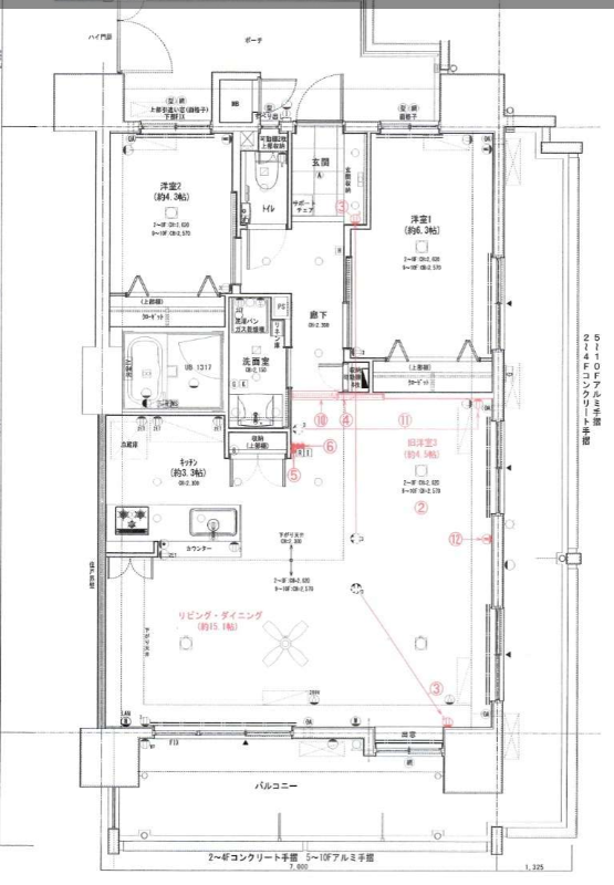
| 価格 | 3,800万円 | 間取り | 2LDK | 
|---|---|---|---|
| 物件種別 | 中古マンション(収益) | ||
| 所在地 | 沖縄県沖縄市久保田3丁目 | ||
| アクセス | 
 | ||
| 専有面積 | 71.79㎡ | 所在階 | 14階建/5階部分 | 
| 主要採光 | バルコニー | ||
| その他 | |||
| 権利 | 所有権 | ||
| 保証・評価 | |||
| リフォーム | |||
| 総戸数 | 面積 | ||
| 築年月 | 2019年(令和1年)09月築 | 建物構造 | RC | 
| 施工会社 | |||
| 管理会社 | 管理方式 | 全部委託 巡回管理 | |
| 駐車場 | |||
| 都市計画 | 用途地域 | ||
| 建ぺい/容積率 | 土地国土法 | ||
| 法令制限 | |||
| 小学区 | 山内小学校 徒歩25分 (約2000m) | 中学区 | 山内中学校 徒歩20分 (約1600m) | 
| 現況 | 引渡 | 相談 | |
| 管理費 | 11,730円/月 | 修繕積立金 | 3,020円/月 | 
| その他費用 | |||
| 収益情報 | 表面利回り:5.68% 家賃収入:2,160,000円 | ||
| 備考 | 家具家電付き、フローリングはコーティング済みです♪ 角部屋の2面バルコニーは開放感あり◎ 駐車場は1台無料!ペット飼育可能! | ||
| 物件番号 | 4206058 | 取引態様 | 媒介 | 
※利回りとは、当該不動産の1年間の予定賃料収入の不動産取得対価に対する割合であり、公租公課その他当該物件を維持するために必要な費用の控除前のものです。また、予定賃料収入が確実に得られる事を保証するものではありません。
        ※利回り、想定年収に関する詳しい内容は、直接店舗までお問い合わせ下さい。
取扱店舗情報
ハウスドゥ 沖縄市美里 B-plus株式会社 店舗詳細ページへ
| 電話番号 | 098-921-1776 | 
|---|---|
| 所在地 | 〒904-2155 沖縄県沖縄市美原3丁目19-12 | 
| 営業時間 | 9:00~18:00 | 
| 定休日 | 水曜日、年末年始 | 
| 宅建免許番号 | 沖縄県知事(1)第5466号 | 
| アクセス | 店舗への地図はこちら | 

来店ご予約
- 沖縄県
 マイページ物件数
- 3,988件
沖縄県事業用・収益物件新着物件
- お近くの店舗を探す
- 
            
            
            
 
     
                         
                         
                         
                    







 
                

















 
                 
             
                    









 
						 
						