GRAHAM TOWER(2棟バルク)
掲載情報更新日:2025年11月28日 次回更新予定日:2025年12月12日
- 5,350万円
-
- 借入ご希望金額
万円 - 借入期間
年 - 借入金利
% - 月々のお支払い金額
円
- 借入ご希望金額
※ 月々のお支払例は目安の試算となりますので、実際の金額とは異なる場合がございます。詳しくは店舗までお問合わせください。
- 宇都宮市滝谷町
-
東武宇都宮線『東武宇都宮』 バス乗車10分 東武宇都宮線 滝谷町 停 徒歩1分 (約80m)
GRAHAM TOWER(2棟バルク)の事業用物件 | 物件情報
事業用物件
物件の設備
- 公営水道
- 公共下水
- 都市ガス
- 給湯
- エレベーター
物件詳細情報
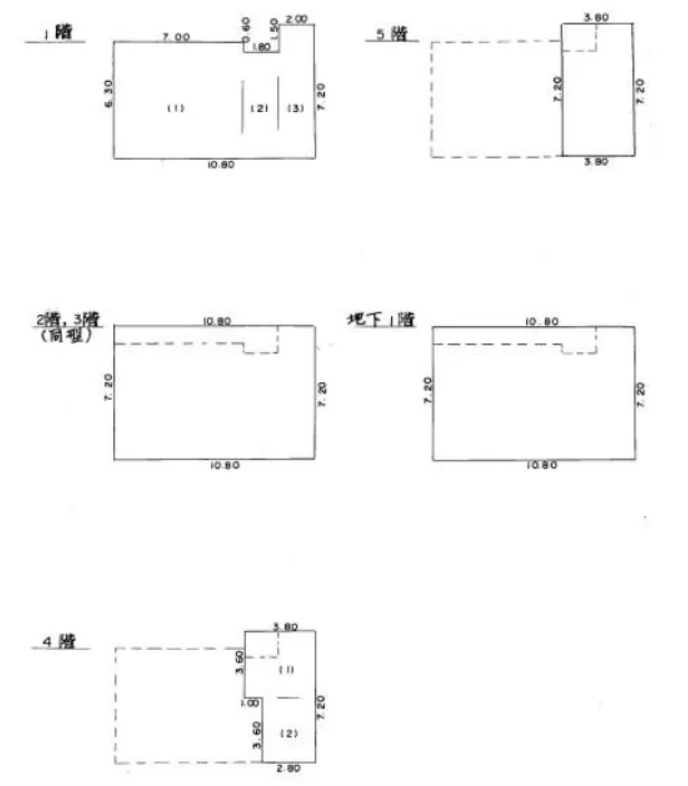
| 価格 | 5,350万円 | 間取り | 1R |
|---|---|---|---|
| 物件種別 | 事業用(事務所・一棟所有) | ||
| 所在地 | 栃木県宇都宮市滝谷町 | ||
| アクセス |
|
||
| 建物面積 | 公353.16㎡ | 駐車場 | |
| 築年月 | 1980年(昭和55年)06月築 | ||
| 建物構造 | RC 5階建 地下1階 | 工法 | |
| 主要採光 | バルコニー | ||
| 保証・評価 | |||
| リフォーム | |||
| 土地面積 | 252.3㎡(76.32坪) | 接道 | 西側(公道)幅 約18.0m 間口 約11.00m 北側(公道)幅 約5.6m 間口 約21.00m |
| 私道 | セットバック | ||
| 地目 | 宅地 | 地勢 | 平坦 |
| 権利 | 所有権 |
||
| 都市計画 | 市街化区域 |
用途地域 | 2種住居 |
| 建ぺい/容積率 | 60% / 200% | 土地国土法 | |
| 許可番号 | 建築基準法 | ||
| 法令制限 | |||
| 小学区 | 富士見小学校 徒歩6分 (約410m) | 中学区 | 一条中学校 徒歩9分 (約670m) |
| 現況 | 空 | 引渡 | 相談 |
| その他費用 | |||
| 収益情報 | |||
| 周辺環境 | マツモトキヨシ 宇都宮一の沢店 徒歩12分 (約910m) 鹿沼相互信用金庫 宇都宮支店 徒歩17分 (約1300m) 栃木銀行 鶴田支店 徒歩19分 (約1450m) 足利銀行 一条町支店 徒歩19分 (約1460m) コープ鶴田店 徒歩21分 (約1650m) めぐみ幼稚園 徒歩18分 (約1380m) 宇都宮市役所 徒歩24分 (約1860m) 宇都宮市富士見小学校 徒歩6分 (約410m) 宇都宮市立一条中学校 徒歩9分 (約670m) 宇都宮市立西原小学校 徒歩10分 (約800m) |
||
| 備考 | 利回り:13.00% 左写真の物件(エレベーター付き)は、月額35万円にて賃貸募集中。右写真の物件(S46年11年新築、4階建S造延床234.09平米)は、月額23万円で賃貸募集。「家屋番号99番1」の建物滅失登記が未了ですが、そのままの引き渡しになります。 | ||
| 物件番号 | 4282736 | 取引態様 | 媒介 |
取扱店舗情報
ハウスドゥ 中戸祭 株式会社ケイズ・ネクスト 店舗詳細ページへ
| 電話番号 | 028-680-4339 |
|---|---|
| 所在地 | 〒320-0052 栃木県宇都宮市中戸祭町867-3 イステートハイツ中戸祭 |
| 営業時間 | 9:00~18:00 |
| 定休日 | 水曜日・夏休暇・GW・年末年始 |
| 宅建免許番号 | 栃木県知事(1)第5469号 |
| アクセス | 店舗への地図はこちら |

来店ご予約
- 栃木県
マイページ物件数 - 6,669件
最近見た物件
-
-

-
- 新築一戸建て
- 4,980万円
-
千歳市高台6丁目
-
JR千歳線千歳
-
-
-

-
- 新築一戸建て
- 3,998万円
-
北九州市八幡西区星和町
-
JR筑豊本線本城
-
-
-

-
- 新築一戸建て
- 2,080万円
-
西条市小松町新屋敷
-
JR予讃線伊予小松
-
栃木県事業用・収益物件新着物件
-
-

-
- 事業用
- 2,600万円
-
さくら市氏家
-
JR東北本線蒲須坂駅
-
- お近くの店舗を探す
-
おすすめ物件
-
-

-
- 収益
- 1,800万円
-
宇都宮市西川田南1丁目
-
東武宇都宮線西川田
-
-
-

-
- 収益
- 1,800万円
-
宇都宮市下栗町
-
JR東北本線宇都宮
-










