事業用一括 プレアール深江橋II
掲載情報更新日:2026年05月28日 次回更新予定日:2026年06月11日
- 1億600万円
-
- 借入ご希望金額
万円 - 借入期間
年 - 借入金利
% - 月々のお支払い金額
円
- 借入ご希望金額
※ 月々のお支払例は目安の試算となりますので、実際の金額とは異なる場合がございます。詳しくは店舗までお問合わせください。
- 大阪市東成区深江北3丁目
-
大阪市中央線『深江橋』 徒歩9分 (約650m)
JRおおさか東線『高井田中央』 徒歩14分 (約1100m)
JRおおさか東線『放出』 徒歩20分 (約1530m)
事業用一括 プレアール深江橋IIの収益物件 | 物件情報
オーナーチェンジ物件 *年間総家賃収入年額:9,000,000円 *表面利回り:8.49%
オーナーチェンジ物件
*現況家賃:年額:9,000,000円
*表面利回り:8.49%
☆最寄駅から京橋駅まで11分
☆2沿線3駅利用可
☆近隣に学校、幼稚園、保育園、公園あり
☆複数スーパーあり
☆0120ー684-571
お気軽にお電話ください♪
☆立地のポイント
【深江橋駅】徒歩約9分
【高井田中央駅】徒歩約14分
【放出駅】徒歩約20分
物件の設備
- 公営水道
- 公共下水
- 都市ガス
- 防犯カメラ
物件の特徴
- 24時間ゴミ出可
物件詳細情報
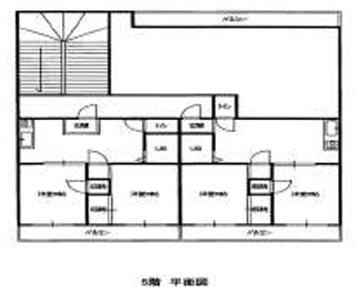
| 価格 | 1億600万円 | 間取り | |
|---|---|---|---|
| 物件種別 | 事業用(マンション・収益・一棟所有) | ||
| 所在地 | 大阪府大阪市東成区深江北3丁目 | ||
| アクセス |
|
||
| 建物面積 | 駐車場 | ||
| 築年月 | 1986年(昭和61年)03月築 | ||
| 建物構造 | 鉄骨 スレート葺 5階建 | 工法 | |
| 主要採光 | バルコニー | ||
| 保証・評価 | |||
| リフォーム | |||
| 土地面積 | 192.79㎡(58.31坪) | 接道 | |
| 私道 | セットバック | ||
| 地目 | 宅地 | 地勢 | |
| 権利 | |||
| 都市計画 | 用途地域 | ||
| 建ぺい/容積率 | 土地国土法 | ||
| 許可番号 | 建築基準法 | ||
| 法令制限 | |||
| 小学区 | 宝栄小学校 徒歩10分 (約800m) | 中学区 | 東陽中学校 徒歩5分 (約400m) |
| 現況 | 居住中 | 引渡 | 相談 |
| その他費用 | |||
| 収益情報 | 表面利回り:8.49% 家賃収入:9,000,000円 |
||
| 周辺環境 | ニチイキッズ深江橋保育園 徒歩8分 (約590m) 生鮮&業務スーパーボトルワールドOK深江橋店 徒歩13分 (約1020m) ライフ深江橋店 徒歩15分 (約1170m) |
||
| 備考 | ※現状での引渡し(測量無)で売主瑕疵担保免責になります。 オーナーチェンジ物件 *現況家賃:月額750,000円(年額:9,000,000円) *表面利回り:8.49% |
||
| 物件番号 | 4306837 | 取引態様 | 媒介 |
※利回りとは、当該不動産の1年間の予定賃料収入の不動産取得対価に対する割合であり、公租公課その他当該物件を維持するために必要な費用の控除前のものです。また、予定賃料収入が確実に得られる事を保証するものではありません。
※利回り、想定年収に関する詳しい内容は、直接店舗までお問い合わせ下さい。
取扱店舗情報
| 電話番号 | 050-5805-9447 |
|---|---|
| 所在地 | 〒536-0006 大阪府大阪市城東区野江4丁目10-13 クリエイト野江内代1F |
| 営業時間 | 10:00~19:00 |
| 定休日 | なし |
| 宅建免許番号 | 国土交通大臣(1)第10706号 |
| アクセス | 店舗への地図はこちら |

来店ご予約
- 大阪府
マイページ物件数 - 18,866件
最近見た物件
-
-

-
- 中古マンション
- 400万円
-
岸和田市藤井町3丁目
-
南海電鉄本線岸和田
-
-
-

-
- 土地
- 755万円
-
蒲郡市三谷町東3丁目
-
JR東海道本線三河三谷
-
-
-

-
- 新築一戸建て
- 3,090万円
-
北名古屋市熊之庄牛流
-
名鉄犬山線岩倉
-
大阪府事業用・収益物件新着物件
-
-

-
- 収益
- 1,980万円
-
大阪市此花区高見3丁目
-
阪神電鉄阪神なんば線伝法駅
-
-
-

-
- 収益
- 2億2,500万円
-
大阪市平野区瓜破1丁目
-
大阪市谷町線喜連瓜破駅
-
-
-

-
- 事業用
- 300万円
-
柏原市大正2丁目
-
JR関西本線柏原駅
-
-
-

-
- 事業用
- 1,300万円
-
大阪市北区西天満1丁目
-
京阪本線北浜駅
-
-
-

-
- 事業用
- 780万円
-
大阪市生野区生野東2丁目
-
JR大阪環状線寺田町駅
-
-
-

-
- 事業用
- 3,980万円
-
豊中市岡町南3丁目
-
阪急電鉄宝塚線岡町駅
-
-
-

-
- 収益
- 1億円
-
吹田市岸部中3丁目
-
JR東海道線岸辺駅
-
- お近くの店舗を探す
-
おすすめ物件
-
-

-
- 収益
- 2,980万円
-
大阪市平野区長吉長原東3丁目
-
大阪市谷町線長原
-
-
-

-
- 収益
- 3,780万円
-
大阪市東住吉区今川2丁目
-
JR関西本線東部市場前
-






担当エージェント:尾関 親代
最寄駅から京橋駅まで11分の好立地!
通勤通学に便利な2沿線3駅利用可!
落ち着いた住環境でファミリー層にも単身者にも◎♪
ぜひお気軽にお問い合わせください!
※現状での引渡し(測量無)で売主瑕疵担保免責になります。